Dieses außergewöhnlich charmante Wohnhaus mit zusätzlicher Nutzfläche im Souterrain, gelegen in herrlich ruhiger Waldrandlage, vereint Wohnkomfort mit naturnahem Lebensgefühl. Ein Ort, der begeistert und zum Verweilen einlädt.
Bereits beim Betreten des Anwesens empfängt Sie ein liebevoll angelegter Vorgarten, der den einladenden Charakter des Hauses stilvoll unterstreicht.
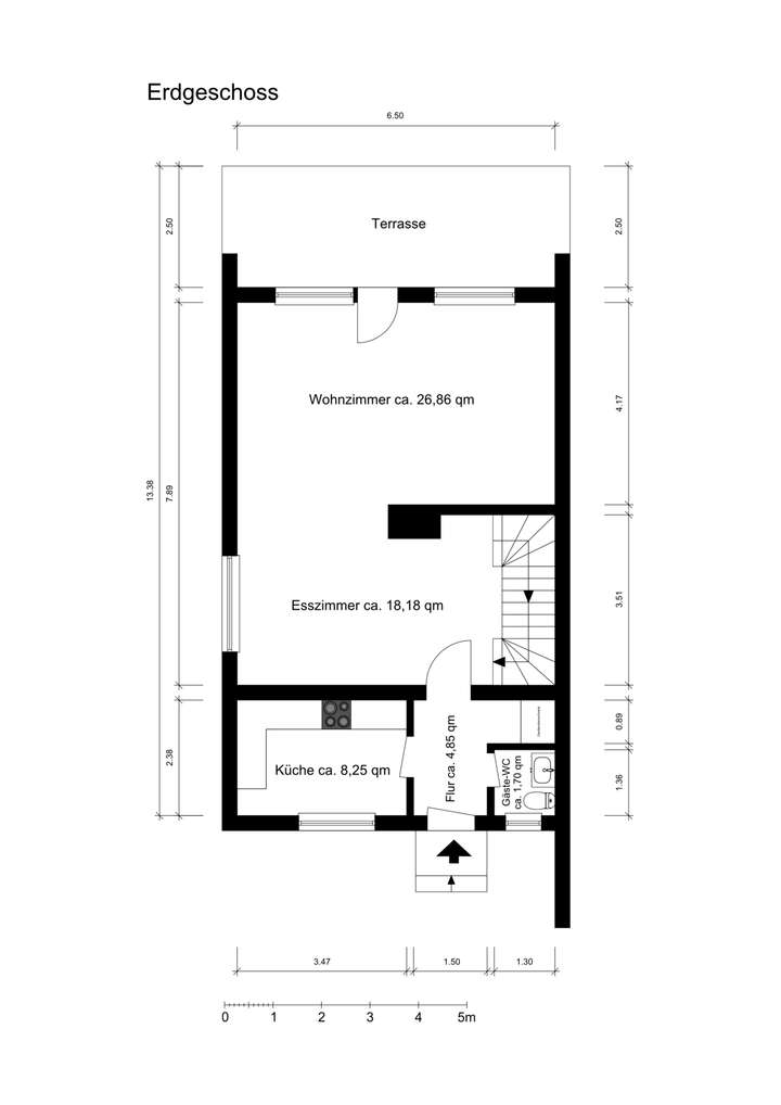
Im Inneren gelangen Sie über eine helle Diele, ausgestattet mit einem praktischen Einbauschrank, zu den zentralen Bereichen des Erdgeschosses: dem Gäste-WC mit Tageslicht, der geräumigen Küche sowie dem großzügig und offen gestalteten Wohn- und Essbereich.
Die Küche ist mit einer funktionalen Einbauküche ausgestattet und bietet ausreichend Stauraum für Ihre kulinarischen Bedürfnisse. Der angrenzende Wohn- und Essbereich beeindruckt durch seine durchdachte Offenheit und eine breite Fensterfront zur Terrasse, die nicht nur für lichtdurchflutete Räume sorgt, sondern auch den Blick in den gepflegten Garten freigibt. Hier verschmelzen Innen- und Außenbereich auf harmonische Weise, ideal zum Entspannen und Genießen.
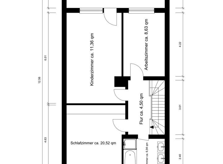
Ein stilvoller Blickfang ist die edle Marmortreppe im Eingangsbereich, die Sie in das Obergeschoss des Hauses führt. Dort erwarten Sie drei vielseitig nutzbare Zimmer, deren durchdachte Grundrisse flexible Nutzungsmöglichkeiten bieten, ob als Schlafzimmer, Kinderzimmer oder Arbeitszimmer. Eines der Zimmer verfügt zudem über einen sonnigen Süd-Balkon mit Blick ins Grüne.
Das großzügige Tageslichtbad rundet das Angebot im Obergeschoss ab. Ausgestattet mit WC, Doppelwaschbecken, moderner Glasdusche und einer Badewanne, lädt es zum Wohlfühlen und Entspannen ein.
Hinter dem Haus erstreckt sich ein idyllischer Garten mit gepflegtem Rasen, umgeben von viel Grün und natürlicher Ruhe. Die große überdachte Terrasse bietet reichlich Platz für gesellige Stunden mit Familie und Freunden, Grillabende oder entspannte Momente im Freien. Eine praktische Markise sorgt bei Bedarf für angenehmen Schatten an sonnigen Tagen. Der Garten bietet zudem vielfältige Nutzungsmöglichkeiten, ob zum Spielen, Gärtnern oder einfach zum Genießen der Natur.
Profi Concept: Rödermark-Waldacker, idyllisches EFH mit zusätzlicher Nutzfläche im Souterrain
Am Kappenwald 10,
63322 Rödermark
Auf Karte anzeigen
Finanzierungszertifikat
In nur zwei Minuten zu Ihrem persönlichen Finanzierungszertifkat.
Infos
| Haustyp | Doppelhaushaelfte |
|---|---|
| Etagenzahl | 2 |
| Wohnfläche ca. | 138 m2 |
| Nutzfläche | 60 m2 |
| Grundstücksfläche | 337 m2 |
| Bezugsfrei ab | ab sofort |
| Zimmer | 5 |
| Schlafzimmer | 4 |
| Badezimmer | 2 |
| Garage/Stellplatz | Garage |
| Anzahl Garage/Stellplatz | 1 |
Kosten
| Kaufpreis |
575.000 € |
|---|---|
| Provision |
3,57% incl. MwSt. In unserer Courtage ist die gesetzliche MwSt. enthalten. Für die Besichtigung und Beratung entstehen Ihnen keinerlei Kosten und Gebühren. Gem. § 656 c BGB zahlt der Verkäufer die gleiche Courtage wie der Käufer. Unsere Courtage ist erst bei Abschluss des Kaufvertrages fällig. |
Finanzierungsrechner:
Kaufpreis:
600.000 €
Eigenkapital:
600.000 €
Monatliche Rate
0 €
Effektiver Jahreszins
0 %
Sollzinsbindung
10 Jahre
Bausubstanz & Energieausweis
| Baujahr | 1971 |
|---|---|
| Letzte Sanierung | 2025 |
| Bauphase | Haus fertig gestellt |
| Objektzustand | Gepflegt |
| Qualität der Austattung | Normal |
| Heizungsart | Öl-Heizung |
| Wesentliche Energieträger | Öl |
| Energieausweis | liegt vor |
| Energieausweistyp | Bedarfsausweis |
| Energieverbrauchskennwert | 178,2 kWh/(m²*a) |
| Energieeffizienzklasse | F |
178,2
kWh/(m²*a)
Energieeffizienzklasse F
- A+
- A
- B
- C
- D
- E
- F
- G
- H
- 0
- 25
- 50
- 75
- 100
- 125
- 150
- 175
- 200
- 225
- >250
Beschreibung des Objekts
Ausstattung
Raumaufteilung im EG ca. 76 qm
- Wohnbereich ca. 26,86 qm
- Essbereich ca. 18,18 qm
- Küche ca. 8,25 qm
- Gäste-WC mit Tageslicht ca. 1,70 qm
- Flur ca. 4,85 qm
- Garderobe ca. 0,60 qm
- Terasse ca. 16,30 qm (nur anteilig in der Wfl. berücksichtigt)
Raumaufteilung im 1. OG ca. 62 qm
- Schlafzimmer ca. 20,52 qm
- Kinderzimmer ca. 11,36 qm
- Arbeitszimmer ca. 8,63 qm
- Badezimmer mit Tageslicht ca. 6,94 qm
- Flur ca. 4,50 qm
- Loggia ca. 9,80 qm (nur Anteilig in der Wfl. berücksichtigt)
Im Untergeschoss des Hauses befindet sich außerdem ein Kellerraum, der Heizungsraum und eine zusätzliche Nutzfläche mit Wohncharakter.
Weitere besondere Ausstattungsmerkmale:
- EBK mit Elektrogeräten von :
- Backofen
- Ceranfeld
- Spülmaschine
- Abzugshaube
- großes Fenster mit Rollladen
- Badezimmer OG:
- zwei Handwaschbecken
- frei hängendes WC
- Badewanne
- neue Glasdusche
- großes Fenster mit Rollladen
Bodenbeläge:
- Fliesen in folgenden Räumen:
- Küche (Marmorfliesen)
- Wohnzimmer
- Esszimmer
- Flur EG
- Gäste-WC (Marmorfliesen)
- Badezimmer
- Vinylboden in folgenden Räumen:
- Schlafzimmer
- Kinderzimmer
- Arbeitszimmer
- Flur OG
- EG: Gäste-WC Fenster mit 3-fach-Verglasung
- OG: Alle Fenster mit 3-fach-Verglasung
- Eicheholzdecke im Wohn- / Essbereich und im Badezimmer
- Garten vor- und hinter dem Wohnhaus
- Terrasse mit Markise
- Glasfaseranschluss
- Außenrollläden an allen Fenstern
- Garage mit ca. 19,20 qm
Breite Einfahrt Garagentor ca. 2,60 m
Im Untergeschoss des Hauses befindet sich zudem noch eine zusätzliche Nutzfläche mit Wohncharakter, welche sowohl über das Wohnhaus, wie auch über den Garten betreten werden kann.
Im Souterrainbereich befindet sich ein geräumiges Zusatzzimmer, eine Küche und ein Badezimmer mit Handwaschbecken, WC und ebenerdiger Glasdusche.
Modernisierungen:
2013: Terrasse neu gefliest
2014: Öl-Heizung erneuert
2017: Souterrain: 2 neue doppelt verglaste Kunststofffenster
2018: Neue Markise über der Terrasse
2023: Neue Glasduschen im Badezimmer u. Souterrain
2023: OG neuer Vinylboden verlegt im Flur + alle Zimmer
2023: Neue Haustür und Nebeneingangstür
2024: Neuer Rollrasen im Garten
2025: Neue Dämmung oberste Geschossdecke
2025: OG neue Kunststofffenster mit 3-fach-Verglasung in allen Räumen
2025: EG neues Fenster mit 3-fach-Verglasung im Gäste-WC
Lage
Die Doppelhaushälfte überzeugt durch ihre besonders ruhige und naturnahe Wohnlage im Rödermärker Stadtteil Waldacker. Direkt am Waldrand gelegen, verbindet sie idyllisches Wohnen im Grünen mit kurzen Wegen zu allen wichtigen Einrichtungen und einer hervorragenden Anbindung in die gesamte Rhein-Main-Region.
Die Wohnlage bietet eine ideale Mischung aus Ruhe, Natur und städtischer Nähe. Familien profitieren von den kurzen Wegen zu Kindergarten, Freizeit- und Einkaufsmöglichkeiten. Berufspendler erreichen Frankfurt, Offenbach oder Darmstadt in kurzer Zeit und nach Feierabend locken Wald, Felder und Streuobstwiesen direkt vor der Haustür.
In unmittelbarer Nähe finden Sie:
Kindertagesstätte Waldacker, ca. 5 Min. zu Fuß
- Bürgertreff Waldacker, ca. 2 Min. zu Fuß
- Postfiliale & Elektrofachgeschäft, ca. 5 Min. zu Fuß
- Restauarnt, ca. 6 Min. zu Fuß
- Bushaltestelle Waldacker (Linie OF-95), ca. 2 Min. zu Fuß → Verbindung nach Dietzenbach und Rödermark
Bahnhöfe in der Nähe::
- S-Bahnhof Dietzenbach Mitte (S2 Richtung Frankfurt, ca. 7 Autominuten / ca. 12 Min. mit dem Bus
- Bahnhof Rödermark-Ober Roden (S1 Richtung Frankfurt/Wiesbaden & Dreieichbahn nach Dieburg, ca. 10 Autominuten / ca. 15 Min. mit dem Bus
Weitere Entfernungen:
- Supermärkte & Einkaufsmöglichkeiten in Dietzenbach, ca. 5 Autominuten / ca. 10 Min. mit dem Bus
- Frankfurter Innenstadt, ca. 25–30 Min. mit dem Auto / ca. 40 Min. mit der S-Bahn ab Dietzenbach Mitte
- Flughafen Frankfurt am Main (FRA), ca. 25 Autominuten über die A3 oder mit der S-Bahn ab Dietzenbach in ca. 50 Min. erreichbar
- Autobahn A3 (Anschlussstelle Obertshausen), ca. 15 Autominuten
- Autobahn A661 (Anschlussstelle Dreieich / Offenthal), ca. 18 Autominuten mit einer schnellen Verbindung nach Frankfurt, Offenbach und Bad Homburg
- Autobahn A5 (Anschlussstelle Langen / Mörfelden), ca. 20 Autominuten mit direkter Nord-Süd-Verbindung in Richtung Kassel und Basel
- Regionalpark-Station „50. Breitengrad“, ca. 12 Min. zu Fuß
- Wald- und Naherholungsgebiete: Direkt vor der Haustür! Spaziergänge, Joggen oder Radfahren ohne Anfahrt mit dem Auto.
Sonstige Angaben
Alle Informationen beruhen auf den Angaben des Eigentümers. Für die Richtigkeit und Vollständigkeit wird keine Haftung übernommen.
Änderungen bleiben vorbehalten.
Sollten mehrere Kaufinteressenten vorhanden sein, so behält sich der Eigentümer das Recht vor, die Immobilie im Bieterverfahren zu verkaufen.
Internetgeschwindigkeit: Verfügbarkeit laut Telekom.de bis zu 250 Mbit/s. Es handelt sich um eine unverbindliche Prüfung des Anschlusses.
Hinweis zum Geldwäschegesetz, nach § 2 Abs. 1 Nr. 10 GwG sind wir verpflichtet, Kaufinteressenten zu identifizieren. Hierzu müssen wir von jedem Interessenten die pers. Daten (BPA) aufnehmen.
Hinweis zum gesetzlichen Widerrufsrecht bei Fernabsatzverträgen:
Nach den EU-Verbraucherschutzrichtlinien sind Makler seit dem 13.06.2014 dazu verpflichtet, den Kunden über sein Widerrufsrecht zu informieren.
Ein Fernabsatzvertrag ist schon zustande gekommen, wenn Sie uns telefonisch, per Fax oder per Mail kontaktieren.
Wir bitten daher um Ihr Verständnis, wenn wir Ihnen vor Vereinbarung eines Besichtigungstermins oder Überlassung von Unterlagen erst die detaillierten Informationen zu Ihrem Widerrufsrecht zukommen lassen müssen.
Erst danach können wir im vollen Umfang für Sie tätig werden.
Mit Ihrer Kontaktaufnahme willigen Sie bis auf Widerruf ein, dass wir Ihre Daten speichern dürfen und uns sowohl telefonisch als auch via SSL / TLS verschlüsseltem E-Mailverkehr mit Ihnen in Verbindung setzen dürfen.
Unser Service für Sie:
- Wir unterstützen Sie bei der
Organisation Ihres Umzuges.
- Wir übernehmen gerne den Verkauf
oder die Vermietung Ihrer
Altimmobilie und sorgen so für
einen reibungslosen Übergang.
- Wertermittlung Ihrer Immobilie über
einen Gutachter
- Geprüfter Energieausweis - Experte
- Finanzierungsservice mit Top-
Konditionen
- Aktuell ca. 300 Finanzierungspartner.
- Weitere Objekte finden Sie unter
www.proficoncept-gmbh.de
Übrigens:
Sie wissen wer eine Immobilie oder ein Grundstück verkaufen oder vermieten möchte?
Wir honorieren jede erfolgreiche Vermittlung !!!
Weitere Dokumente
GeldwäschegesetzGrundriss
Souterrain, Keller Grundriss
>
>
EG Grundriss
>
>
OG Grundriss
>
>
Adresse
Am Kappenwald 10, 63322 Rödermark
Interessante Orte
Preis- und Lageinformationen
Preistrend für Bestandsimmobilien in Rödermark