Wer das Haus betritt, spürt sofort: Hier wurde nicht einfach saniert – hier wurde bewahrt, erneuert, belebt. Jeder Balken erzählt eine Geschichte, jeder Raum atmet Historie und zugleich modernen Komfort.
Das im Jahr 1574 erbaute und unter Denkmalschutz des Landes Hessen stehende Fachwerkhaus wurde mit höchster Sorgfalt, viel Liebe zum Detail und großem handwerklichen Geschick umfassend saniert. Dabei stand stets im Vordergrund, die historische Substanz – insbesondere die wertvollen Holzelemente – so weit wie möglich zu erhalten. Das Ergebnis ist eine meisterhafte Symbiose aus Tradition und Moderne, die ihresgleichen sucht.
Schon beim Betreten entfaltet sich eine besondere Atmosphäre: Die beeindruckende Deckenhöhe verleiht den Räumen ein großzügiges Raumgefühl, während die freigelegten Holzbalken die Geschichte des Hauses lebendig werden lassen. Hier entsteht ein Ort, an dem sich Wohnen wie Ankommen anfühlt – ein Zuhause zum Durchatmen und Wohlfühlen, ideal für Menschen, die das Außergewöhnliche schätzen und auf ein einzigartiges Wohnambiente Wert legen.
Die moderne Haustechnik fügt sich harmonisch in das historische Umfeld ein. Eine effiziente Luft-Wasser-Wärmepumpe in Kombination mit durchgehender Fußbodenheizung sorgt für wohlige Wärme, während durchdachte energetische Maßnahmen den Komfort der Gegenwart garantieren. Der Kamin im Erdgeschoss lädt an kühlen Tagen zum Verweilen ein und verleiht dem Wohnraum eine besonders behagliche Stimmung.
Die offene Wohnküche mit edlem Gasherd und drei stilvoll gestaltete Badezimmer bieten Raum für gemeinsames Leben, Genuss und Entspannung.
Auch Sicherheit und Zukunftsfähigkeit wurden bei der Sanierung berücksichtigt: Sicherheitsverglasung an den straßenseitigen Fenstern, ein modernes Alarmsystem sowie eine professionelle Netzwerkverkabelung gewährleisten zeitgemäßen Schutz und Technik auf höchstem Niveau. Gleichzeitig wurde das Haus bereits technisch so vorbereitet, dass es sich bei Bedarf unkompliziert zu einem Zweifamilienhaus umgestalten lässt – flexibel für neue Lebensphasen oder generationsübergreifendes Wohnen.
Ein weiteres Highlight, gerade in der Altstadt, sind die Parkmöglichkeiten, die großzügige Terrasse mit angrenzendem Garten – eine Rarität in dieser Lage, die zusätzliche Lebensqualität schafft.
Dieses Anwesen ist weit mehr als nur ein Zuhause – es ist ein Stück lebendige Geschichte, das mit Feingefühl, Leidenschaft und modernster Technik in die Gegenwart geführt wurde. Ein Ort, an dem Stil, Komfort und Historie in vollendeter Harmonie zusammentreffen.
Charakter trifft Geschichte – Wohnen in zeitloser Eleganz und meisterhafter Sanierung
63456 Hanau
Die vollständige Adresse der Immobilie erhalten Sie vom Anbieter.
Auf Karte anzeigen
Die vollständige Adresse der Immobilie erhalten Sie vom Anbieter.
Finanzierungszertifikat
In nur zwei Minuten zu Ihrem persönlichen Finanzierungszertifkat.
Infos
| Haustyp | Einfamilienhaus |
|---|---|
| Etagenzahl | 3 |
| Wohnfläche ca. | 200 m2 |
| Nutzfläche | 95 m2 |
| Grundstücksfläche | 312 m2 |
| Bezugsfrei ab | ab sofort |
| Zimmer | 5 |
| Schlafzimmer | 4 |
| Badezimmer | 3 |
| Garage/Stellplatz | Außenstellplatz |
| Anzahl Garage/Stellplatz | 3 |
Kosten
| Kaufpreis |
775.000 € |
|---|---|
| Provision |
3,57 % inkl. der gesetzl. MwSt., bezogen auf den beurkundeten Kaufpreis |
Finanzierungsrechner:
Kaufpreis:
600.000 €
Eigenkapital:
600.000 €
Monatliche Rate
0 €
Effektiver Jahreszins
0 %
Sollzinsbindung
10 Jahre
Bausubstanz & Energieausweis
| Baujahr | 1574 |
|---|---|
| Denkmalschutzobjekt | Ja |
| Objektzustand | Saniert |
| Heizungsart | Wärmepumpe |
| Energieausweis | laut Gesetz nicht erforderlich |
Beschreibung des Objekts
Ausstattung
* Denkmalgeschütztes Haus mit Auszeichnung als Kulturdenkmal
* Exklusive Hartholzdielen und Eichenparkett
* Beeindruckende Deckenhöhe
* Fensterbänke aus Sandstein
* Kaminofen
* Hochwertige Einbauküche mit Kochinsel und Gasherd von LaCanche
* 3 Moderne Bäder
* Panorama Verglasung im Dachboden
* Sicherheitspaket
* großer Gewölbekeller
* 3 Stellplätze für PKW
Lage
Dieses historische Fachwerkhaus befindet sich im Herzen der Altstadt von Hanau-Steinheim – einem der charmantesten und begehrtesten Stadtteile des Rhein-Main-Gebiets. Hier, wo sich Jahrhunderte alte Geschichte, gelebte Nachbarschaft und mediterranes Lebensgefühl begegnen, offenbart sich ein Ort mit unverwechselbarem Charakter.
Schmale Kopfsteinpflastergassen, liebevoll restaurierte Fachwerkhäuser und malerische Plätze prägen das historische Stadtbild und verleihen Steinheim seine einzigartige Atmosphäre. In den kleinen Cafés und Restaurants lässt sich das Leben in entspannter Altstadtidylle genießen, während Boutiquen und inhabergeführte Geschäfte zum Flanieren und Verweilen einladen.
Das nahe gelegene Schloss Steinheim und die grünen Mainauen bieten mit ihren Rad- und Spazierwegen ideale Möglichkeiten zur Erholung in der Natur – direkt vor der Haustür und dennoch mitten im Leben.
Auch die Verkehrsanbindung ist hervorragend: Über die Autobahnen A3, A45 und A661 sowie die B43a sind Frankfurt am Main, Offenbach und Aschaffenburg in kurzer Zeit erreichbar. Die S-Bahn-Station Hanau-Steinheim ermöglicht zudem eine bequeme Anbindung an die Frankfurter Innenstadt und den internationalen Flughafen.
Steinheim verbindet auf besondere Weise historisches Ambiente, urbanen Komfort und naturnahe Lebensqualität. Wer das Authentische liebt und den Puls der Altstadt spüren möchte, findet hier ein Zuhause mit Seele – mitten in einer der schönsten und lebenswertesten Regionen Hessens.
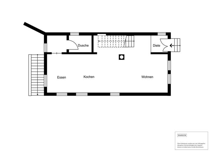
Grundriss
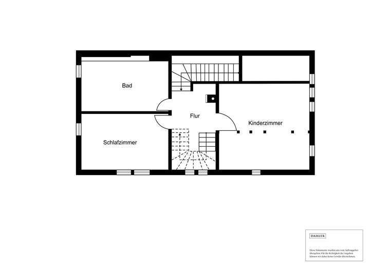
Grundriss Obergeschoss
>
>
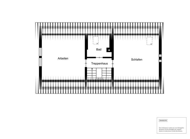
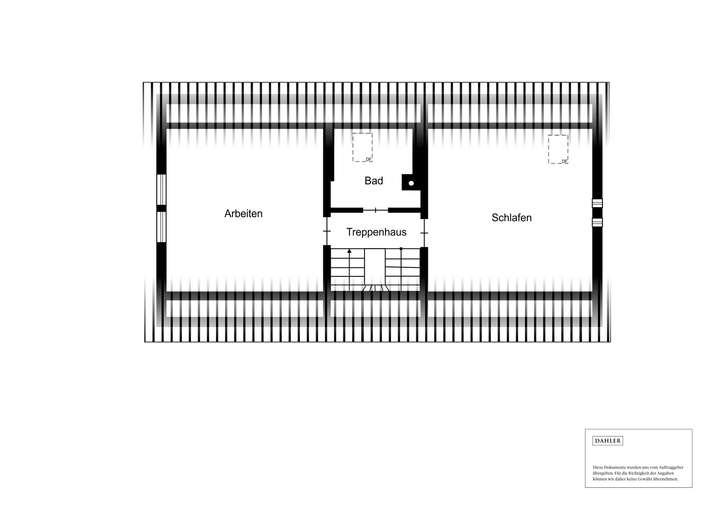
Grundriss Dachgeschoss
>
>
Grundriss Kellergeschoss
>
>
Adresse
63456 Hanau
Interessante Orte
Preis- und Lageinformationen
Preistrend für Bestandsimmobilien in Hanau