Dieses großzügige Wohnhaus mit ca. 213 m² Wohn/Nutzfläche und einem ca. 816 m² großen Grundstück befindet sich im schönen Wilhelmsburg und bietet reichlich Platz für die ganze Familie. Die Immobilie ist voll unterkellert und verfügt über eine großzügige Raumaufteilung ideal für komfortables Wohnen mit viel Freiraum und Funktionalität.
Das Haus befindet sich in einem renovierungsbedürftigen Zustand, bietet jedoch eine hervorragende Grundlage, um ein individuelles und modernes Zuhause nach eigenen Vorstellungen zu gestalten und aufzuwerten. Die Immobilie wurde ursprünglich 1951 erbaut, und durch ein großzügigen Anbau im Jahre 1984 erweitert. Der weitläufige Garten eröffnet zahlreiche Nutzungsmöglichkeiten. Ob große Terrasse, Spielflächen für Kinder, Gemüsegarten oder einfach ein Ort zum Entspannen. Diese Immobilie überzeugt durch ihre Kombination aus großzügigem Grundstück und hervorragendem Gestaltungsspielraum – perfekt für alle, die sich den Traum vom eigenen Haus mit viel Platz und Garten erfüllen möchten. Überzeugen Sie sich selbst vom Potenzial dieser Immobilie und entdecken Sie die Möglichkeiten, die dieses Haus Ihnen bietet.
Wilhelmsburger Bestlage
21109 Hamburg
Die vollständige Adresse der Immobilie erhalten Sie vom Anbieter.
Auf Karte anzeigen
Die vollständige Adresse der Immobilie erhalten Sie vom Anbieter.
Finanzierungszertifikat
In nur zwei Minuten zu Ihrem persönlichen Finanzierungszertifkat.
Infos
| Haustyp | Einfamilienhaus |
|---|---|
| Wohnfläche ca. | 131 m2 |
| Nutzfläche | 82 m2 |
| Grundstücksfläche | 816 m2 |
| Bezugsfrei ab | nach Vereinbarung |
| Zimmer | 5 |
| Schlafzimmer | 3 |
| Badezimmer | 2 |
| Garage/Stellplatz | Garage |
| Anzahl Garage/Stellplatz | 1 |
Kosten
| Kaufpreis |
499.000 € |
|---|---|
| Provision |
3,57 % inkl. MwSt. |
Finanzierungsrechner:
Kaufpreis:
600.000 €
Eigenkapital:
600.000 €
Monatliche Rate
0 €
Effektiver Jahreszins
0 %
Sollzinsbindung
10 Jahre
Bausubstanz & Energieausweis
| Baujahr | 1951 |
|---|---|
| Objektzustand | Renovierungsbedürftig |
| Heizungsart | Zentralheizung |
| Wesentliche Energieträger | Gas |
| Energieausweis | liegt vor |
| Energieausweistyp | Bedarfsausweis |
| Energieverbrauchskennwert | 193,4 kWh/(m²*a) |
| Energieeffizienzklasse | F |
193,4
kWh/(m²*a)
Energieeffizienzklasse F
- A+
- A
- B
- C
- D
- E
- F
- G
- H
- 0
- 25
- 50
- 75
- 100
- 125
- 150
- 175
- 200
- 225
- >250
Beschreibung des Objekts
Ausstattung
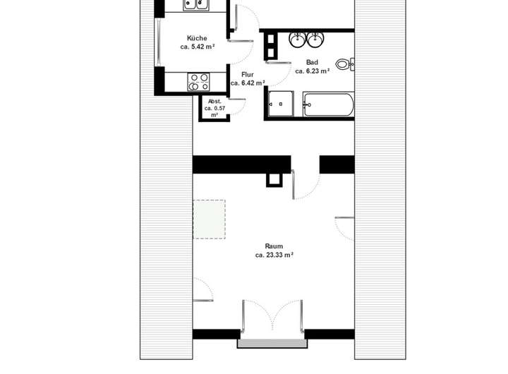
Die Wohn/Nutzfläche der Immobilie verteilt sich auf zwei Wohnebenen und bietet insgesamt ein sehr großzügiges Raumangebot. Zusätzlich ist das Haus voll unterkellert und verfügt damit über umfangreiche Nutzflächen.
Im Erdgeschoss befinden sich ein Wohnzimmer mit direkten Zugang auf die Terrasse, ein Essbereich, eine Küche, ein WC sowie eine Ankleide. Die Raumaufteilung ist funktional und bietet viel Platz für den täglichen Wohnbedarf.
Das Obergeschoss verfügt über weitere Zimmer, teilweise mit Blick in den Garten, sowie über ein Duschbad. Zusätzlich ist hier eine weitere Küche vorhanden, wodurch die Nutzung dieser Etage sehr flexibel gestaltet werden kann.
Der Kellerbereich verfügt neben den üblichen Nutzräumen ebenfalls über ein Duschbad sowie ein separates WC. Aufgrund von Tageslichtfenstern, bietet sich der Keller auch als wohnlich nutzbare Fläche an.
Die Fenster stammen teilweise aus den 1980er-Jahren, weitere wurden zu anderen Zeitpunkten erneuert. Elektrische Rollläden sind vorhanden. Die Gasheizung wurde 2012 eingebaut.
Rund um: ein charmantes Haus mit viel Platz für Ihre Entfaltung.
Lage
Diese Immobile befindet sich zentral im ursprünglichen Kern von Wilhelmsburg-Kirchdorf. Das heutige Wilhelmsburg ist Europas größte Flussinsel und ist dem Bezirk Hamburg-Mitte angegliedert.
Wilhelmsburg zeichnet sich aus durch seine unmittelbare Nähe zur Hamburger City mit sehr guter Verkehrsanbindung durch den HVV - in etwa sieben Fahrminuten erreichen Sie mit den Linien S3 und S31 den Hamburger Hauptbahnhof. Zahlreiche Buslinien verbinden Wilhelmsburg mit den umliegenden Stadtteilen.
Die nahe gelegene Dove Elbe ist fußläufig zu erreichen und bietet Ihnen ein Stück Natur direkt vor der Haustür.
Öffentliche Einrichtungen, Schulen und Einkaufsmöglichkeiten befinden sich in unmittelbarer Nähe.
Grundriss
Grundriss KG
>
>
Grundriss EG
>
>
Grundriss DG
>
>
Adresse
21109 Hamburg
Interessante Orte
Preis- und Lageinformationen
Preistrend für Bestandsimmobilien in Wilhelmsburg