Das Haus wurde 1980 in massiver Bauweise auf einem ca. 630 m² großen Erbpachtgrundstück errichtet. Die Erbpacht läuft noch bis 2056, sämtliche Erbpachtszahlungen bis dahin sind bereits vorab geleistet worden, so dass in dieser Form keine Kosten auf die Erwerber zukommen.
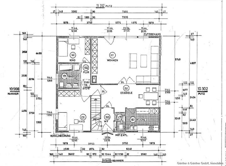
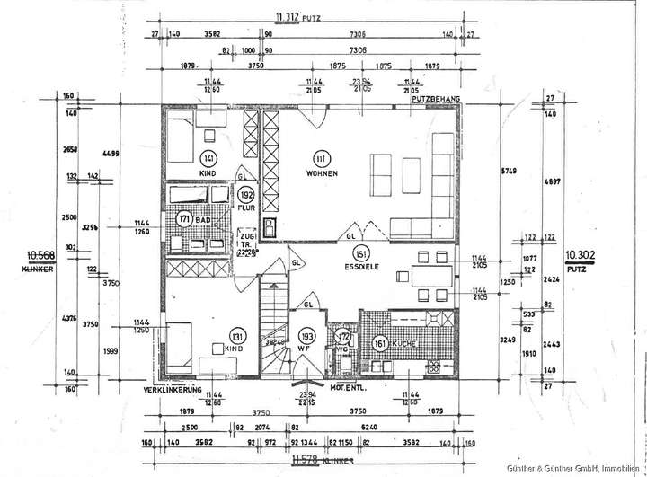
Es erstreckt sich über ca. 139 m² Wohnfläche, die sich auf sechs Räume im Erd- und Obergeschoss verteilen.
Ein gemütliches Ambiente empfängt Sie.
Der großzügig und offen gestaltete Wohn-Essbereich ist das Herzstück des Hauses. Hier trifft sich die Familie zum gemeinsamen Essen und Verweilen. Von hier aus haben Sie Zutritt zur Terrasse. Hier genießen Sie die Zeit und gelangen in den grünen Garten.
Im Erdgeschoss befinden sich zudem zwei Schlafzimmer mit guten Stellmöglichkeiten für Bett und Schrank. Die Küche und ein Badezimmer vervollständigen das Erdgeschoss.
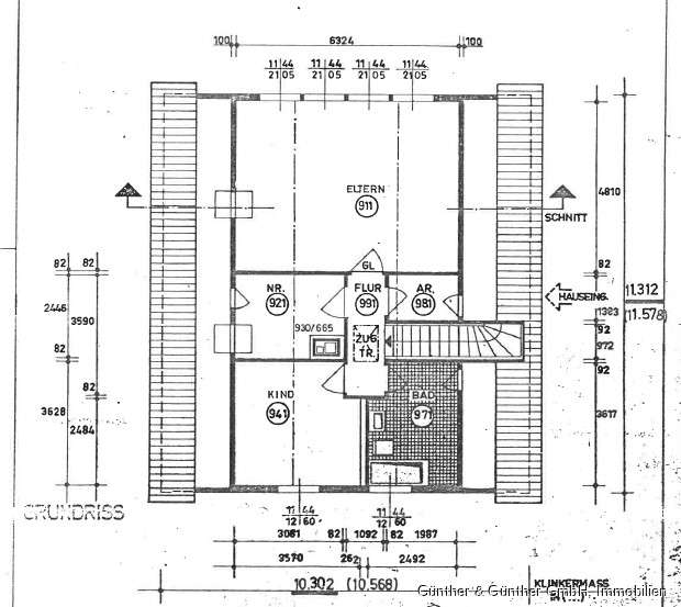
Die Holztreppe führt Sie in das Obergeschoss. Hier erwartet Sie mehrere Räume in verschiedenen Größen. Schlafzimmer, Homeoffice, Hobby - Die Möglichkeiten zur Nutzung sind hier reichlich vorhanden. Das Familienbadezimmer komplettiert dieses Geschoss.
Großzügige Nutzfläche finden Sie im Keller. Auch hier ist weiterer Platz für Hobbys etc..
Das Haus wird im unrenovierten Zustand veräußert. Eine generelle Modernisierung des Hauses ist an einigen Stellen nötig.
Erbpachtsgeber ist die Freie und Hansestadt Hamburg. Eine Verlängerung des Erbbaurechts über das Jahr 2056 hinaus ist mit Absprache möglich.
Einfamilienhaus mit vielen Zimmern auf Erbpachtgrundstück OHNE Erbpachtzahlung
22175 Hamburg
Die vollständige Adresse der Immobilie erhalten Sie vom Anbieter.
Auf Karte anzeigen
Die vollständige Adresse der Immobilie erhalten Sie vom Anbieter.
Finanzierungszertifikat
In nur zwei Minuten zu Ihrem persönlichen Finanzierungszertifkat.
Infos
| Haustyp | Einfamilienhaus |
|---|---|
| Wohnfläche ca. | 139 m2 |
| Nutzfläche | 90 m2 |
| Grundstücksfläche | 630 m2 |
| Zimmer | 6 |
Kosten
| Kaufpreis |
350.000 € |
|---|---|
| Provision |
Die Käuferprovision beträgt 3,57% des Kaufpreises inkl. der gesetzlichen MwSt.. |
Finanzierungsrechner:
Kaufpreis:
600.000 €
Eigenkapital:
600.000 €
Monatliche Rate
0 €
Effektiver Jahreszins
0 %
Sollzinsbindung
10 Jahre
Bausubstanz & Energieausweis
| Baujahr | 1980 |
|---|---|
| Objektzustand | Gepflegt |
Beschreibung des Objekts
Lage
Das Einfamilienhaus befindet sich in einer ruhigen, gewachsenen Wohnsiedlung im Hamburger Stadtteil Bramfeld, unmittelbar an der Grenze zu Sasel und Farmsen-Berne. Die Umgebung ist geprägt von Einfamilienhäusern, viel Grün und einer familienfreundlichen, verkehrsberuhigten Straßenführung. Einkaufsmöglichkeiten, Schulen, Kitas und weitere Einrichtungen des täglichen Bedarfs sind im Stadtteil sowie in den angrenzenden Quartieren gut erreichbar. Parks und Grünzüge bieten vielfältige Naherholungsmöglichkeiten. Die Anbindung an den öffentlichen Nahverkehr erfolgt derzeit über mehrere Buslinien; mit dem Ausbau der künftigen U-Bahn-Linie U5 wird die Erreichbarkeit des Hamburger Zentrums nochmals deutlich verbessert. Insgesamt verbindet die Lage ein ruhiges, angenehmes Wohnumfeld mit solider Infrastruktur und der Nähe zu gleich drei attraktiven Stadtteilen.
Grundriss
Erdgeschoss
>
>
Dachgeschoss
>
>
Kellergeschoss
>
>
Adresse
22175 Hamburg
Interessante Orte
Preis- und Lageinformationen
Preistrend für Bestandsimmobilien in Bramfeld