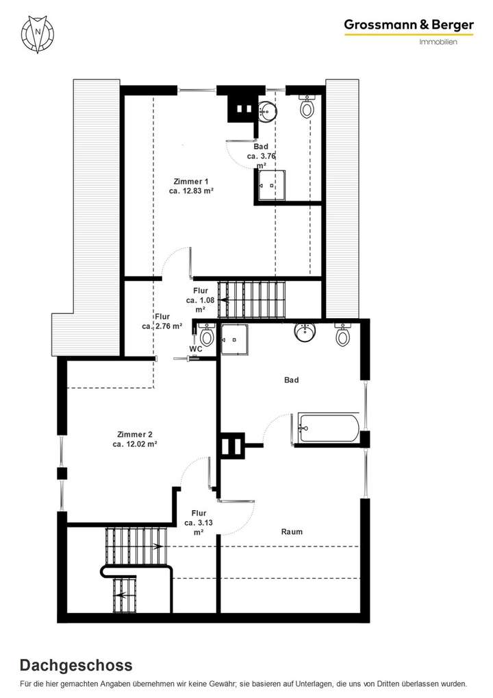
Dieses charmante Wohnhaus vereint einen massiven Altbau aus ca. 1925 mit einem Anbau aus 1960. Beide Gebäudeteile sind vollständig unterkellert und verfügen jeweils über einen eigenen Zugang. Die Wohnräume von Altbau und Anbau sind dabei harmonisch miteinander verbunden und schaffen ein stimmiges Gesamtbild. Alternativ können die Wohneinheiten je nach Bedarf ohne großen Aufwad voneinander getrennt werden. Im Erdgeschoss befinden sich ein Wohn- und Esszimmer, eine kleine gemütliche Küche sowie ein Wintergarten mit Balkon und schönem Blick in den Garten. Zudem stehen zwei weitere Zimmer sowie ein Duschbad zur Verfügung. Das Dachgeschoss ist sowohl vom Altbau als auch vom Anbau erreichbar. Hier liegen zwei Zimmer, eines mit angrenzendem Badezimmer, ein Gäste-WC sowie ein Raum mit weiterem Bad en suite, das offiziell als Nutzfläche gilt, jedoch zu Wohnzwecken ausgebaut wurde. Räume, für die keine Flächenangaben aufgeführt sind, wurden nicht in die offizielle Wohnfläche einbezogen. Aus diesem Grund wurden hierzu keine Flächen ausgewiesen. Das großzügige Grundstück umfasst ca. 1.117 m² und grenzt direkt an freie Felder. Eine sonnige Terrasse lädt zum Entspannen ein.
Einfamilienhaus auf sonnigem Grundstück
21039 Hamburg
Die vollständige Adresse der Immobilie erhalten Sie vom Anbieter.
Auf Karte anzeigen
Die vollständige Adresse der Immobilie erhalten Sie vom Anbieter.
Finanzierungszertifikat
In nur zwei Minuten zu Ihrem persönlichen Finanzierungszertifkat.
Infos
| Haustyp | Einfamilienhaus |
|---|---|
| Wohnfläche ca. | 103 m2 |
| Grundstücksfläche | 1.117 m2 |
| Bezugsfrei ab | nach Vereinbarung |
| Zimmer | 5,5 |
Kosten
| Kaufpreis |
385.000 € |
|---|---|
| Provision |
3,57 % inkl. MwSt. |
Finanzierungsrechner:
Kaufpreis:
600.000 €
Eigenkapital:
600.000 €
Monatliche Rate
0 €
Effektiver Jahreszins
0 %
Sollzinsbindung
10 Jahre
Bausubstanz & Energieausweis
| Baujahr | 1925 |
|---|---|
| Heizungsart | Gas-Heizung |
| Wesentliche Energieträger | Gas |
| Energieausweis | liegt vor |
| Energieausweistyp | Bedarfsausweis |
| Energieverbrauchskennwert | 389,8 kWh/(m²*a) |
| Energieeffizienzklasse | H |
389,8
kWh/(m²*a)
Energieeffizienzklasse H
- A+
- A
- B
- C
- D
- E
- F
- G
- H
- 0
- 25
- 50
- 75
- 100
- 125
- 150
- 175
- 200
- 225
- >250
Beschreibung des Objekts
Ausstattung
Die Immobilie befindet sich in einem Zustand, der überwiegend dem ursprünglichen Bau- und Modernisierungsstand entspricht und somit Raum für eine zeitgemäße Anpassung an heutige Wohn- und Energiestandards bietet. Insgesamt besteht ein umfassender Sanierungs- und Modernisierungsbedarf, wodurch Käufer die Möglichkeit erhalten, das Haus nach eigenen Vorstellungen zu gestalten und aufzuwerten. Die Beheizung erfolgt über zwei separate Heizungsanlagen unterschiedlichen Baujahrs: eine Anlage stammt aus dem Jahr 1973, eine weitere wurde 2015 erneuert. Die Warmwasserversorgung erfolgt über Durchlauferhitzer. Neben der Möglichkeit einer umfassenden Sanierung bzw. Modernisierung der Bestandsimmobilie nach Ihren individuellen Vorstellungen bietet das attraktive Grundstück zudem hervorragendes Potenzial für eine Neubebauung mit einem modernen Neubau. Das Grundstück befindet sich nicht im Geltungsbereich eines rechtskräftigen Bebauungsplans. Eine Bebauung richtet sich daher nach § 34 BauGB und muss sich hinsichtlich Art und Maß der Nutzung in die umliegende Nachbarbebauung einfügen. Eine mögliche Neubebauung ist vom Käufer eigenständig und in Abstimmung mit dem zuständigen Bauamt zu prüfen.
Lage
Altengamme ist der östlichste Stadtteil der Freien und Hansestadt Hamburg. Am Nordufer der Elbe gelegen ist er noch sehr landwirtschaftlich geprägt. Zahlreiche Gemüse- und Blumenanbaubetriebe bieten ihre Waren direkt ab Hof an. Altengamme gehört zu den Vier- und Marschlanden und bietet zahlreiche Freizeitangebote: Ein Sportverein und ein Freibad sind direkt vor Ort, die Elbe lädt zu ausgedehnten Spaziergängen oder Wassersportaktivitäten ein. Altengamme verfügt des Weiteren über eine Grundschule und einen Kindergarten. Hamburg-Bergedorf erreichen Sie mit dem PKW in etwa 10 Minuten, von hier aus besteht eine S-Bahn-Verbindung zur Innenstadt. Auch die Autobahn A 25 befindet sich in unmittelbarer Nähe und bietet eine gute Anbindung an die Autobahn A 1 in Richtung Lübeck und zur A 24 Richtung Berlin.
Grundriss
Erdgeschoss
>
>
Dachgeschoss
>
>
Kellergeschoss
>
>
Adresse
21039 Hamburg
Interessante Orte
Preis- und Lageinformationen
Preistrend für Bestandsimmobilien in Altengamme