Bei der angebotenen Immobilie handelt es sich um ein großzügiges Wohnhaus, nutzbar als Ein- oder Zweifamilienhaus in Hanau-Steinheim, dessen Ursprung in den 1930er-Jahren liegt und das in den 1960er-Jahren modernisiert und durch eine Aufstockung erweitert wurde. Mit einer Wohnfläche von aktuell ca. 137 m² und einer Nutzfläche von ca. 218m² bietet das Haus viel Raum für eine große Familie sowie für flexible und individuelle Wohnkonzepte. Die vorhandene Bausubstanz befindet sich in einem soliden Zustand, sodass eine umfassende Sanierung wirtschaftlich sinnvoll erscheint.
Besonders hervorzuheben ist das weitläufige Grundstück in ruhiger und begehrter Lage direkt am Burggarten. Die Grundstücksgröße und die grüne Umgebung bieten einen hohen Wohn- und Freizeitwert sowie vielfältige Nutzungsmöglichkeiten. Ergänzt wird das Haupthaus durch mehrere Nebengebäude, die teilweise zu zusätzlicher Wohnfläche ausgebaut werden können und somit weiteres Entwicklungspotenzial bieten.
Das Haus eignet sich sowohl als klassisches Einfamilienhaus als auch hervorragend als Mehrgenerationenhaus.
Der ausgebaute Dachboden verfügt über zwei großzügige Zimmer, die derzeit als Nutzfläche ausgewiesen sind. Durch die Schaffung zusätzlicher Fensterflächen ist eine Umnutzung zu vollwertiger Wohnfläche (ca. 65m²) problemlos denkbar.
Um die Immobilie in einen zeitgemäßen und komfortablen Zustand zu versetzen, sind Modernisierungsmaßnahmen erforderlich, insbesondere:
- Erneuerung der Elektrik und Wasserleitungen
- Sanierung der Bäder
- Erneuerung von Boden- und Wandbelägen
- Austausch der Fenster
- Dachsanierung in absehbarer Zeit
Diese Maßnahmen bieten zugleich die Möglichkeit, energetische Verbesserungen mit staatlichen Förderungen umzusetzen und das Haus langfristig zukunftsfähig zu gestalten.
Einfamilienhaus mit Potenzial für Mehrgenerationenwohnen am Burggarten
63456 Hanau
Die vollständige Adresse der Immobilie erhalten Sie vom Anbieter.
Auf Karte anzeigen
Die vollständige Adresse der Immobilie erhalten Sie vom Anbieter.
Finanzierungszertifikat
In nur zwei Minuten zu Ihrem persönlichen Finanzierungszertifkat.
Infos
| Haustyp | Einfamilienhaus |
|---|---|
| Etagenzahl | 3 |
| Wohnfläche ca. | 137 m2 |
| Nutzfläche | 218 m2 |
| Grundstücksfläche | 866 m2 |
| Bezugsfrei ab | Ab sofort |
| Zimmer | 7 |
| Badezimmer | 2 |
| Garage/Stellplatz | Carport |
| Anzahl Garage/Stellplatz | 2 |
Kosten
| Kaufpreis |
495.000 € |
|---|---|
| Provision |
3,57% |
Finanzierungsrechner:
Kaufpreis:
600.000 €
Eigenkapital:
600.000 €
Monatliche Rate
0 €
Effektiver Jahreszins
0 %
Sollzinsbindung
10 Jahre
Bausubstanz & Energieausweis
| Baujahr | 1930 |
|---|---|
| Objektzustand | Renovierungsbedürftig |
| Heizungsart | Zentralheizung |
| Wesentliche Energieträger | Gas |
| Energieausweis | liegt vor |
| Energieausweistyp | Bedarfsausweis |
| Energieverbrauchskennwert | 285,7 kWh/(m²*a) |
| Energieeffizienzklasse | H |
285,7
kWh/(m²*a)
Energieeffizienzklasse H
- A+
- A
- B
- C
- D
- E
- F
- G
- H
- 0
- 25
- 50
- 75
- 100
- 125
- 150
- 175
- 200
- 225
- >250
Beschreibung des Objekts
Lage
Die Immobilie liegt im familienfreundlichen und gewachsenen Wohngebiet von Hanau-Steinheim im Süden der Stadt Hanau. Steinheim zeichnet sich durch eine hohe Lebensqualität aus: Die historische Altstadt mit Fachwerkcharme, Cafés, Restaurants und vielfältigen Einkaufsmöglichkeiten ist in wenigen Minuten erreichbar. Gleichzeitig bietet die Lage ein ruhiges Wohnumfeld mit überwiegend Ein- und Mehrfamilienhäusern.
Alle Einrichtungen des täglichen Bedarfs sind bequem erreichbar: Supermärkte, Bäckereien, Apotheken, Ärzte, Banken und Dienstleister befinden sich im nahen Umfeld oder entlang der Hauptverkehrsachsen von Steinheim.
In Steinheim gibt es mehrere Kindertagesstätten und Kindergärten sowie Grund- und weiterführende Schulen in fußläufiger oder kurzer Rad-/Autofahr-Entfernung. Die Bildungslandschaft von Hanau umfasst zahlreiche Grundschulen, Gesamtschulen, Gymnasien und berufliche Schulen, was Familien eine breite Auswahl bietet.
Steinheim ist gut ins öffentliche Verkehrsnetz eingebunden. Mehrere Buslinien verbinden den Stadtteil mit dem Hanauer Zentrum und weiteren Stadtteilen. In fußläufiger Nähe befindet sich zudem der Bahnhof Steinheim (Main), der an die S-Bahn-Linien S8 und S9 angeschlossen ist, mit schnellen Verbindungen nach Frankfurt, Offenbach und in die Rhein-Main-Region.
Mit dem Auto ist Steinheim verkehrsgünstig angebunden: Die nahe B45 führt direkt zur A3 und A66, wodurch Offenbach, Frankfurt am Main, der Flughafen Frankfurt sowie Aschaffenburg schnell erreicht werden können, ideal für Pendler und Pendlerinnen in die Metropolregion.
Die Lage überzeugt durch kurze Wege ins Grüne: Spazier- und Radwege entlang des Mains, Parks und Sportangebote im Ort sorgen für vielfältige Freizeitmöglichkeiten. Steinheim bietet zudem eine lebendige Nachbarschaft und eine hohe Aufenthaltsqualität für alle Altersgruppen.
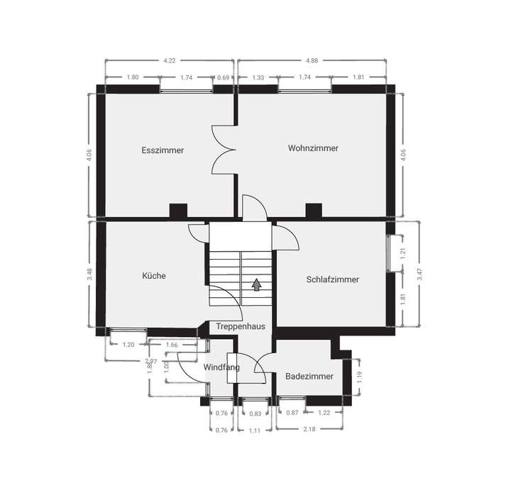
Grundriss
Grundriss_EG
>
>
Grundriss_1.OG
>
>
Grundriss_Dachgeschoss
>
>
Adresse
63456 Hanau
Interessante Orte
Preis- und Lageinformationen
Preistrend für Bestandsimmobilien in Hanau