Doppelhaushälfte ca. 105 m² Wfl. in Massivbauweise mit Verblendmauerwerk, Krüppel-Walmdach mit Ziegeleindeckung und Gauben, KS-Fenster mit ISO-Doppelverglasung, EBK, Rollläden, Gas-Brennwerttherme (Viessmann, 2014), Süd-West-Terrasse, PKW-Einstellplatz. Auf einem ca. 337 m² großem Grundstück.
Ein solides, werthaltiges Haus, für die kleine Familie. Der Garten ist pflegeleicht gestaltet und mit einem Grundwasserbrunnen ausgestattet. Die Hauszuwegung ist gepflastert. Ein Drehstromkabel ist verlegt und eignet sich gut für den Anschluss einer Wallbox. Kabel/DSL. Kaufpreis VB!
Nach einer Sanierungsmaßnahme verbleiben noch Restrenovierungsarbeiten: Bodenbeläge, Gäste-WC, Fliesen & Tapeten, etc.
Moderne Doppelhaushälfte in begehrter Lage, wesernah gelegen!
27809 Lemwerder
Die vollständige Adresse der Immobilie erhalten Sie vom Anbieter.
Auf Karte anzeigen
Die vollständige Adresse der Immobilie erhalten Sie vom Anbieter.
Finanzierungszertifikat
In nur zwei Minuten zu Ihrem persönlichen Finanzierungszertifkat.
Infos
| Haustyp | Doppelhaushaelfte |
|---|---|
| Wohnfläche ca. | 105 m2 |
| Grundstücksfläche | 337 m2 |
| Bezugsfrei ab | ab sofort |
| Zimmer | 4 |
| Schlafzimmer | 3 |
| Badezimmer | 1 |
Kosten
| Kaufpreis |
235.000 € |
|---|---|
| Provision |
Käufer & Verkäufer zahlen jeweils eine Provision von 3,57% vom Kaufpreis, inkl. MwSt. |
Finanzierungsrechner:
Kaufpreis:
600.000 €
Eigenkapital:
600.000 €
Monatliche Rate
0 €
Effektiver Jahreszins
0 %
Sollzinsbindung
10 Jahre
Bausubstanz & Energieausweis
| Baujahr | 1999 |
|---|---|
| Letzte Sanierung | 2026 |
| Objektzustand | Modernisiert |
| Heizungsart | Zentralheizung |
| Wesentliche Energieträger | Gas |
| Energieausweis | liegt vor |
| Energieausweistyp | Verbrauchsausweis |
| Energieverbrauchskennwert | 131,9 kWh/(m²*a) |
| Energieeffizienzklasse | E |
131,9
kWh/(m²*a)
Energieeffizienzklasse E
- A+
- A
- B
- C
- D
- E
- F
- G
- H
- 0
- 25
- 50
- 75
- 100
- 125
- 150
- 175
- 200
- 225
- >250
Beschreibung des Objekts
Ausstattung
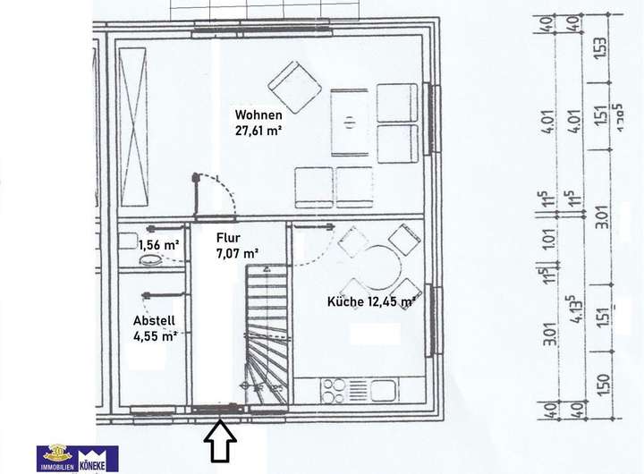
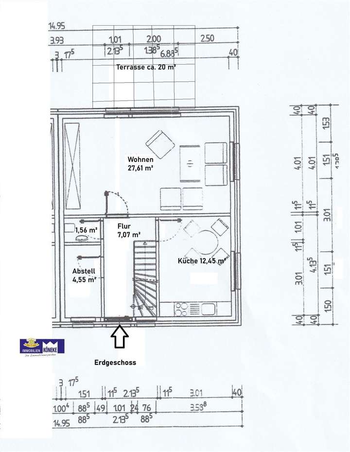
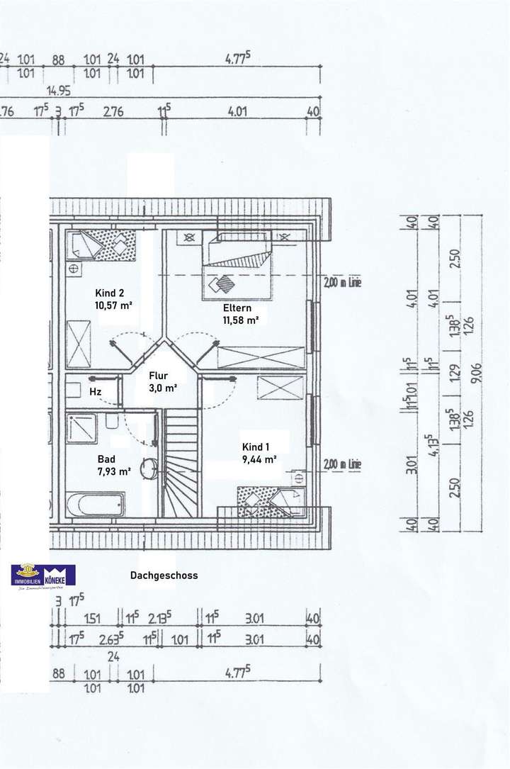
Erd- und Dachgeschoss zu Wohnzwecken ausgebaut, ca. 105 m² Wohnflächen/ca. 337 m² Grundstücksflächen, 4 Zimmer (davon 3 Schlafzimmer), Küche mit EBK, Vollbad, Gäste-WC, HWR, Flure, Terrasse. Lage und Zuordnung der einzelnen Räume sind den Grundrisszeichnungen zu entnehmen.
Extras und im Kaufpreis enthalten: Rollläden, Gartengerätehaus, Grundwasserbrunnen.
Lage
In bevorzugter Siedlungslage gelegene Doppelhaushälfte im aufstrebendem Lemwerder im Landkreis Wesermarsch. Lemwerder ist durchaus ein modernes kleines Städtchen mit allen Vorzügen der ortsspezifischen Infrastruktur. In ruhiger Lage, umgeben von Wiesen und Natur, direkt an der Weser, befinden sich Ärzte, Apotheken, Banken, Einkaufsmöglichkeiten, sowie Kita, Kindergärten und Schulen in direkter Umgebung. Mit dem Auto sind Sie in ca. 40 Min. in Oldenburg, 30 Min. in Delmenhorst und in ca. 40 Min. Bremen. Mit der Weserfähre erreichen Sie in kurzer Zeit Bremen-Vegesack. Für die maritimen Freunde sehr interessant: Lemwerder hat einen Yachthafen, auf dessen Höhe fließt die Lesum in die Weser und ca. 4 Km südlicher die Ochtum. Die angrenzende Wesermarsch lädt zu ausgiebigen Spaziergängen und Fahrradtouren ein.
Sonstige Angaben
Info: Finanzierungsberatung
Auf Wunsch bieten wir unseren Kunden eine externe, kostenfreie, professionelle Finanzierungsberatung an. Der unabhängige Finanzierungsexperte, Herr Heiner Schröder, informiert Sie unverbindlich über alle Belange einer optimalen, individuellen Immobilienfinanzierung. Sprechen Sie uns hierfür an!
Günstige und faire Konditionen - Schnelle Kreditentscheidung
Grundriss
Erdgeschoss
>
>
Dachgeschoss
>
>
Adresse
27809 Lemwerder
Interessante Orte
Preis- und Lageinformationen
Preistrend für Bestandsimmobilien in Lemwerder