Dieses freistehende Einfamilienhaus aus dem Jahr 1964 befindet sich in Delmenhorst Hasport und bietet auf zwei Grundstücken von ca. 1.360 m² ein attraktives Zuhause für Familien oder Paare. Die Wohnfläche im Erdgeschoss beträgt ca. 123 m² und wird durch zusätzliche Nutzflächen im Dachgeschoss ergänzt.
Der Eingangsbereich empfängt Sie mit einer praktischen Diele, von welcher aus sich das Herzstück des Hauses erschließt. Der großzügige Wohn- und Essbereich mit insgesamt über 35 m² Wohnfläche, der durch große Fensterflächen und eine helle und freundliche Atmosphäre überzeugt. Ein Kaminofen sorgt hier für behagliche Wärme und unterstreicht die gemütliche Wohnqualität. Die angrenzende Einbauküche aus dem Jahr 2015 ist modern ausgestattet und bietet kurze Wege zum Essbereich. Vom Wohnzimmer aus gelangen Sie direkt auf die teilweise überdachte und windgeschützte Terrasse, die zu entspannten Stunden im Freien einlädt.
Das Erdgeschoss verfügt zudem über zwei Kinderzimmer, ein großzügiges Arbeitszimmer sowie ein modernes Vollbad, das im Jahr 2015 saniert wurde. Diese runden die familienfreundliche und gut strukturierte Raumaufteilung ab.
Das Dachgeschoss ist teilweise ausgebaut und beherbergt ein großzügiges Schlafzimmer mit ca. 28 m² Grundfläche. Zusätzlich steht ein weiterer teilweise ausgebauter Dachraum mit ca. 13 m² zur Verfügung, hier war ursprünglich ein weiteres Badezimmer geplant. Die im Jahr 2019 eingebauten Velux-Dachflächenfenster mit Verdunkelung sorgen für gute Belichtung.
Die Immobilie wurde in den letzten Jahren in vielen Bereichen modernisiert. Die Gasheizung von Viessmann mit Warmwasserspeicher stammt aus dem Jahr 2012 außerdem wurden die Außenwände 2015 durch eine Einblasdämmung energetisch verbessert. Ergänzt wird das Energiekonzept durch eine Photovoltaikanlage aus dem Jahr 2024 mit 7 kW Leistung.
Sollten wir ihr Interesse geweckt haben, schicken sie uns gerne ein schriftliche Anfrage, um einen Besichtigungstermin vor Ort zu vereinbaren.
Delmenhorst-Hasport | Walmdachbungalow mit Kaminofen und großzügigem Grundstück
27755 Delmenhorst
Die vollständige Adresse der Immobilie erhalten Sie vom Anbieter.
Auf Karte anzeigen
Die vollständige Adresse der Immobilie erhalten Sie vom Anbieter.
Finanzierungszertifikat
In nur zwei Minuten zu Ihrem persönlichen Finanzierungszertifkat.
Infos
| Haustyp | Einfamilienhaus |
|---|---|
| Etagenzahl | 1 |
| Wohnfläche ca. | 123 m2 |
| Nutzfläche | 78,03 m2 |
| Grundstücksfläche | 1.360 m2 |
| Bezugsfrei ab | nach Absprache |
| Zimmer | 3 |
| Schlafzimmer | 2 |
| Badezimmer | 1 |
| Garage/Stellplatz | Garage |
| Anzahl Garage/Stellplatz | 1 |
Kosten
| Kaufpreis |
319.000 € |
|---|---|
| Provision |
3,57 % (inkl. MwSt.) vom beurkundeten Kaufpreis (Käuferprovision) |
Finanzierungsrechner:
Kaufpreis:
600.000 €
Eigenkapital:
600.000 €
Monatliche Rate
0 €
Effektiver Jahreszins
0 %
Sollzinsbindung
10 Jahre
Bausubstanz & Energieausweis
| Baujahr | 1964 |
|---|---|
| Objektzustand | Modernisiert |
| Qualität der Austattung | Normal |
| Heizungsart | Zentralheizung |
| Wesentliche Energieträger | Gas |
| Energieausweis | liegt vor |
| Energieausweistyp | Bedarfsausweis |
| Energieverbrauchskennwert | 224,4 kWh/(m²*a) |
| Energieeffizienzklasse | G |
224,4
kWh/(m²*a)
Energieeffizienzklasse G
- A+
- A
- B
- C
- D
- E
- F
- G
- H
- 0
- 25
- 50
- 75
- 100
- 125
- 150
- 175
- 200
- 225
- >250
Beschreibung des Objekts
Ausstattung
+ Viessmann Gas-Zentralheizung mit Warmwasserspeicher (2012)
+ Kaminofen
+ Zweifachverglaste Kunststoffenster (2015)
+ Teilweise Holzfenster (1979)
+ Veluxfester mit Verdunklung im DG (2019)
+ Vorbaurolläden im EG
+ PV-Anlage (7 KW)
+ Batteriespeicher (3 KW)
+ Zwei / Dreiadrige Elektrik
+ Saniertes Vollbad im EG (2015)
+ Einblasdämmung (2015)
+ Einbauküche (ca. 2015)
+ teilweise ausgebautes DG
+ vorbereiteter Badausbau im DG
+ Teilkeller mit Außentreppe
+ Glasfaser in der Straße
+ Garage
+ Außenstellplatz
Lage
Die angebotene Immobilie befindet sich in einem gewachsenen und überwiegend ruhigen Wohngebiet in Delmenhorst, eingebettet zwischen klassischer Einfamilienhausbebauung und dem modern geprägten Hasporter Damm. Die Lage vereint die Vorteile stadtnaher Infrastruktur mit einer angenehmen Wohnqualität im nordwestlichen Bereich von Delmenhorst. Delmenhorst selbst zeichnet sich durch eine gute Verbindung in die benachbarten Metropolregionen Bremen und Oldenburg aus.
Zahlreiche Bushaltestellen sind fußläufig in wenigen Minuten erreichbar, von dort verkehren mehrere Buslinien in Richtung Stadtzentrum, zu den größeren Stadtteilen sowie zu weiteren Verkehrsknotenpunkten. Der zentrale Bahnhof Delmenhorst mit Regionalverbindungen nach Bremen und Oldenburg kann in etwa 10-15 Minuten erreicht werden und bietet komfortable Verbindungen für Pendler.
In unmittelbarer Nähe stehen Einrichtungen des täglichen Bedarfs zur Verfügung. Einkaufsmöglichkeiten finden sich fußläufig oder mit kurzem Fahrweg, darunter zum Beispiel ein EDEKA Markt, der Kaufland Delmenhorst-Annenriede sowie weitere Supermärkte. Zudem gibt es in der Umgebung Bäckereien wie die Bäckerei Krützkamp und Dienstleister für den täglichen Bedarf. Große Einkaufs- und Dienstleistungszentren wie das Jute-Zentrum oder das City Center mit vielseitigem Einzelhandel, Gastronomie und Serviceangeboten sind ebenfalls bequem erreichbar.
Auch Bildungseinrichtungen sind in angenehmer Entfernung vorhanden. Dazu zählen unter anderem die Hermann Allmers Grundschule, die IGS Delmenhorst sowie andere weiterführende Schulen.
Für Freizeit und Erholung bietet Delmenhorst zahlreiche Möglichkeiten: Grünflächen, Parks und Sportanlagen in den benachbarten Stadtteilen laden zu Aktivitäten an der frischen Luft ein.
Auch die verkehrstechnische Anbindung ist hervorragend: Die Autobahn A28 (Bremen–Oldenburg) ist in wenigen Fahrminuten erreichbar und sorgt für eine gute regionale und überregionale Anbindung.
Sonstige Angaben
Wir weisen darauf hin, dass die von uns weitergegebenen Objektinformationen, Unterlagen, Pläne etc. vom Auftraggeber stammen. Eine Haftung für die Richtigkeit oder Vollständigkeit der Angaben übernehmen wir nicht. Es obliegt daher unseren Kunden, die darin enthaltenen Objektinformationen und Angaben auf ihre Richtigkeit hin zu überprüfen. Alle Immobilienangebote sind freibleibend und vorbehaltlich Irrtümer, Zwischenverkauf- und Vermietung oder sonstiger Zwischenverwertung.
Geldwäsche: Die Rutz Immobilien GmbH ist als Immobilienmaklerunternehmen gemäß § 2 Abs. 1 Nr. 14 und § 11 Abs. 1, 2 des Geldwäschegesetzes (GwG) verpflichtet, die Identität ihrer Vertragspartner zu überprüfen, sobald eine Geschäftsbeziehung entsteht oder ernsthaftes Interesse an einem Immobilienkaufvertrag besteht.
Dafür erfassen wir nach § 11 Abs. 4 GwG die relevanten Daten Ihres Personalausweises (bei natürlichen Personen), beispielsweise durch eine Kopie. Handelt es sich um eine juristische Person, ist ein Handelsregisterauszug erforderlich, aus dem der wirtschaftlich Berechtigte hervorgeht.
Das Geldwäschegesetz verpflichtet uns, diese Unterlagen für einen Zeitraum von fünf Jahren aufzubewahren. Zudem sind Sie als unser Vertragspartner gemäß § 11 Abs. 6 GwG zur Mitwirkung verpflichtet.
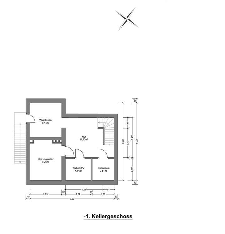
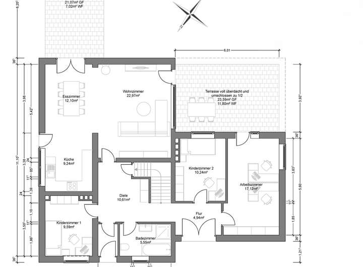
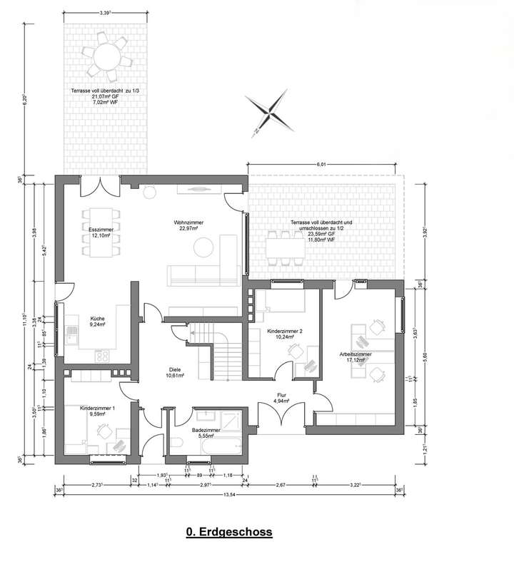
Grundriss
Grundriss Keller
>
>
Grudriss Erdgeschoss
>
>
Grundriss Dachgeschoss
>
>
Adresse
27755 Delmenhorst
Interessante Orte
Preis- und Lageinformationen
Preistrend für Bestandsimmobilien in Stickgras/Annenriede