Diese charmante Doppelhaushälfte ist ein echtes Zuhause zum Ankommen, ruhig gelegen, gemütlich, großzügig und mit all den kleinen Extras, die man im Alltag so schätzt. Schon vor dem Haus zeigt sie sich von ihrer praktischen Seite, viel Platz für Fahrräder, Kinderkram oder die Lieblingsbank, ein eingezäunter Vorgarten für mehr Privatsphäre und ein echter Pluspunkt, eine eigene Garage plus Stellplatz. Parkstress? Gibt’s hier nicht.
Hinter dem Haus eröffnet sich dann das grüne Gartenparadies, der diesen Namen auch verdient. Kein schmaler Streifen, sondern richtig Platz zum Spielen, Grillen, Gärtnern oder einfach nur Füße-hoch-legen. Die große Terrasse verbindet Wohnzimmer und Natur nahtlos miteinander, perfekte Sommer- und Winterabende inklusive. Und wenn man mal unauffällig in den Keller huschen will: Der separate Zugang macht’s möglich.
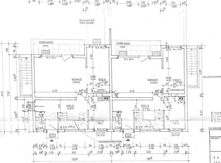
Im Inneren begrüßt ein einladender Eingangsbereich mit modernem Gäste-WC und einer zusätzlichen Abstellkammer, die alles schluckt, was man nicht ständig sehen will. Der helle Flur führt über eine schöne Holztreppe nach oben und zur Küche, die funktional ist und bereit für neue Ideen.
Das Wohn- und Esszimmer mit Kaminanschluss bildet das Herzstück des Hauses, ein Raum, in dem man zusammenkommt, lacht, zur Ruhe kommt oder einfach das Leben genießt. Genau das, was in unserer schnellen Welt immer wichtiger wird.
Im Obergeschoss warten drei Zimmer mit vielseitigen Nutzungsmöglichkeiten, zwei größere Zimmer, eines davon mit Balkon und Blick in den Garten, das andere ideal als gemütliches Kinderzimmer. Ein drittes, kleineres Zimmer eignet sich perfekt als Büro, Baby- oder Gästezimmer. Das moderne Badezimmer mit fast freistehender Wanne und zusätzlicher Dusche sorgt dafür, dass sich hier alle wohlfühlen: Platz zum Plantschen inklusive.
Ein kleiner Dachboden bietet zusätzlichen Stauraum, und im Keller stehen zwei weitere Räume bereit, ergänzt durch eine Waschküche mit eigener Dusche und direktem Gartenzugang, einer Vorratsecke sowie den Heizungsraum mit einer Buderus-Gasheizung. Alles da, alles praktisch.
Hier finden Paare und Familien genau das, was sie suchen: Ruhe, Wohnqualität und ein Umfeld, in dem der Alltag einfach leichter läuft. Das familienfreundliche Wohngebiet, kurze Wege und eine angenehme Nachbarschaft machen das Gesamtpaket perfekt. Ein Haus, das mehr bietet als vier Wände, ein Ort, an dem man sich sofort zuhause fühlt.
Besichtigungen sind nach Absprache möglich.
Hinweis zu Bilddarstellungen:
Einige Abbildungen dieses Exposés können digital bearbeitet oder als Gestaltungsbeispiele dargestellt sein. Die Darstellungen dienen der unverbindlichen Illustration und können vom tatsächlichen Zustand abweichen.
Doppelhaushälfte in begehrter Wohnlage von Sulzbach
65843 Sulzbach (Taunus)
Die vollständige Adresse der Immobilie erhalten Sie vom Anbieter.
Auf Karte anzeigen
Die vollständige Adresse der Immobilie erhalten Sie vom Anbieter.
Finanzierungszertifikat
In nur zwei Minuten zu Ihrem persönlichen Finanzierungszertifkat.
Infos
| Haustyp | Doppelhaushaelfte |
|---|---|
| Wohnfläche ca. | 120 m2 |
| Grundstücksfläche | 278 m2 |
| Bezugsfrei ab | sofort |
| Zimmer | 4 |
| Garage/Stellplatz | Garage |
| Anzahl Garage/Stellplatz | 1 |
Kosten
| Kaufpreis |
580.000 € |
|---|---|
| Provision |
3,57% Gerne führen wir gemeinsam mit Ihnen eine Besichtigung durch und stehen im Anschluss mit weiteren Informationen zum Objekt zur Verfügung. Im Falle des Abschlusses eines Kaufvertrages wird die zu zahlende Maklerprovision von 3,57%, inklusive Mehrwertsteuer, von Ihnen getragen. Bitte beachten Sie, dass wir keine Haftung für die Angaben zum Objekt, seine Nutzung und Beschaffenheit übernehmen können. Die bereitgestellten Informationen basieren auf den Angaben des Eigentümers, und Änderungen der Bedingungen oder andere Bewertungen behält sich der/die Eigentümer*in jederzeit vor. Wir möchten darauf hinweisen, dass dieses Angebot ausschließlich für Sie bestimmt ist. Eine Weitergabe bedarf der ausdrücklichen Zustimmung durch uns, ansonsten löst die Weitergabe Provisionspflicht aus. Für weitere Fragen oder für die Vereinbarung eines Besichtigungstermins stehen wir Ihnen gerne zur Verfügung. |
Finanzierungsrechner:
Kaufpreis:
600.000 €
Eigenkapital:
600.000 €
Monatliche Rate
0 €
Effektiver Jahreszins
0 %
Sollzinsbindung
10 Jahre
Bausubstanz & Energieausweis
| Baujahr | 1963 |
|---|---|
| Objektzustand | Gepflegt |
| Qualität der Austattung | Normal |
| Heizungsart | Gas-Heizung |
| Wesentliche Energieträger | Gas |
| Energieausweis | liegt vor |
| Energieausweistyp | Bedarfsausweis |
| Energieverbrauchskennwert | 232,2 kWh/(m²*a) |
| Energieeffizienzklasse | G |
232,2
kWh/(m²*a)
Energieeffizienzklasse G
- A+
- A
- B
- C
- D
- E
- F
- G
- H
- 0
- 25
- 50
- 75
- 100
- 125
- 150
- 175
- 200
- 225
- >250
Beschreibung des Objekts
Ausstattung
∙ Parkett und Fliesen
∙ Gäste-WC
∙ Badezimmer Wanne und Dusche
∙ Abstellkammer
∙ Einbauküche mit Elektrogeräten
∙ Balkon und große Terrasse
∙ komplett eingezäunt
∙ Außenausgang vom Keller
∙ Kaminanschluss im Wohnzimmer
∙ Buderus Heizung
∙ Garage und ein Stellplatz
Lage
Sulzbach im Taunus, mit einer Einwohnerzahl von etwa 9.300, liegt es idyllisch im Main-Taunus-Kreis und präsentiert sich als eine kleine Stadt, die von viel Grün umgeben ist. Der Heinrich-Kleber-Park erstreckt sich entlang der Eisenbahnstrecke und durchzieht den größten Teil des Ortes, während der Sulzbach die Stadt malerisch durchfließt.
Die Gemeinde Sulzbach ist nicht nur geprägt von ihrer naturnahen Umgebung, sondern auch von einem regen kulturellen Leben. Zahlreiche Veranstaltungen und Freizeit-Events finden hier statt, was das städtische Leben belebt und abwechslungsreich gestaltet. Der kleine Stadtkern bietet alle notwendigen Einkaufs- und Versorgungsmöglichkeiten für die Bewohner.
Die Verkehrsanbindung ist hervorragend, mit einer S-Bahn und einer K-Bahn in der Nähe sowie dem gut erreichbaren Einkaufszentrum Main-Taunus-Zentrum. Dies ermöglicht nicht nur eine bequeme Fortbewegung innerhalb von Sulzbach, sondern auch eine schnelle Anbindung an die A66 in Richtung Frankfurt oder Wiesbaden.
Sulzbach im Taunus punktet nicht nur mit seiner grünen Umgebung und dem kulturellen Angebot, sondern auch durch die unmittelbare Nähe zu Nachbarstädten wie Bad Soden und Schwalbach, die zusätzliche Möglichkeiten für Freizeitgestaltung und soziale Kontakte bieten.
Sonstige Angaben
Gerne führen wir gemeinsam mit Ihnen eine Besichtigung durch und stehen im Anschluss mit weiteren Informationen zum Objekt zur Verfügung. Im Falle des Abschlusses eines Kaufvertrages wird die zu zahlende Maklerprovision von 3,57% inklusive Mehrwertsteuer von Ihnen getragen. Bitte beachten Sie, dass wir keine Haftung für die Angaben zum Objekt, seine Nutzung und Beschaffenheit übernehmen. Die bereitgestellten Informationen basieren auf den Angaben des Eigentümers, Änderungen der Bedingungen oder andere Verwertungen behält sich der/die Eigentümer*in jederzeit vor.
Wir möchten darauf hinweisen, dass dieses Angebot ausschließlich für Sie bestimmt ist. Eine Weitergabe bedarf der ausdrücklichen Zustimmung durch uns, ansonsten löst die Weitergabe Provisionspflicht aus. Für weitere Fragen oder für die Vereinbarung eines Besichtigungstermins stehen wir Ihnen gerne zur Verfügung.
Fuchsberger & Voigt Immobilien
Ihre Immobilienmakler
Adresse
65843 Sulzbach (Taunus)
Interessante Orte
Preis- und Lageinformationen
Preistrend für Bestandsimmobilien in Sulzbach (Taunus)