Dieser gepflegte Bungalow aus dem Baujahr 1979 befindet sich in ruhiger Lage im Ortsteil Bornum der Stadt Königslutter am Elm. Mit rund 137 m² Wohnfläche bietet die Immobilie ein großzügiges Raumangebot und ein komfortables Wohnen auf einer Ebene.
Bereits beim Betreten des Hauses empfängt Sie ein separierter Eingangsbereich mit ausreichend Platz für Garderobe und Schuhe. Direkt angrenzend befindet sich ein Gäste-WC. Von hier aus öffnet sich der zentrale Wohnbereich der Immobilie.
Die Küche ist separat gehalten und liegt unmittelbar neben dem Essbereich, der als verbindendes Element zwischen Küche und Wohnzimmer dient. Das großzügige Wohnzimmer bildet das Herzstück des Hauses. Große Fensterflächen sorgen für ein lichtdurchflutetes Ambiente und ermöglichen den direkten Zugang zur halbüberdachten Terrasse sowie in den gepflegten Garten. Dieser bietet viel Raum für entspannte Stunden im Freien, gesellige Abende oder individuelle Gestaltungsmöglichkeiten.
Der private Wohnbereich ist klar vom Wohn- und Essbereich getrennt. Hier stehen Ihnen ein ruhiges Schlafzimmer, ein weiteres Zimmer, das sich ideal als Büro oder Homeoffice eignet, sowie ein Kinderzimmer mit ausreichend Platz zum Spielen und Wohlfühlen zur Verfügung. Das modernisierte Tageslichtbad überzeugt mit einer bodentiefen Dusche und zeitgemäßer Ausstattung.
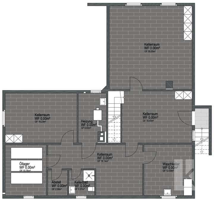
Über den Flur gelangen Sie zur Treppe in den Keller, der das Raumangebot dieser Immobilie deutlich erweitert. Der großzügige Keller bietet vielfältige Nutzungsmöglichkeiten, beispielsweise als Partylocation oder gemütlicher Aufenthaltsraum zum Beisammensein am Kamin. Ein besonderes Highlight ist die vorhandene Sauna, die Wellnessmomente im eigenen Zuhause ermöglicht. Ergänzt wird der Keller durch mehrere Abstell-, Wasch- und Technikräume mit reichlich Stauraum.
Abgerundet wird dieses attraktive Angebot durch eine Doppelgarage sowie weitere Stellplätze vor dem Haus. Zusätzlich steht ein Dachboden als praktische Abstellfläche zur Verfügung. Die Kombination aus großzügigem Wohnen auf einer Ebene, dem weitläufigen Keller mit Sauna und der ruhigen Lage macht diese Immobilie zu einer interessanten Option für Käufer, die Wert auf Raum, Komfort und Lebensqualität legen.
Wohnen mit Raum und Ruhe – Bungalow mit Garten und Wellnessfaktor in Bornum
38154 Königslutter am Elm
Die vollständige Adresse der Immobilie erhalten Sie vom Anbieter.
Auf Karte anzeigen
Die vollständige Adresse der Immobilie erhalten Sie vom Anbieter.
Finanzierungszertifikat
In nur zwei Minuten zu Ihrem persönlichen Finanzierungszertifkat.
Infos
| Haustyp | Bungalow |
|---|---|
| Wohnfläche ca. | 137 m2 |
| Grundstücksfläche | 990 m2 |
| Bezugsfrei ab | nach Vereinbarung |
| Zimmer | 5 |
| Schlafzimmer | 3 |
| Badezimmer | 1 |
| Garage/Stellplatz | Garage |
| Anzahl Garage/Stellplatz | 4 |
Kosten
| Kaufpreis |
269.000 € |
|---|---|
| Provision |
3,57 % Käuferprovision inkl. gesetzl. MwSt. Die Käufer-Provision beträgt 3,57% vom Kaufpreis inkl. MwSt. Die Käufer-Provision ist verdient und fällig mit notarieller Beurkundung. Der Immobilienmakler hat einen provisionspflichtigen Maklervertrag in gleicher Höhe mit dem Verkäufer abgeschlossen. |
Finanzierungsrechner:
Kaufpreis:
600.000 €
Eigenkapital:
600.000 €
Monatliche Rate
0 €
Effektiver Jahreszins
0 %
Sollzinsbindung
10 Jahre
Bausubstanz & Energieausweis
| Baujahr | 1979 |
|---|---|
| Objektzustand | Gepflegt |
| Heizungsart | Öl-Heizung |
| Wesentliche Energieträger | Öl |
| Energieausweis | liegt vor |
| Energieausweistyp | Verbrauchsausweis |
| Energieverbrauchskennwert | 135,1 kWh/(m²*a) |
| Energieeffizienzklasse | E |
135,1
kWh/(m²*a)
Energieeffizienzklasse E
- A+
- A
- B
- C
- D
- E
- F
- G
- H
- 0
- 25
- 50
- 75
- 100
- 125
- 150
- 175
- 200
- 225
- >250
Beschreibung des Objekts
Ausstattung
• moderner Grundriss
• großzügiger Wohn- und Essbereich
• Einbauküche mit neuwertigen Elektrogeräten
• 3 Schlafzimmer
• modernes Badezimmer mit Dusche 2015
• Gäste WC
• Sauna und Duschbad im Keller
• Kaminzimmer im Keller
• 2-fach verglaste Fenster mit Holzrahmen
• Außenrollläden
• Ölheizung (Brenner 2021 erneuert)
• Vollkeller mit wohnlichem Charakter
• Doppelgarage mit elektrischem Tor
• Holzständerbauweise
• bereits komplett saniert
Lage
Bornum ist ein ruhiger Ortsteil der Gemeinde Königslutter am Elm im Landkreis Helmstedt, Niedersachsen. Der Ort liegt landschaftlich reizvoll am nördlichen Rand des Elms und ist von Feldern, Wiesen sowie ausgedehnten Waldflächen umgeben. Die naturnahe Lage bietet einen hohen Erholungswert und ist besonders bei Familien und Naturliebhabern beliebt.
Trotz der ländlichen Prägung verfügt Bornum über eine gute Verkehrsanbindung. Die nahegelegene Bundesstraße B1 ermöglicht eine schnelle Erreichbarkeit der Städte Königslutter, Helmstedt und Braunschweig. Die Autobahn A2 (Berlin–Hannover) ist in kurzer Fahrzeit erreichbar und sorgt für eine gute überregionale Anbindung.
Einkaufsmöglichkeiten, Schulen, Kindergärten, ärztliche Versorgung sowie weitere infrastrukturelle Einrichtungen befinden sich in den umliegenden Ortschaften, insbesondere in Königslutter am Elm. Die Region bietet zudem vielfältige Freizeit- und Naherholungsmöglichkeiten, darunter Wander- und Radwege im Elm sowie kulturelle Angebote in den nahegelegenen Städten.
Bornum verbindet somit ruhiges Wohnen im Grünen mit einer guten Erreichbarkeit urbaner Zentren.
Sonstige Angaben
Gerne sind wir für weitere Fragen und Informationen unter Tel. 05361/83446-70 erreichbar.
Bei Kauf verpflichtet sich der Käufer an die Kristin Krumm Immobilien GmbH eine Maklerprovision in der angegebenen Höhe nach notariellem Kaufvertrag zu leisten. Durch Ihre Objektanfrage bestätigen Sie die Vereinbarung und Anerkennung dieser Maklercourtage.
Anfragen über die Immobilienportale werden nur mit vollständiger Adresse und Telefonnummer bearbeitet.
HAFTUNGSAUSSCHLUSS: Alle Angaben stammen vom Eigentümer. Trotz regelmäßiger Prüfung von Daten, Bildern und Informationen übernehmen wir keine Haftung für die Richtigkeit der Angaben. Ebenso wenig für die Verfügbarkeit des Angebotes.
Es gelten unsere Allgemeinen Geschäftsbedingungen.
Grundriss
Grundriss Erdgeschoss
>
>
Grundriss Kellergeschoss
>
>
Adresse
38154 Königslutter am Elm
Interessante Orte
Preis- und Lageinformationen
Preistrend für Bestandsimmobilien in Königslutter am Elm