Willkommen in Ihrem neuen Einfamilienhaus in Mühlheim am Main! Dieses exquisite Projekt ermöglicht es Ihnen, Ihre individuellen Wünsche und Vorstellungen in die Planung einfließen zu lassen. Mit großzügigen 178 m² Wohnfläche auf einem 645 m² großen Grundstück bietet dieses 6-Zimmer-Haus ausreichend Platz für die gesamte Familie. Die durchdachte Raumaufteilung über 3 Etagen umfasst 5 Schlafzimmer, die Ihnen sowohl Rückzugsmöglichkeiten als auch Raum für Kreativität bieten. Die beiden Badezimmer sind modern gestaltet und verfügen über eine Dusche, eine Wanne sowie ein Fenster, das für eine angenehme Belüftung sorgt.
Die Bodenbeläge aus Fliesen und Laminat verbinden Funktionalität mit Stil. Fliesen sind nicht nur pflegeleicht, sondern auch ideal für Feuchträume, während Laminat als warmer, ansprechender Fußbodenbelag in Wohnräumen überzeugt.
Für die umweltbewussten Käufer: Die Wärmeversorgung erfolgt über eine effiziente Wärmepumpe, die nicht nur umweltfreundlich ist, sondern auch für niedrige Betriebskosten sorgt. Zudem erfüllt das Haus die hohen Anforderungen der Energietypen KFW40 und KFW55, was Ihnen eine nachhaltige und zukunftssichere Bauweise garantiert.
Ihr Traumhaus in Mühlheim am Main - schlüsselfertig kalkuliert und komfortabel ausgestattet!
63165 Mühlheim am Main
Die vollständige Adresse der Immobilie erhalten Sie vom Anbieter.
Auf Karte anzeigen
Die vollständige Adresse der Immobilie erhalten Sie vom Anbieter.
Finanzierungszertifikat
In nur zwei Minuten zu Ihrem persönlichen Finanzierungszertifkat.
Infos
| Haustyp | Einfamilienhaus |
|---|---|
| Etagenzahl | 3 |
| Wohnfläche ca. | 178 m2 |
| Grundstücksfläche | 645 m2 |
| Zimmer | 6 |
| Schlafzimmer | 5 |
| Badezimmer | 2 |
Kosten
| Kaufpreis |
874.890 € |
|---|---|
| Provision | Nein |
Finanzierungsrechner:
Kaufpreis:
600.000 €
Eigenkapital:
600.000 €
Monatliche Rate
0 €
Effektiver Jahreszins
0 %
Sollzinsbindung
10 Jahre
Bausubstanz & Energieausweis
| Baujahr | 2026 |
|---|---|
| Bauphase | Haus in Planung (projektiert) |
| Heizungsart | Wärmepumpe |
| Energieausweis | liegt zur Besichtigung vor |
Beschreibung des Objekts
Ausstattung
- 6 Zimmer, 5 Schlafzimmer
- 2 Badezimmer mit Dusche, Wanne und Fenster
- Bodenbeläge: Fliesen und Laminat für optimalen Komfort
- Wärmepumpe für energieeffiziente Beheizung
- Niedrigenergiehaus nach KFW40 und KFW55 Standards
Lage
Das Einfamilienhaus liegt in einem ruhigen Wohngebiet in Mühlheim am Main, das ideal für Familien ist. In der unmittelbaren Umgebung finden Sie einen Bahnhof, eine Grundschule und einen Kindergarten. Dies sorgt für eine hervorragende Infrastruktur sowie vielfältige Freizeitmöglichkeiten.
Sonstige Angaben
allkauf bedeutet für Sie maximale Sicherheit, kurze Lieferzeiten und garantierte Fertigstellung. Wir kümmern uns um alle Aspekte des Bauprozesses, von der Planung bis zur Ausführung. Zu allen Häusern gehört:
- Energieeffizienzwand
- Echtholztreppe
- Luft-Wasser-Wärmepumpe
- Fußbodenheizung
- Be- und Entlüftungsanlage
- 3-fach verglaste Fenster inklusive Rollläden mit Aluminiumlamellen
- Lichte Raumhöhe 2,75 m
- inkl. erhöhten Fenstern und Türen
- TOXPROOF Gütesiegel - schadstoffgeprüfter Materialien
- Just-in-Time-Lieferungen
- Bemustern im eigenen Bemusterungszentrum mit Markenprodukten
Ob Einfamilienhaus, Doppelhaus oder Bungalow - bei allkauf finden Sie Ihr Traumhaus! Vereinbaren Sie noch heute Ihren Termin zur Planung Ihres allkauf Traumhauses.
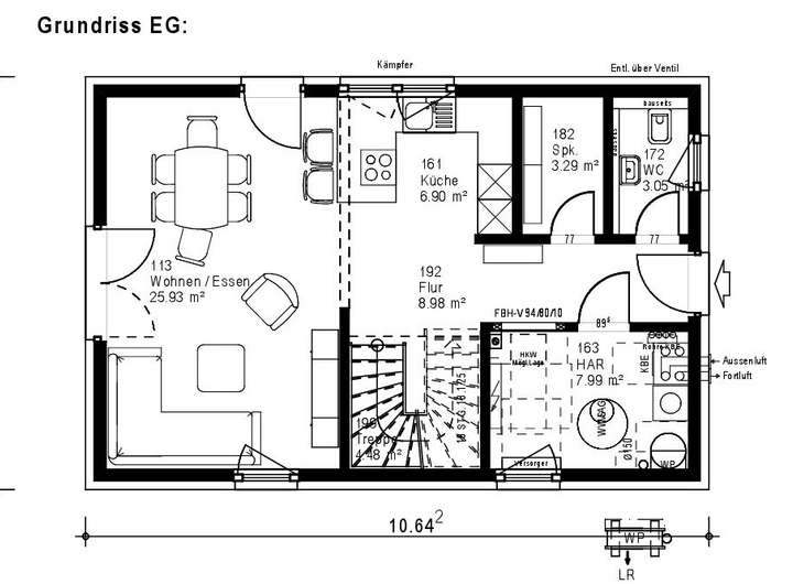
Grundriss
Grundriss City Line DG
>
>
Grundriss City Line EG
>
>
Grundriss City Line OG
>
>
Adresse
63165 Mühlheim am Main
Interessante Orte
Preis- und Lageinformationen
Preistrend für Bestandsimmobilien in Mühlheim am Main