Das angebotene KFW55-Haus in Berenbostel besticht durch viel Gemütlichkeit, warme zeitlose Farben und natürliche Baustoffe, einen modernen und praktischen Grundriss, eine sehr hohe Effizienz mit niedrigen Energie- und Nebenkosten, nachhaltigen Energieträgern, sowie einen schönen und natürlich angelegten Garten mit viel Platz für Hobbies.
Stilvolles Haus mit idyllischem Garten in Berenbostel – perfekt für Paare & Singles
30827 Garbsen
Die vollständige Adresse der Immobilie erhalten Sie vom Anbieter.
Auf Karte anzeigen
Die vollständige Adresse der Immobilie erhalten Sie vom Anbieter.
Finanzierungszertifikat
In nur zwei Minuten zu Ihrem persönlichen Finanzierungszertifkat.
Infos
| Haustyp | Einfamilienhaus |
|---|---|
| Etagenzahl | 2 |
| Wohnfläche ca. | 166 m2 |
| Nutzfläche | 49 m2 |
| Grundstücksfläche | 621 m2 |
| Bezugsfrei ab | 1.6.2026 |
| Zimmer | 5 |
| Badezimmer | 2 |
| Garage/Stellplatz | Garage |
| Anzahl Garage/Stellplatz | 2 |
Kosten
| Kaufpreis |
719.000 € |
|---|---|
| Provision | Nein |
Finanzierungsrechner:
Kaufpreis:
600.000 €
Eigenkapital:
600.000 €
Monatliche Rate
0 €
Effektiver Jahreszins
0 %
Sollzinsbindung
10 Jahre
Bausubstanz & Energieausweis
| Baujahr | 2015 |
|---|---|
| Letzte Sanierung | 2023 |
| Bauphase | Haus fertig gestellt |
| Objektzustand | Neuwertig |
| Qualität der Austattung | Gehoben |
| Heizungsart | Zentralheizung |
| Wesentliche Energieträger | Pelletheizung, Umweltwärme |
| Energieausweis | liegt vor |
| Energieausweistyp | Verbrauchsausweis |
| Energieverbrauchskennwert | 44,7 kWh/(m²*a) |
| Energieeffizienzklasse | A |
44,7
kWh/(m²*a)
Energieeffizienzklasse A
- A+
- A
- B
- C
- D
- E
- F
- G
- H
- 0
- 25
- 50
- 75
- 100
- 125
- 150
- 175
- 200
- 225
- >250
Beschreibung des Objekts
Ausstattung
- Hochwertige monolithische Bauweise
(ohne WDVS)
- Doppelgarage mit elt. Tor + 2 Stellplätze
- 2 Wallboxen in der Garage
- Werkstatt
- Süd-Terasse mit Markise
- Grillhäuschen
- Schön angelegter Garten
- Umfangreiche Elektroinstallation mit dezenter
Beleuchtung im Außenbereich
- Durchgehender Fliesenfußboden in Holzoptik
im Erdgeschoss
- Fliestapeten in allen Wohnräumen
- Großzügiger Hauswirtschaftsraum
- Einbauküche mit hochwertigen Elektrogeräten
- zusätzliche Spülküche mit Kühl- Gefrierschrank
im Hauswirtschaftsraum
- 2 moderne Bäder jeweils mit WC, Dusche und
Urinal, im OG auch Badewanne
- große Fenster mit Dreifachverglasung und
Dreifachdichtung
- Außenbeschattung (elektrische "Raffstores")
auf der Südseite
- hoher Einbruchschutz durch Sicherheitsglas
und verstärkte Verriegelungen
- stufenloser Zugang durch Haustür und Terassentür
und Terassentür
- Hochwertiger Energiestandard KFW55,
Effizienzklasse A
- Ausgezeichnet mit der "Grünen Hausnummer"
- Fußbodenheizung, Betrieb über Photovoltaik
oder Pellets- Kaminofen. Konzept für eine
Wärmepumpe liegt vor, diese würden wir in
Absprache vor Hausübergabe installieren lassen.
- Zentrale Lüftungsanlage mit Wärmerückgewinnung
- PV-Anlage mit Batteriespeicher und
Ersatzstromversorgung
- Glasfaseranschluss
- Der Innenanstrich im EG sowie der Holzanstrich im
Außenbereich wurden in den letzten 3 Jahren erneuert
- Das Geh- Fahr- und Leitungsrecht für den Privatweg
und ein Vorkaufsrecht für weitere ca. 80qm südlich des
Grundstücks sind im jeweiligen Grundbuch abgesichert
Lage
Am Ortsrand von Berenbostel am Ende eines kleinen Privatwegs ohne Durchgangsverkehr gelegen, zwischen Tieren und Bäumen, bietet diese Haus viele Möglichkeiten für Erholung und Hobby.
Supermärkte, Baumärkte, Schulen, Ärzte, Bushaltestelle und Kindergarten sind vor Ort fußläufig erreichbar.
Mit dem Auto erreichen Sie die Autobahn A2 in 5min, die Innenstadt von Hannover in 15min, sowie in 30min mit öffentlichen Verkehrsmitteln. Direkt angrenzend befindet sich die Feldmark mit Waldstücken, Naturflächen und kleinen Teichen.
Sonstige Angaben
Das Haus wird privat verkauft und daher provisionsfrei. Aufgrund der offenen Bauweise und der Lage ist das Haus besonders geeignet für Singles oder Paare, auch mit eigenen Haustieren. Mit kleinen Umbauten im OG kann es auch gut für Familien mit 1 bis max. 2 Kindern hergerichtet werden. Hierzu sind in de Anzeige als pdf Dokument verschiedene Vorschläge dargestellt. Die offene Bauweise mit wenigen, breiten Innentüren sorgen für eine hohe Barrierefreiheit, der Zugang zum OG ist zudem ebenfalls einfach barrierefrei herstellbar.
Das Haus verfügt über eine gepflasterte Terasse mit Markise, einen kleinen Gartenteich sowie ein Grillhaus und einen Geräteschuppen (Schuppen ist Altbestand).
Die Heizkosten liegen bei ca. 500 EUR/Jahr und der Strom wird zu 2/3 selbst erzeugt. Regenwassergebühr entfällt wegen Eigenversickerung. Die Gesamtbetriebskosten (Strom, Heizung, Wasser, Versicherung, Grundsteuer, Abfall) betragen ca. 280.- EUR/Monat. Das Haus wurde laufend instandgehalten, so dass man einfach einziehen kann. Die Übergabe kann nach Absprache erfolgen, kurz- oder längerfristig.
***KEINE MAKLERKONTAKTE BITTE***
Weitere Dokumente
Umbauoptionen_für_FamilienGrundriss
Grundriss EG
>
>
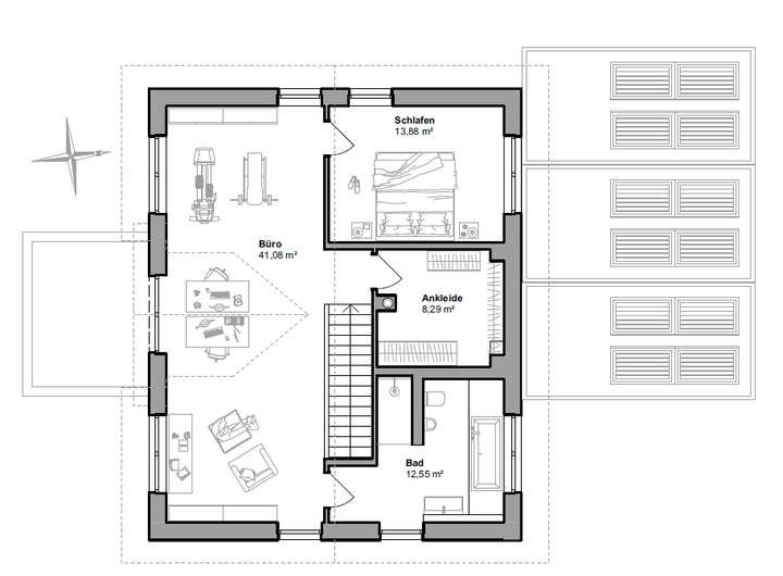
Grundriss OG
>
>
Adresse
30827 Garbsen
Interessante Orte
Preis- und Lageinformationen
Preistrend für Bestandsimmobilien in Garbsen