Attraktives Immobilienensemble in Großauheim - ein 3 - Familienhaus, ein 2 – Familienhaus und ein Einfamilienhaus mit einer zusätzlichen Wohnung im Anbau. Die Gesamtimmobilie ist bis auf das Einfamilienhaus vollständig vermietet und bietet aktuell eine Jahresnettokaltmiete von ca. € 45.000.
3 - Familienhaus (Baujahr 1906)
Gaszentralheizung
Wohnung 1 EG 3 Zimmer ca. 99 m2
Wohnung 2 OG 2,5 Zimmer ca. 94 m²
Wohnung 3 DG 3 Zimmer ca. 87 m²
2 – Familienhaus (Baujahr 1938)
Gaszentralheizung
Wohnung 1 EG 2 Zimmer ca. 61 m²
Wohnung 2 OG (inkl. DG) 4 Zimmer ca. 98,5 m²
Einfamilienhaus (Baujahr 1977) mit Anbau (Baujahr 1993)
Ölheizung
Elternbad ca. 10 Jahre alt
Einfamilienhaus 4 Zimmer ca. 150 m² (193 m² inkl. Hobbyraum)
Anbau 2 Zimmer ca. 85 m²
Nutzfläche ca. 100 m²
Gute Vermietbarkeit durch zentrale Lage
Doppelgarage
Große Scheune
Gepflegter Allgemeinzustand
Teilunterkellert
Attraktives Immobilienensemble mit 7 Wohneinheiten
63457 Hanau
Die vollständige Adresse der Immobilie erhalten Sie vom Anbieter.
Auf Karte anzeigen
Die vollständige Adresse der Immobilie erhalten Sie vom Anbieter.
Finanzierungszertifikat
In nur zwei Minuten zu Ihrem persönlichen Finanzierungszertifkat.
Infos
| Haustyp | Mehrfamilienhaus |
|---|---|
| Wohnfläche ca. | 674 m2 |
| Grundstücksfläche | 964 m2 |
| Bezugsfrei ab | nach Vereinbarung |
| Zimmer | 18 |
| Schlafzimmer | 12 |
| Badezimmer | 8 |
| Garage/Stellplatz | Außenstellplatz |
| Anzahl Garage/Stellplatz | 6 |
Kosten
| Kaufpreis |
1.349.000 € |
|---|---|
| Provision |
5,95 % inkl. MwSt. Der Makler-Vertrag mit uns und/oder unserem Beauftragten kommt durch schriftliche Vereinbarung oder durch die Inanspruchnahme unserer Maklertätigkeit auf der Basis des Objekt-Exposés und seiner Bedingungen zustande. Die Käufercourtage in Höhe von 5,95 % auf den Kaufpreis einschließlich gesetzlicher Mehrwertsteuer ist bei notariellem Vertragsabschluss verdient und fällig. Die Höhe der Bruttoprovision unterliegt einer Anpassung bei Steuersatzänderung. Maier Consulting GmbH und ggf. deren Beauftragte erhalten einen unmittelbaren Zahlungsanspruch gegenüber dem Käufer (Vertrag zugunsten Dritter, § 328 BGB). Grunderwerbssteuer, Notar- und Gerichtskosten trägt der Käufer. Alle Angaben sind ohne Gewähr und basieren ausschließlich auf Informationen, die uns von unserem Auftraggeber übermittelt wurden. Wir übernehmen keine Gewähr für die Vollständigkeit, Richtigkeit und Aktualität dieser Angaben. Zwischenverkauf bleibt vorbehalten. Sollte das von uns nachgewiesene Objekt bereits bekannt sein, teilen Sie uns dieses bitte unverzüglich mit. Die Weitergabe dieses Exposes an Dritte ohne unsere Zustimmung löst gegebenenfalls Provision- bzw. Schadensersatzansprüche aus. |
| Mieteinnahmen | 3.752 € |
Finanzierungsrechner:
Kaufpreis:
600.000 €
Eigenkapital:
600.000 €
Monatliche Rate
0 €
Effektiver Jahreszins
0 %
Sollzinsbindung
10 Jahre
Bausubstanz & Energieausweis
| Baujahr | 1903 |
|---|---|
| Objektzustand | Gepflegt |
| Qualität der Austattung | Normal |
| Heizungsart | Gas-Heizung |
| Wesentliche Energieträger | Erdgas schwer |
| Energieausweis | liegt vor |
| Energieausweistyp | Bedarfsausweis |
| Energieverbrauchskennwert | 280,7 kWh/(m²*a) |
| Energieeffizienzklasse | G |
280,7
kWh/(m²*a)
Energieeffizienzklasse G
- A+
- A
- B
- C
- D
- E
- F
- G
- H
- 0
- 25
- 50
- 75
- 100
- 125
- 150
- 175
- 200
- 225
- >250
Beschreibung des Objekts
Lage
Das Immobilienensemble in Hanau befindet sich im Stadtteil mit einer malerischen Lage inmitten von grünen Wiesen und Feldern. Die Umgebung ist ruhig und ideal für Naturliebhaber, die gern Spaziergänge oder Fahrradtouren unternehmen. Es gibt zahlreiche Einkaufsmöglichkeiten, Restaurants und Cafés in der Nähe, die eine gute Infrastruktur bieten. Zudem gibt es Schulen, Kindergärten und Spielplätze, die den Stadtteil besonders familienfreundlich machen. Hanau ist eine charmante Stadt in der Metropolregion Frankfurt Rhein-Main, die für ihre historische Altstadt, ihre kulturellen Sehenswürdigkeiten und ihre vielfältige Gastronomie bekannt ist. Die Stadt bietet eine gute Anbindung an öffentliche Verkehrsmittel, Autobahnen und den Flughafen Frankfurt, was sie zu einem attraktiven Standort für Berufspendler macht. Hanau ist zudem Heimat des berühmten Brüder-Grimm-Nationaldenkmals und verfügt über zahlreiche Parks und Grünflächen, die zum Entspannen und Verweilen einladen.
Sonstige Angaben
GELDWÄSCHE: Als Immobilienmaklerunternehmen ist die Maier Consulting GmbH nach § 2 Abs. 1 Nr. 14 und § 11 Abs. 1, 2 Geldwäschegesetz (GwG) dazu verpflichtet, bei der Begründung einer Geschäftsbeziehung die Identität des Vertragspartners festzustellen und zu überprüfen, bzw. sobald ein ernsthaftes Interesse an der Durchführung des Immobilienkaufvertrages besteht. Hierzu ist es erforderlich, dass wir nach § 11 Abs. 4 GwG die relevanten Daten Ihres Personalausweises festhalten (wenn Sie als natürliche Person handeln) – mittels einer Kopie. Bei einer juristischen Person benötigen wir eine Kopie des Handelsregisterauszugs, aus welchem der wirtschaftlich Berechtigte hervorgeht. Das Geldwäschegesetz sieht vor, dass der Makler die Kopien bzw. Unterlagen fünf Jahre aufbewahren muss. Als unser Vertragspartner haben Sie auch eine Mitwirkungspflicht nach § 11 Abs. 6 GwG.
Grundriss
Grundriss EG 3 FH
>
>
Grundriss OG 3 FH
>
>
Grundriss DG 3 FH
>
>
Grundriss KG 3 FH
>
>
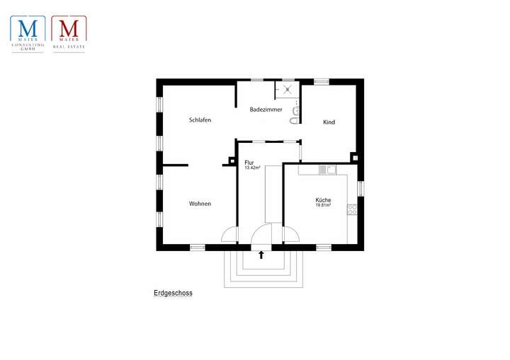
Grundriss EG EFH
>
>
Grundriss OG EFH
>
>
Grundriss EG Anbau
>
>
Grundriss OG Anbau
>
>
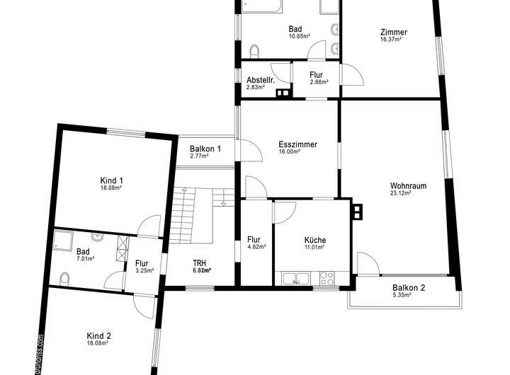
Grundriss EG Zweifamilienhaus
>
>
Grundriss OG Zweifamilienhaus
>
>
Grundriss DG Zweifamilienhaus
>
>
Adresse
63457 Hanau
Interessante Orte
Preis- und Lageinformationen
Preistrend für Bestandsimmobilien in Hanau