Dieses Haus überzeugt mit einer außergewöhnlichen Architektur aus zwei klar gegliederten Baukörpern, kontrastreicher Farbgestaltung und großzügigen Verglasungen, die für eine besonders filigrane und lichtdurchflutete Optik sorgen.
Im Inneren verbindet sich ein offener Wohn-, Ess- und Kochbereich mit hochwertigen Details wie Gaskamin, Raumteiler und direktem Gartenbezug, während das Erdgeschoss zusätzlich ein Arbeitszimmer und ein Dusch-WC bietet.
Das Obergeschoss ist als komfortabler Rückzugsort für Familien konzipiert, mit zwei Kinderzimmern samt Bad sowie einer großzügigen Elternsuite mit Ankleide und Wellnessbad. Technisch punktet das Haus als Plus-Energie-Haus mit Photovoltaik, Batteriespeicher, E-Auto-Ladestation und einem intelligenten Gebäudemanagement für Energie, Licht, Heizung und Beschattung.
Größe neu gedacht: Nachhaltiger Luxus im Effizienzhaus-Standard.
21031 Hamburg
Die vollständige Adresse der Immobilie erhalten Sie vom Anbieter.
Auf Karte anzeigen
Die vollständige Adresse der Immobilie erhalten Sie vom Anbieter.
Finanzierungszertifikat
In nur zwei Minuten zu Ihrem persönlichen Finanzierungszertifkat.
Infos
| Haustyp | Villa |
|---|---|
| Etagenzahl | 3 |
| Wohnfläche ca. | 264 m2 |
| Grundstücksfläche | 487 m2 |
| Zimmer | 7 |
| Schlafzimmer | 5 |
| Badezimmer | 1 |
Kosten
| Kaufpreis |
1.030.318 € |
|---|
Finanzierungsrechner:
Kaufpreis:
600.000 €
Eigenkapital:
600.000 €
Monatliche Rate
0 €
Effektiver Jahreszins
0 %
Sollzinsbindung
10 Jahre
Bausubstanz & Energieausweis
| Baujahr | 2027 |
|---|---|
| Energieausweis | laut Gesetz nicht erforderlich |
Beschreibung des Objekts
Ausstattung
Unsere Bien-Zenker Häuser werden in langlebiger Qualitätsausführung "zur Ausstattung fertig" angeboten. Enthalten sind unter anderem:
- moderne PV-Anlage mit europäischen Modulen und VARTA-Speicher
- Außenwände im KfW-40-Energieeffizienzstandard
- hochwertige 3-fach-verglaste Fenster (KfW 40)
- elektrische, gedämmte Alu-Rollläden im Erd- und Obergeschoss, inklusive Smart-Home-Steuerung
- neueste Wohlfühlklimaheizung Plus mit kontrollierter Be- und Entlüftung sowie Wärmerückgewinnung
- integrierte Kühlfunktion für warme Tage
- freie Grundrissplanung
- Bodenplatte
Den letzten Feinschliff gestalten Sie nach Ihren Wünschen:
Malerarbeiten, Bodenbeläge, Innentüren und Sanitärobjekte fehlen bewusst, um Ihnen maximale Gestaltungsfreiheit zu lassen. Diese Gewerke können auf Wunsch selbstverständlich ergänzt werden.
Im Angebot enthalten:
- Grundstückspreis
- Bodengutachten
- BlowerDoor-Test
- zuzüglich Baunebenkosten
Wenn Sie Eigenleistungen einbringen und Kosten sparen möchten, können einzelne Gewerke flexibel herausgenommen werden.
Bei Fragen oder individuellen Anpassungen stehe ich Ihnen gern zur Verfügung.
Lage
In unserem attraktiven Angebot ist der Grundstückspreis bereits enthalten, was Ihnen volle Planungssicherheit und Kostentransparenz garantiert.
Haben Sie bereits ein freies Grundstück im Blick oder besitzen vielleicht sogar ein Abrissobjekt, das Platz für Neues schaffen soll? Perfekt! Dann lassen Sie uns gemeinsam loslegen und Ihren Grund und Boden in das Fundament für Ihr neues Traumhaus verwandeln.
Sonstige Angaben
Die Bien-Zenker GmbH ist ein führender, deutscher Premium-Fertighaushersteller mit der Erfahrung aus über 85.000 gebauten Häusern und fast 115 Jahren Tradition.
Wenn Sie sich ein Bild von Bien-Zenker machen möchten, dann kommen Sie gerne in unser Verkaufsbüro nach Hamburg HafenCity, Versmannstrasse 22, 20457 Hamburg oder melden sich bei Frank Zobel (frank.zobel@bien-zenker.de oder unter 01787835093)
* Es handelt sich hier um eine freie Projektierung inkl. Grundstückspreis
* Abbildungen zeigen zum Teil kostenpflichtige Extras
* der Preis versteht sich ohne die ortsüblichen Baunebenkosten ect.
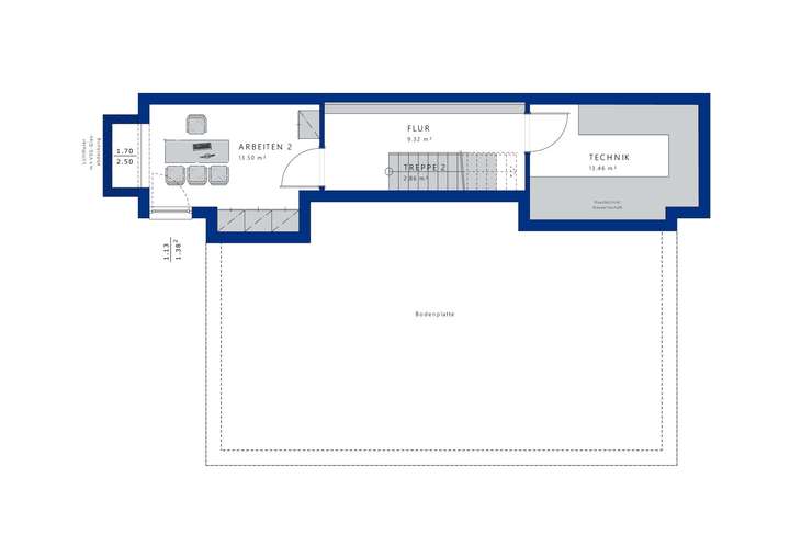
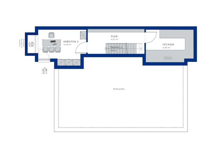
Grundriss
Grundriss
>
>
Grundriss Erdgeschoss
>
>
Grundriss Doppelhaus OG
>
>
Adresse
21031 Hamburg
Interessante Orte
Preis- und Lageinformationen
Preistrend für Bestandsimmobilien in Lohbrügge