Zum Verkauf steht ein umfangreich modernisiertes Reihenhaus mit offenem Grundriss, Wärmepumpe und Ernergieklasse B. Das Haus verfügt über 5-Zimmer und eine Wohnfläche von ca. 92 m². Die erst kürzlich abgeschlossenen Arbeiten umfassten: ein neues Dach mit Dämmung, Austausch der Fenster, die Neugestaltung aller Räume u.A. mit Fliesen im Großformat 60x60cm, Modernisierung der Elektrik, feinverputzten und geschliffenen Wänden, zwei neu gestaltete Bäder, Dämmung des Daches, Einbau einer zentralen Luft/Luft-Wärmepumpe und eine neue offene Einbauküche. Diese ist u.A. ausgestattet mit Geschirrspüler, Kochtresen, Kühl/Gefrier-Kombination, Backofen in moderner Höhe uvm. Flur, Küche und Bäder sind mit LED-Deckenspots versehen. Die Terrasse ist nach Süd/Westen ausgerichtet und lädt zu entspannten Stunden im Freien ein. Der Garten bietet Raum für individuelle Gestaltungsmöglichkeiten.
Modernisiertes Reihenhaus mit Wärmepumpe, neuem Dach und Energieklasse B, ohne Courtage
22143 Hamburg
Die vollständige Adresse der Immobilie erhalten Sie vom Anbieter.
Auf Karte anzeigen
Die vollständige Adresse der Immobilie erhalten Sie vom Anbieter.
Finanzierungszertifikat
In nur zwei Minuten zu Ihrem persönlichen Finanzierungszertifkat.
Infos
| Haustyp | Reihenmittelhaus |
|---|---|
| Wohnfläche ca. | 92 m2 |
| Grundstücksfläche | 139 m2 |
| Bezugsfrei ab | sofort |
| Zimmer | 5 |
Kosten
| Kaufpreis |
475.000 € |
|---|---|
| Provision | Nein |
Finanzierungsrechner:
Kaufpreis:
600.000 €
Eigenkapital:
600.000 €
Monatliche Rate
0 €
Effektiver Jahreszins
0 %
Sollzinsbindung
10 Jahre
Bausubstanz & Energieausweis
| Baujahr | 1958 |
|---|---|
| Bauphase | Haus fertig gestellt |
| Objektzustand | Erstbezug nach Sanierung |
| Heizungsart | Zentralheizung |
| Wesentliche Energieträger | Umweltwärme |
| Energieausweis | liegt vor |
| Energieausweistyp | Bedarfsausweis |
| Energieverbrauchskennwert | 55,0 kWh/(m²*a) |
| Energieeffizienzklasse | B |
55,0
kWh/(m²*a)
Energieeffizienzklasse B
- A+
- A
- B
- C
- D
- E
- F
- G
- H
- 0
- 25
- 50
- 75
- 100
- 125
- 150
- 175
- 200
- 225
- >250
Beschreibung des Objekts
Ausstattung
Terrasse, Garten, Keller, Vollbad, Einbauküche, Gäste-WC
Lage
Das Haus befindet sich in sehr ruhiger und dennoch zentraler Lage in Hamburg. Rahlstedt liegt im Hamburger Nord-Osten und grenzt u.a. an Stadtteile wie Farmsen und Volksdorf. Die Entfernung zur Hamburger Innenstadt beträgt knappe 10 Kilometer. Eine sehr gute Anbindung an den öffentlichen Nahverkehr ist durch zahlreiche Buslinien und ein dichtes Haltestellennetz
gegeben. Das Stadtbild ist abwechslungsreich, so findet man Mehrfamilienhäuser ebenso wie Einfamilienhäuser mit Garten in ruhiger und beschaulicher Wohnlage. Viele
Grünanlagen machen den Stadtteil als Naherholungsgebiet attraktiv.
Sonstige Angaben
Heizungsart: Zentralheizung
Makleranfragen nicht erwünscht. Nach § 7 UWG sind unaufgeforderte Kontaktaufnahmen durch Makler ohne ausdrückliche Einwilligung des Empfängers verboten!
ohne-makler (OM) ist weder Anbieter noch Vermittler der Immobilie. OM betreibt eine Plattform für Immobilieneigentümer, die unter anderem die gleichzeitige Veröffentlichung einzelner Inserate auf mehreren Immobilienportalen ermöglicht. Die Inhalte dieser Inserate werden ausschließlich von Dritten verantwortet. Für die Richtigkeit, Vollständigkeit oder Rechtmäßigkeit der Angaben übernimmt OM keine Haftung. Hinweise auf mögliche Rechtsverstöße können jederzeit gemeldet werden und werden nach Prüfung umgehend bearbeitet.
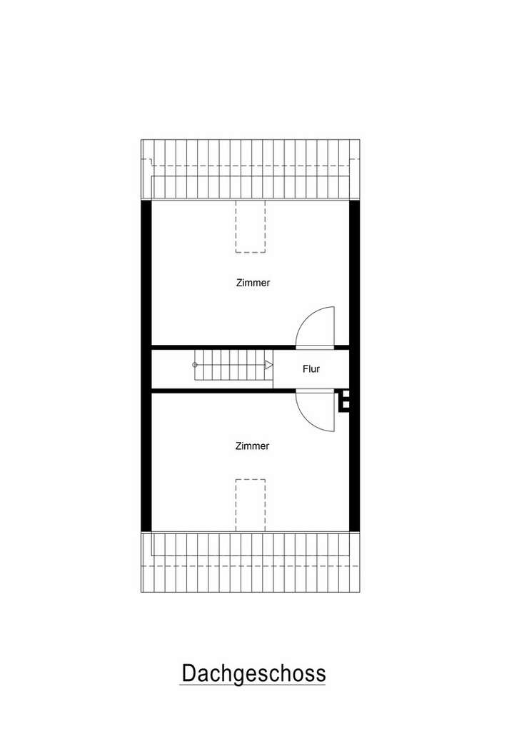
Grundriss
Erdgeschoss
>
>
1. Obergeschoss
>
>
Dachgeschoss
>
>
Keller
>
>
Adresse
22143 Hamburg
Interessante Orte
Preis- und Lageinformationen
Preistrend für Bestandsimmobilien in Rahlstedt