Das massiv gebaute Reihenmittelhaus aus dem Baujahr 1956 bietet eine seltene Gelegenheit für Familien, Mehrgenerationenhaushalte und Kapitalanleger, die ein Objekt mit großem Entwicklungspotenzial suchen.
Auf einer soliden baulichen Grundlage eröffnet sich hier die Möglichkeit, ein Haus ganz nach eigenen Vorstellungen zu gestalten und nachhaltig aufzuwerten.
Das Gebäude steht auf einem Eigentumsgrundstück und ist renovierungsbedürftig. Es überzeugt durch eine sehr gute Grundstruktur, die eine umfassende Modernisierung problemlos zulässt. Der Grundriss bietet ideale Voraussetzungen für unterschiedliche Nutzungskonzepte: Ob als großzügiges Einfamilienhaus, als Mehrgenerationenhaus oder als attraktive Kapitalanlage mit der Möglichkeit, bis zu drei separate Wohneinheiten zu realisieren.
Beheizt wird die Immobilie über Fernwärme, eine effiziente und zukunftssichere Heizform, die langfristig niedrige Betriebskosten unterstützt. Das Erdgeschoss punktet mit einer Terrasse und einem kleinen, gepflegten Garten, der zusätzlichen Wohnkomfort bietet und besonders für Familien oder Mieter einen hohen Mehrwert darstellt.
Dank der durchdachten Geschossaufteilung, der guten Belichtung und der vielseitigen Umbaumöglichkeiten eignet sich dieses Reihenhaus sowohl zur Eigennutzung als auch zur renditestarken Vermietung.
Mit der richtigen Renovierung lässt sich hier ein modernes, wertstabiles Haus oder ein lukratives Anlageobjekt in zentraler Lage schaffen.
RMH IM DORNRÖSCHENSCHLAF - IM HERZEN VON WOLFSBURG - BIS ZU 3 WE MÖGLICH
38440 Wolfsburg
Die vollständige Adresse der Immobilie erhalten Sie vom Anbieter.
Auf Karte anzeigen
Die vollständige Adresse der Immobilie erhalten Sie vom Anbieter.
Finanzierungszertifikat
In nur zwei Minuten zu Ihrem persönlichen Finanzierungszertifkat.
Infos
| Haustyp | Einfamilienhaus |
|---|---|
| Wohnfläche ca. | 173 m2 |
| Nutzfläche | 60 m2 |
| Grundstücksfläche | 254 m2 |
| Zimmer | 7 |
| Schlafzimmer | 4 |
| Badezimmer | 3 |
Kosten
| Kaufpreis |
246.000 € |
|---|---|
| Provision |
Käuferprovision beträgt 3,57 % (inkl. MwSt.) des beurkundeten Kaufpreises |
Finanzierungsrechner:
Kaufpreis:
600.000 €
Eigenkapital:
600.000 €
Monatliche Rate
0 €
Effektiver Jahreszins
0 %
Sollzinsbindung
10 Jahre
Bausubstanz & Energieausweis
| Baujahr | 1954 |
|---|---|
| Letzte Sanierung | 1990 |
| Objektzustand | Renovierungsbedürftig |
| Qualität der Austattung | Einfach |
| Wesentliche Energieträger | KWK fossil |
| Energieausweis | liegt vor |
| Energieausweistyp | Bedarfsausweis |
| Energieverbrauchskennwert | 178,8 kWh/(m²*a) |
| Energieeffizienzklasse | F |
178,8
kWh/(m²*a)
Energieeffizienzklasse F
- A+
- A
- B
- C
- D
- E
- F
- G
- H
- 0
- 25
- 50
- 75
- 100
- 125
- 150
- 175
- 200
- 225
- >250
Beschreibung des Objekts
Ausstattung
+ Zentrale Lage in Wolfsburg
+ Bis zu drei eigenständige Wohneinheiten möglich
+ Vollkeller
+ Terrasse
+ Pflegeleichter Garten
+ Fernwärme
... u.v.m...
Lage
Das Reihenmittelhaus befindet sich zentrumsnah im erweiterten Bereich der Innenstadt (ca, 1,5 km entfernt). Die Umgebung verbindet die Vorteile einer ruhigen Wohnstraße mit guter Anbindung an Einkaufsmöglichkeiten (400 m) und öffentliche Verkehrsmittel; die nächste Bushaltestelle ist ca. 100 m entfernt. Von hier fahren die Busse in kurzen regelmäßigen Abständen in die Innenstadt und zum VW Werk. Das Werk ist mit nur 2km Entfernung ebenfalls schnell zu erreichen.
Der in der Nähe liegende Klieversberg lädt mit den bewaldeten Wegen zu Freizeitaktivitäten und Spaziergängen ein.
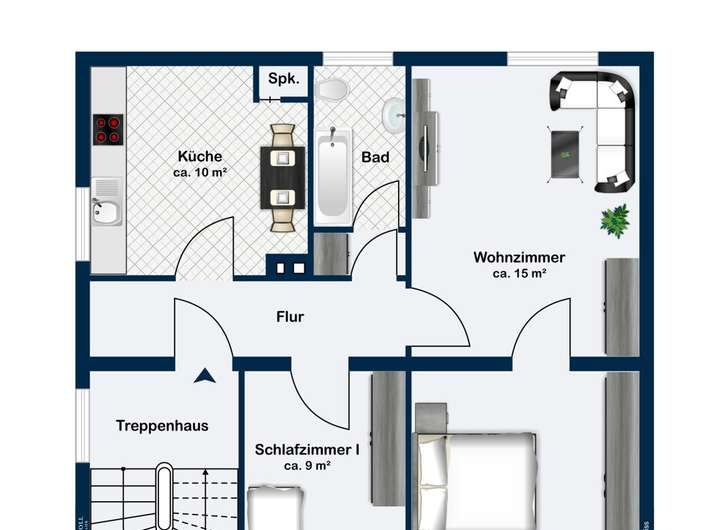
Grundriss
GRUNDRISS | ERDGESCHOSS
>
>
GRUNDISS | OBERGESCHOSS
>
>
GRUNDRISS | DACHGESCHOSS
>
>
GRUNDRISS | KG
>
>
Adresse
38440 Wolfsburg
Interessante Orte
Preis- und Lageinformationen
Preistrend für Bestandsimmobilien in Hohenstein