Herzlich willkommen in Ihrer harmonischen Oase! Diese Immobilie wurde sorgfältig gestaltet, um ein Gefühl von Ruhe und Ausgeglichenheit zu vermitteln. Jedes Detail strahlt zeitlose Eleganz aus und schafft eine wohltuende Atmosphäre für Ihren Alltag.
Niendorf, Ihr Doppelhaus am Garstedter Weg, Zurückgelegen mit Wald im Rücken.
22455 Hamburg
Die vollständige Adresse der Immobilie erhalten Sie vom Anbieter.
Auf Karte anzeigen
Die vollständige Adresse der Immobilie erhalten Sie vom Anbieter.
Finanzierungszertifikat
In nur zwei Minuten zu Ihrem persönlichen Finanzierungszertifkat.
Infos
| Haustyp | Doppelhaushaelfte |
|---|---|
| Wohnfläche ca. | 130 m2 |
| Nutzfläche | 0 m2 |
| Grundstücksfläche | 480 m2 |
| Zimmer | 5 |
| Schlafzimmer | 3 |
| Badezimmer | 1 |
| Anzahl Garage/Stellplatz | 1 |
Kosten
| Kaufpreis |
795.640 € |
|---|---|
| Provision | Nein |
Finanzierungsrechner:
Kaufpreis:
600.000 €
Eigenkapital:
600.000 €
Monatliche Rate
0 €
Effektiver Jahreszins
0 %
Sollzinsbindung
10 Jahre
Bausubstanz & Energieausweis
| Baujahr | 2026 |
|---|---|
| Bauphase | Haus in Planung (projektiert) |
| Qualität der Austattung | Gehoben |
| Heizungsart | Wärmepumpe |
Beschreibung des Objekts
Ausstattung
Neben kurzen Bauzeiten, innovativer Haustechnik, attraktiver Architektur und hochwertiger Manufaktur-Qualität bietet Ihnen das angebotene Schwabenhaus im All-Inclusive-Paket folgende Mehr-Werte:
- Niedrigeffizienzhaus mit der Option zur Erweiterung auf Niedrigstenergiehaus
- Klima-Komfort-Bauweise
- Zimmermannmäßiges Pfettendach
- Photovoltaik-Vorbereitung für die Ausführung eines Photovoltaik-Systems
- Komplette Elektro-, Sanitär- und Heizungs-Installation inkl. Grundinstallation für das Schwabenhaus
- Zukunftsweisende Elektro-Installation*
- Smart-Home-Technologie – Intelligentes Gebäude-Management für die Licht- und Rollladen-Steuerung*
- Elektrische Rollläden*
- Split-Luft-Wasser-Wärmepumpe inkl. Fußbodenheizung*
- Hochwertige, mehrschichtige Holz-Haustür in vielfältigen Design-Lösungen, mit Sicherheitsschließzylinder, 5-fach- Sicherheits-Verriegelung und 3-Scheiben-Wärmeschutzverglasung
- Kunststoff-Fenster mit 3-Scheiben-Wärmeschutzverglasung
- Dachflächenfenster mit Kipp- und Schwingfunktion sowie elektrischen Rollläden*
- Außenfensterbänke aus Naturstein
- Innenfensterbänke aus Kunst- oder Naturstein*
- Massiv-Vollholz-Stiege
- 10 sowie 30 Jahre Gewährleistung
*Ab Ausbaustufe "Belagsfertig"
Die aufgeführten Mehr-Werte und Leistungsinhalte beziehen sich ausschließlich auf das in der Schwabenhaus Bau- und Leistungsbeschreibung Österreich (BLB) beschriebene Technologie + Komfort-Paket "Red-Edition". Die Mehr-Werte und Leistungsinhalte anderer Schwabenhaus Bau- und Leistungsbeschreibungen bzw. Technologie + Komfort-Pakete können hiervon abweichen.
Lage
Niendorf, Ihr Doppelhaus am Garstedter Weg, Zurückgelegen mit Wald im Rücken.
Sonstige Angaben
Wenn Sie auf der Suche nach einer Immobilieninvestition sind, die genau Ihren Anforderungen entspricht, zögern Sie nicht länger. Kontaktieren Sie uns für ein Gespräch.
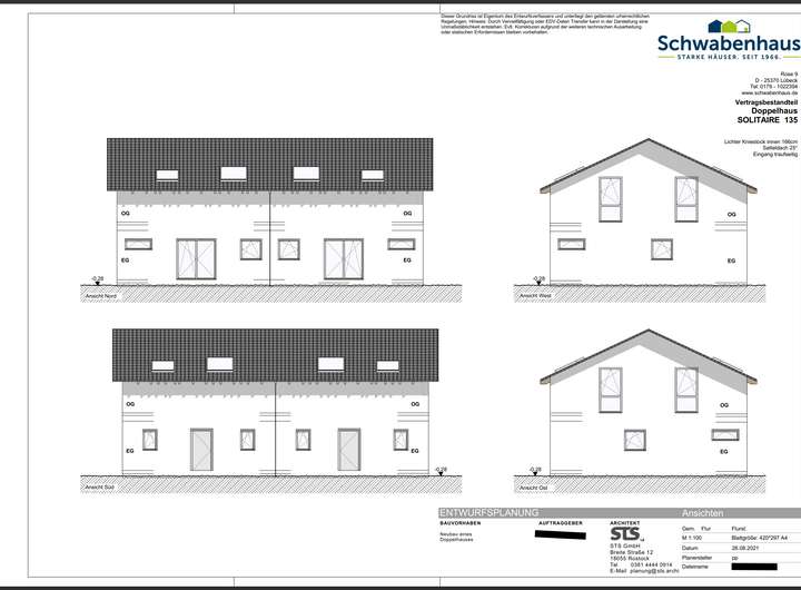
Die dargestellten Bilder und Grundrisse sind Beispiele und können Sonderausstattungen enthalten, die nicht im Preis enthalten sind. Die Kaufnebenkosten sind nicht im Preis enthalten. Alle Angaben ohne Gewähr.
Anbauteile, Carport, Garage und Keller können Extras sein, die als Sonderausstattung angeboten werden. Abbildungen, Grundrisse und Flächenangaben sind beispielhaft und können Extras zeigen. Flächenangaben nach DIN 277.
Profitieren Sie jetzt von der Schwabenhaus Online Beratung und verwirklichen Sie Ihr Traumhaus https://www.schwabenhaus.de/anmeldung-hausbau-beratung-online/
Adresse
22455 Hamburg
Interessante Orte
Preis- und Lageinformationen
Preistrend für Bestandsimmobilien in Niendorf