Willkommen in zentraler Lage der Stadt Oberursel-Oberstedten, mitten im
Rhein-Main-Gebiet.
Hier steht dieses gepflegte, im Jahre 1962 in Massivbauweise errichtete Wohn- und Geschäftshaus, bestehend aus einer Wohn- und einer Gewerbeeinheit (Grundstücksgröße 294 m², Bodenrichtwert 875,- EUR/ m²), zum Verkauf.
Komplettiert wird das Angebot durch die vier vorhandenen Stellplätze, eine Einzelgarage und eine großzügige Dachterrasse.
Im Erdgeschoss befindet sich die vermietete, ca. 82 m² umfassende Gewerbeeinheit (Ladengeschäft). Dieser sind zwei im Hof vorhandene Stellplätze zugeordnet. Die Kaltmiete beträgt aktuell 1.193,- EUR/ Monat.
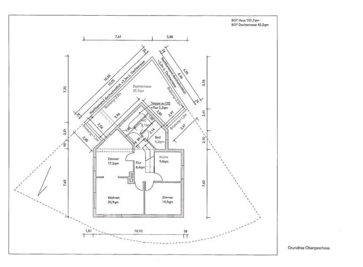
Eine genaue Anordnung der Räumlichkeiten (Verkaufsraum, Büro, Küche, WC und Lagerraum) entnehmen Sie gerne dem beigefügten Grundriss.
Das 1. OG, das DG sowie der kleine Spitzboden umfassen die sich in einem Top-Zustand befindliche Maisonette-Wohnung (Wohnfläche ca. 137 m², Nutzfläche ca. 101 m²), in welche man über ein eigenes Treppenhaus gelangt. Zu dieser sehr einladenden, lichtdurchfluteten Wohnung mit Hauscharakter gehören ebenfalls -und sind im Kaufpreis enthalten- die vorhandene Einbauküche, eine Einzelgarage (mit elektrischem Rolltor und 380 Volt-Starkstromanschluss) sowie zwei Stellplätze. Eine großzügige Dachterrasse lädt zum Entspannen und Verweilen ein.
Die Wohnung ist leerstehend und nicht vermietet.
Aufteilung der Wohneinheit:
1. OG
-modernes Gäste-WC
-modernes Tageslichtbad mit Dusche und WC
-zwei helle, sehr schön geschnittene Wohnräume (zuletzt genutzt als ein großer Wohnraum)
mit modernem Fliesenfußboden und Zugang zur großzügigen Dachterrasse
-einem weiteren, freundlich-hellen Wohnraum mit Laminatfußboden
-Tageslichtküche mit Einbauküche (im Kaufpreis enthalten)
2. OG (Treppe innerhalb der Wohnung)
-freundlich-helles, modernes Studio (Laminatfußboden) mit Top-moderner Badewanne
(Fliesenfußboden)
-Zugang zum Spitzboden (mittels Zugtreppe)
-kleiner Abstellraum
Die Räume des KG (Vorraum, Heizungsraum, Waschküche, 2 weitere Räume) sind der Wohneinheit zugeordnet.
Zusammenfassend betrachtet: Das Objekt überzeugt durch Lage und Zustand, seine durchdachte Strukturierung hinsichtlich Trennung Wohn- und Gewerbeanteil, den inkludierten Parkgegebenheiten, stabilen Gewerbemieteinnahmen und -bezüglich der Wohneinheit- freier Wahl Eigennutzung / Vermietung.
Oberursel-Oberstedten: WGH mit einer bezugsfertigen Top-WE und einem vermieteten Ladengeschäft
61440 Oberursel (Taunus)
Die vollständige Adresse der Immobilie erhalten Sie vom Anbieter.
Auf Karte anzeigen
Die vollständige Adresse der Immobilie erhalten Sie vom Anbieter.
Finanzierungszertifikat
In nur zwei Minuten zu Ihrem persönlichen Finanzierungszertifkat.
Infos
| Haustyp | Sonstige |
|---|---|
| Wohnfläche ca. | 219 m2 |
| Nutzfläche | 101 m2 |
| Grundstücksfläche | 294 m2 |
| Bezugsfrei ab | Zeitnah nach Vereinbarung. |
| Zimmer | 7 |
| Badezimmer | 3 |
Kosten
| Kaufpreis |
845.000 € |
|---|---|
| Provision |
5,95% auf den Kaufpreis inkl. 19% gesetzl. MwSt. |
Finanzierungsrechner:
Kaufpreis:
600.000 €
Eigenkapital:
600.000 €
Monatliche Rate
0 €
Effektiver Jahreszins
0 %
Sollzinsbindung
10 Jahre
Bausubstanz & Energieausweis
| Baujahr | 1962 |
|---|---|
| Objektzustand | Gepflegt |
| Heizungsart | Gas-Heizung |
| Wesentliche Energieträger | Gas |
| Energieausweis | liegt vor |
| Energieausweistyp | Bedarfsausweis |
| Energieverbrauchskennwert | 259,6 kWh/(m²*a) |
| Energieeffizienzklasse | H |
259,6
kWh/(m²*a)
Energieeffizienzklasse H
- A+
- A
- B
- C
- D
- E
- F
- G
- H
- 0
- 25
- 50
- 75
- 100
- 125
- 150
- 175
- 200
- 225
- >250
Beschreibung des Objekts
Ausstattung
Wohn- und Geschäftshaus mit einer Wohn- und einer Gewerbeeinheit (Ladengeschäft), Baujahr 1962, massiv erbaut, Grundstücksgröße 294 m², Bodenrichtwert 875,- EUR/ m²,
Heizungskessel und Warmwasserspeicher neu in 2006, Dacheindeckung mit Biberschwanzziegeln und Kupferregenrinnen neu in 1999
Gewerbeeinheit: vermietet, Kaltmiete 1.193,- EUR/ Monat, Gewerbefläche ca. 82 m², Verkaufsraum/ Büro/ Küche/ WC/ Lagerraum, 2 Stellplätze, WC-Raum in 2012 saniert;
Energieverbrauchsausweis für Nichtwohngebäude, Ausstellungsdatum 12.11.2025, Endenergieverbrauch Wärme 90,3 kWh/(m²a), Endenergieverbrauch Strom 33,1 kWh/(m²a)
Wohneinheit: Maisonette 1. OG und DG, Hauscharakter, Wohnfläche ca. 137 m², Nutzfläche ca. 101 m², 2 Stellplätze, Einzelgarage (mit elektrischem Rolltor und in 2020 Installation 380 Volt-Starkstromanschluss), eigenes Treppenhaus, Freisprechanlage, Sanitärleitungen in 2012 erneuert, Elektroleitungen in 2012 erneuert, Bodenbeläge in 2012 erneuert, Eingangsbereich EG in 2012 erneuert, Kunststofffenster mit Rollos bzw. mit Jalousien,
Gäste-WC/ Tageslichtbad/ Küche mit im Kaufpreis enthaltener Einbauküche/ 3 Wohnräume/ Studio/ kleiner Lagerraum im DG/ kleiner Spitzboden/ Dachterrasse;
Top-Zustand (in 2024 renoviert), leerstehend, nicht vermietet;
KG bestehend aus Vorraum, Heizungsraum, Waschküche, 2 Kellerräumen
Energiebedarfsausweis für Wohngebäude, Ausstellungsdatum 26.10.2025, Energieeffizienzklasse H, Energiekennwert 259,63 kWh/(m²*a)
Lage
Oberursel gilt als moderner Wirtschaftsstandort und attraktive, beliebte Stadt mit viel Lebensqualität. Mit ihren ca. 47.000 Einwohnern umfasst sie 6 Stadtteile. Oberstedten, als einer von diesen, liegt nur ca. 20 km nordwestlich von Frankfurt am Main entfernt. Infrastrukturell bietet Oberursel die gesamte Bandbreite, beispielsweise die International School.
Die Verkehrsanbindung ist in jeder Hinsicht erstklassig. Über die Autobahnen A661 und A5 sind Frankfurt am Main-City, der Flughafen und auch alle weiteren Metropolen im Rhein-Main-Gebiet bequem und zügig erreichbar. S-Bahn Anschluss mit enger Taktung besteht von Oberursel sowie Bad Homburg aus z.B. nach Frankfurt am Main Hbf., verschiedene Buslinien verkehren ebenfalls vor Ort.
Der Taunus, mit seiner waldreichen Gegend und den Ausflugszielen Herzberg, Großer Feldberg, Saalburg, Hessenpark, Limes und Lochmühle, befindet sich unmittelbar vor der „Haustür“.
Sonstige Angaben
Das Objekt kann -nach Vereinbarung- zeitnah übergeben werden.
Wir bitten um Verständnis, dass wir nur Anfragen von Interessenten mit vollständig ausgefüllten Profilangaben kontaktieren können.
Die vorstehenden Angaben und Informationen, ebenso wie von uns weitergegebene Objektunterlagen und -pläne, beruhen auf Informationen Dritter bzw. wurden uns von Dritten ausgehändigt. Für die Vollständigkeit und Richtigkeit übernehmen die Deutsche Privatfinanz AG und deren Makler keine Haftung.
Grundriss
Grundriss KG
>
>
Grundriss EG
>
>
Grundriss OG
>
>
Grundriss DG
>
>
Adresse
61440 Oberursel (Taunus)
Interessante Orte
Preis- und Lageinformationen
Preistrend für Bestandsimmobilien in Oberursel (Taunus)