Ankommen. Durchatmen. Zuhause sein.
Willkommen in einem modernen Reihenhaus, das Ruhe, Qualität und zeitgemäßes Wohnen perfekt vereint. In dritter Baureihe gelegen und eingebettet in eine kleine, familiäre Eigentümergemeinschaft, genießen Sie hier ein geschütztes Wohnumfeld fernab von Durchgangsverkehr – ideal für Paare und Familien.
Das massiv gebaute Reihenhaus ist Teil einer exklusiven Wohnanlage mit nur drei Reihenhäusern und zwei Doppelhaushälften und überzeugt durch seine harmonische Architektur sowie ein angenehm privates Wohngefühl.
Der Bau ist bereits weit fortgeschritten:
Der Rohbau ist fertiggestellt, die Fenster sind bereits eingebaut und der Innenausbau hat aktuell begonnen. Ein besonderer Vorteil für Sie: Bei schneller Entscheidung haben Sie noch die Möglichkeit, Bodenbeläge und ausgewählte Innenausstattungen nach Ihrem persönlichen Geschmack mitzubestimmen. So entsteht ein Zuhause, das wirklich zu Ihnen passt.
Errichtet nach dem KfW-55-Standard, erfüllt die Immobilie höchste Anforderungen an Energieeffizienz und Nachhaltigkeit. 3-fach isolierverglaste Fenster, eine moderne Wärmepumpenheizung sowie Fußbodenheizung in allen Wohnräumen sorgen ganzjährig für ein behagliches Wohnklima bei gleichzeitig niedrigen Betriebskosten.
Auf ca. 127 m² Wohnfläche verteilen sich 4 gut geschnittene Zimmer über drei Etagen. Hochwertiges Echtholz-Parkett und elegantes Malervlies unterstreichen den gehobenen Wohnanspruch. Das moderne Tageslichtbad mit Badewanne und bodengleicher Dusche bietet Komfort und Funktionalität auf hohem Niveau.
Ein echtes Highlight ist die sonnige Süd-West-Terrasse mit angrenzendem Garten – ein Rückzugsort für entspannte Stunden im Freien und viel Raum für individuelle Gestaltungsideen.
Weitere Ausstattungsmerkmale wie elektrische Rollläden sowie durchdachte Stauraumlösungen, darunter Technik- und Abstellräume im Dachgeschoss, runden dieses attraktive Angebot ab.
Für Ihr Fahrzeug stehen Ihnen folgende Optionen zur Verfügung:
2 Außenstellplätze für 15.000 €
oder Einzelgarage mit elektrischem Sektionaltor inklusive Außenstellplatz für 25.000 €
Bezugsfertig ab dem 4. Quartal 2026 – sichern Sie sich schon heute Ihr neues Zuhause und nutzen Sie die seltene Gelegenheit, aktiv bei der Gestaltung mitzuwirken.
Vereinbaren Sie jetzt Ihren persönlichen Beratungstermin – gerne informieren wir Sie über die aktuell noch wählbaren Ausstattungsoptionen.
Neubau-Reihenhaus kurz vor Innenausbau – Bodenbeläge noch wählbar!
Frankfurter Str. 37b,
65439 Flörsheim am Main
Auf Karte anzeigen
Finanzierungszertifikat
In nur zwei Minuten zu Ihrem persönlichen Finanzierungszertifkat.
Infos
| Haustyp | Reihenmittelhaus |
|---|---|
| Wohnfläche ca. | 127 m2 |
| Nutzfläche | 35,86 m2 |
| Grundstücksfläche | 207 m2 |
| Bezugsfrei ab | 01.11.2026 |
| Zimmer | 4 |
| Schlafzimmer | 3 |
| Badezimmer | 1 |
| Garage/Stellplatz | Garage |
| Anzahl Garage/Stellplatz | 1 |
Kosten
| Kaufpreis |
599.000 € |
|---|---|
| Preis für Garage/Stellplatz | 25.000 € |
| Provision | Nein |
Finanzierungsrechner:
Kaufpreis:
600.000 €
Eigenkapital:
600.000 €
Monatliche Rate
0 €
Effektiver Jahreszins
0 %
Sollzinsbindung
10 Jahre
Bausubstanz & Energieausweis
| Baujahr | 2026 |
|---|---|
| Heizungsart | Fußbodenheizung |
| Energieausweis | liegt vor |
| Energieausweistyp | Bedarfsausweis |
| Energieverbrauchskennwert | 13,0 kWh/(m²*a) |
| Energieeffizienzklasse | A |
13,0
kWh/(m²*a)
Energieeffizienzklasse A
- A+
- A
- B
- C
- D
- E
- F
- G
- H
- 0
- 25
- 50
- 75
- 100
- 125
- 150
- 175
- 200
- 225
- >250
Beschreibung des Objekts
Ausstattung
- Massiv gebautes Wohndomizil
- Eigentümergemeinschaft
- KFW-55 Standard
- 3-fach Isolierverglaste Fenster
- Elektrische Rollläden
- Hochwertiges Echtholz-Parkett
- Fußbodenheizung
- Malervlies in allen Wohnräumen
- Terrasse und Garten
- Wärmepumpenheizung
- Tageslichtbad (Wanne & Dusche)
- Garage mit Außenstellplatz (€ 25.000,-), alternativ zwei Außenstellplätze (€ 15.000,-)
- Technik und Abstellräume im Dachgeschoss
Lage
Flörsheim-Weilbach bietet eine erstklassige Lage mit einer idealen Mischung aus urbaner Annehmlichkeit und naturnaher Umgebung.
Die unmittelbare Nähe zur Frankfurter Straße gewährleistet eine hervorragende Anbindung an das regionale Verkehrsnetz und ermöglicht schnelle und bequeme Fahrten in die umliegenden Städte und Gemeinden. Die Autobahn A3 ist nur wenige Minuten entfernt, was besonders für Pendler von Vorteil ist, die in die nahegelegenen Wirtschaftszentren wie Frankfurt am Main oder Wiesbaden gelangen müssen.
In direkter Umgebung finden sich verschiedene Einkaufsmöglichkeiten, Supermärkte, Restaurants und Cafés, die den täglichen Bedarf decken und für eine hohe Lebensqualität sorgen. Zudem bietet die Frankfurter Straße eine Vielzahl von Dienstleistern sowie kulturelle und gastronomische Angebote.
Für Naturliebhaber und Erholungssuchende bietet Flörsheim-Weilbach eine reizvolle Landschaft mit zahlreichen Grünflächen, Parks und Naherholungsgebieten. Der nahegelegene Weilbach und die angrenzenden Felder laden zu entspannten Spaziergängen oder sportlichen Aktivitäten im Freien ein.
Die Lage ist somit nicht nur ein optimaler Ausgangspunkt für berufliche und private Unternehmungen, sondern auch ein Ort, an dem man die Vorzüge einer lebendigen Stadt mit der Ruhe der Natur vereinen kann.
Sonstige Angaben
Haftungsausschluss
Alle Angaben, Darstellungen und Berechnungen dienen lediglich der unverbindlichen Illustration und beinhalten kein Leistungsangebot des Erstellers. Der Umfang der Leistungsverpfllichtungen des Verkäufers bestimmt sich ausschließlich nach den Regelungen des Kaufvertrages und der beurkundeten Baubeschreibung. Die in den Grundrissen eingezeichneten sowie abgebildeten Darstellungen von Einrichtungsgegenständen gehören nicht zum vertraglichen Lieferumfang. Insbesondere begründen Sie keine ausdrücklichen oder konkludenten Beschaffenheits-, Haltbarkeits-oder sonstigen Garantien, Zusicherungen von Eigenschaften oder Vereinbarungen von irgendwelchen Soll-Beschaffenheiten im Hinblick auf die dargestellten Objekte. Für die Vollständigkeit und Richtigkeit wird keine Haftung übernommen. Für Art und Umfang der Ausführung und Lieferungen sind ausschließlich die zwischen den Parteien verbindlich geschlossenen Verträge und deren Anlagen maßgebend.
Die grafischen Darstellungen entsprechen dem aktuellen Planungsstand. Änderungen bleiben ausdrücklich vorbehalten. Bei den dreidimensionalen Visualisierungen handelt es sich um freie künstlerische Darstellungen, die von der Realität abweichen können. Sofern dennoch eine Haftung des Erstellers für eigenes Verschulden oder das Verschulden seiner gesetzlichen Vertreter oder Erfüllungsgehilfen infrage kommt, haftet der Ersteller nur für Vorsatz und grobe Fahrlässigkeit, für schuldhafte Verletzungen von Leben, Körper oder Gesundheit und für leicht fahrlässige Verletzungen von für die Vertragsdurchführung wesentlichen Pflichten, im letzteren Fall allerdings beschränkt auf den für den Ersteller vorhersehbaren Schaden.
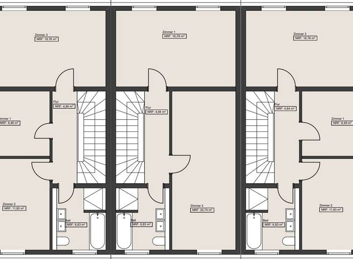
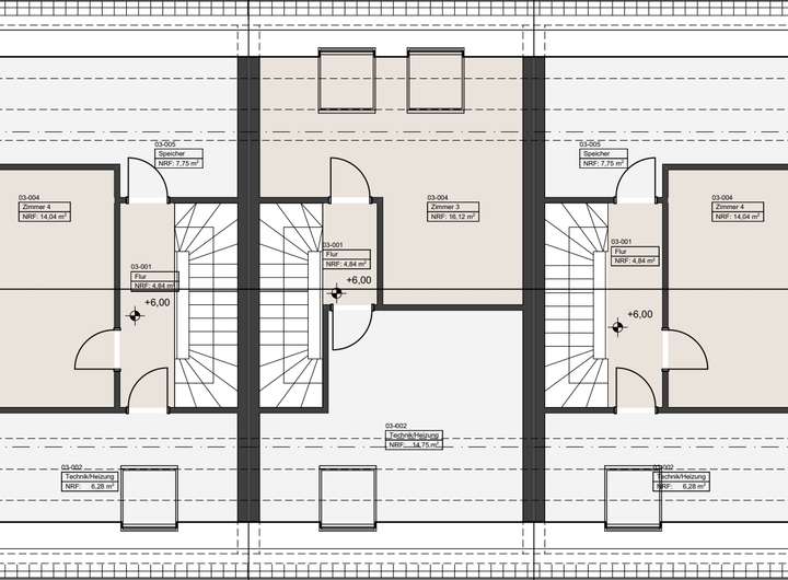
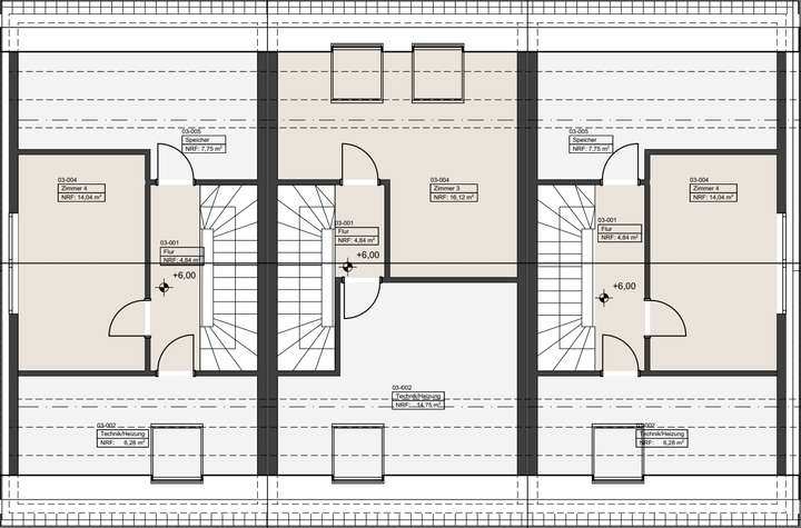
Grundriss
EG RH
>
>
OG RH
>
>
DG RH
>
>
Adresse
Frankfurter Str. 37b, 65439 Flörsheim am Main
Interessante Orte
Preis- und Lageinformationen
Preistrend für Bestandsimmobilien in Flörsheim am Main