Dieses gepflegte und modern ausgestattete Reihenmittelhaus in ruhiger Wohnlage von Niederdorfelden bietet Ihnen und Ihrer Familie ein komfortables Zuhause mit großzügigem Raumangebot und durchdachter Aufteilung. Auf ca. 142 m² Wohnfläche verteilen sich helle, gut geschnittene Räume über mehrere Ebenen und schaffen eine angenehme Wohnatmosphäre mit viel Platz zum Leben, Arbeiten und Entspannen.
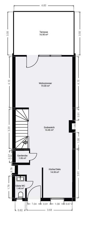
Bereits im Erdgeschoss empfängt Sie der offene und freundliche Wohn- und Essbereich, der das Herzstück des Hauses bildet. Große Fensterflächen sorgen für viel Tageslicht und einen direkten Zugang zur Terrasse – ideal für gesellige Abende oder entspannte Stunden im Freien. Die moderne Einbauküche fügt sich harmonisch ein und bietet alles, was Sie für den Alltag benötigen.
Im Ober- und Dachgeschoss stehen Ihnen mehrere flexibel nutzbare Zimmer zur Verfügung, die sich perfekt als Schlaf-, Kinder-, Gäste- oder Arbeitszimmer eignen. Das großzügige Tageslichtbad überzeugt mit Badewanne und separater Dusche und bietet damit hohen Komfort für die ganze Familie.
Das Haus ist nicht unterkellert, punktet dafür jedoch mit einer praktischen Raumaufteilung und zusätzlichen Abstellmöglichkeiten im Haus. Zwei Garagenstellplätze gehören ebenfalls zum Angebot und sorgen für bequemes und sicheres Parken direkt am Objekt.
Ein ideales Zuhause für alle, die modernes Wohnen in familienfreundlicher Umgebung suchen – einziehen und wohlfühlen.
Modernes Reihenmittelhaus mit zwei Stellplätzen – Platz für die ganze Familie in Niederdorfelden
61138 Niederdorfelden
Die vollständige Adresse der Immobilie erhalten Sie vom Anbieter.
Auf Karte anzeigen
Die vollständige Adresse der Immobilie erhalten Sie vom Anbieter.
Finanzierungszertifikat
In nur zwei Minuten zu Ihrem persönlichen Finanzierungszertifkat.
Infos
| Haustyp | Reihenmittelhaus |
|---|---|
| Wohnfläche ca. | 142 m2 |
| Nutzfläche | 6,52 m2 |
| Grundstücksfläche | 220 m2 |
| Zimmer | 5 |
| Schlafzimmer | 4 |
| Badezimmer | 1 |
| Garage/Stellplatz | Garage |
| Anzahl Garage/Stellplatz | 2 |
Kosten
| Kaufpreis |
649.000 € |
|---|---|
| Provision |
3,57 % inkl. MwSt. Wir haben einen provisionspflichtigen Maklervertrag mit dem Verkäufer in gleicher Höhe abgeschlossen. |
Finanzierungsrechner:
Kaufpreis:
600.000 €
Eigenkapital:
600.000 €
Monatliche Rate
0 €
Effektiver Jahreszins
0 %
Sollzinsbindung
10 Jahre
Bausubstanz & Energieausweis
| Baujahr | 2013 |
|---|---|
| Heizungsart | Gas-Heizung |
| Wesentliche Energieträger | Gas |
| Energieausweis | liegt vor |
| Energieausweistyp | Bedarfsausweis |
| Energieverbrauchskennwert | 107,1 kWh/(m²*a) |
| Energieeffizienzklasse | D |
107,1
kWh/(m²*a)
Energieeffizienzklasse D
- A+
- A
- B
- C
- D
- E
- F
- G
- H
- 0
- 25
- 50
- 75
- 100
- 125
- 150
- 175
- 200
- 225
- >250
Beschreibung des Objekts
Lage
Niederdorfelden liegt nordöstlich von Frankfurt und ist ein attraktiver Wohnort in der Rhein-Main-Region.
Über die B521 besteht Anschluss zur A66. Mit der Niddatalbahn erreicht man Bad Vilbel und damit auch Frankfurt. Eine Busverbindung besteht zur Kreisstadt Hanau.
Für den „täglichen Bedarf“ steht Ihnen ein Einzelhandelsangebot, welches auch regionale Produkte einschließt, zur Verfügung.
Das schulische Angebot bietet eine Grundschule. Vielfältige Kinderbetreuungsmöglichkeiten können genutzt werden.
Für Ihre Freizeitgestaltung können Sie wählen zwischen der „Natur vor der Haustür“ und vielfältigen Sport-, Kunst- und Kulturvereinen.
Sonstige Angaben
Gerne stehen wir Ihnen für ein Beratungs- und Besichtigungstermin zur Verfügung.
Sie möchten selbst eine Immobilie verkaufen?
Wir ermitteln einen seriösen und marktgerechten Wert Ihrer Immobilie. Mit einem individuell für Sie abgestimmten Vermarktungsplan optimieren wir die Verkaufschancen. Als Tochtergesellschaft der Frankfurter Volksbank Rhein/Main unterstützt uns hierbei unser umfangreiches Netzwerk. Gerne begleiten wir Sie auf dem Weg zum erfolgreichen Verkauf Ihrer Immobilie und stehen Ihnen auch noch nach dem Beurkundungstermin zur Verfügung.
Für alle Fragen zur Finanzierung stehen Ihnen die Spezialisten der Frankfurter Volksbank Rhein/Main zur Verfügung. Hier stellen wir gerne einen Kontakt her.
Sprechen Sie uns an – wir freuen uns auf Sie!
Grundriss
Erdgeschoss
>
>
Obergeschoss
>
>
Dachgeschoss
>
>
Adresse
61138 Niederdorfelden
Interessante Orte
Preis- und Lageinformationen
Preistrend für Bestandsimmobilien in Niederdorfelden