Stell dir vor, du betrittst dein zukünftiges Zuhause - eine beeindruckende Stadtvilla im Landhausstil. Mit ihren fünf Zimmern und einer großzügigen Wohnfläche von 143,81 m² bietet sie dir und deiner Familie den idealen Raum für gemeinsames Wohnen und Entspannen. Das elegante Walmdach sorgt nicht nur für einen ansprechenden Look, sondern gibt dir auch die volle Raumhöhe im Obergeschoss, die dir unzählige Gestaltungsfreiräume eröffnet. Durch durchdachte Wohnraumvergrößerungen wird jeder Winkel optimal ausgenutzt, sodass Licht und Luft in dein Zuhause strömen.
LivingHaus bietet dir nicht nur ein individuelles Fertighaus, sondern auch ein durchdachtes Gesamtkonzept, das über die Grundarchitektur hinausgeht. Die hochwertige Traumküche von Living Haus wird perfekt auf deinen Grundriss abgestimmt und sorgt mit modernster Technik und cleveren Stauraumlösungen dafür, dass du beim Kochen keine Kompromisse eingehen musst. Sie wird rechtzeitig zum Einzug geliefert, sodass du sofort mit deinen kulinarischen Kreationen loslegen kannst.
Mit dem Living Haus Bau-Cockpit behältst du stets den Überblick über dein Bauprojekt. Alle wichtigen Informationen kannst du digital abrufen - vom Zeitplan bis zur Dokumentenverwaltung. Du wirst sehen, wie stressfrei Bauen sein kann!
Das I-KON - Intelligentes Bauen-Konzept sorgt dafür, dass dein Zuhause nicht nur schön, sondern auch nachhaltig und energieeffizient ist. Die clevere Technik ist perfekt auf deine Bedürfnisse abgestimmt und hilft dir, umweltbewusst zu leben.
Finanzielle Vorteile erwarten dich ebenfalls: Mit dem Zuhause-Darlehen kannst du bis zu 250.000 EUR zu einem besonders günstigen Zinssatz finanzieren und von staatlichen Förderprogrammen profitieren.
Das Zuhause-Paket liefert dir eine hochwertige Grundausstattung, die alles umfasst, was du für dein neues Zuhause benötigst - von modernen Böden bis zu stilvollen Sanitäranlagen. Du erhältst alles in einem Paket, perfekt aufeinander abgestimmt und fix & fertig geliefert.
Wenn du selbst Hand anlegen möchtest, bietet dir Living Haus das DIY-Ausbau-Coaching. In nur drei Tagen zeigen dir Experten, wie du den Innenausbau selbst meisterst - mit vielen praktischen Tipps und Unterstützung, sodass du dein Zuhause ganz nach deinen Vorstellungen gestalten kannst.
Dein individuelles Traumhaus in Hamburg - Billstedt: Modernes Wohnen trifft auf durchdachtes Design
22119 Hamburg
Die vollständige Adresse der Immobilie erhalten Sie vom Anbieter.
Auf Karte anzeigen
Die vollständige Adresse der Immobilie erhalten Sie vom Anbieter.
Finanzierungszertifikat
In nur zwei Minuten zu Ihrem persönlichen Finanzierungszertifkat.
Infos
| Haustyp | Einfamilienhaus |
|---|---|
| Etagenzahl | 2 |
| Wohnfläche ca. | 143 m2 |
| Nutzfläche | 143,81 m2 |
| Grundstücksfläche | 479 m2 |
| Bezugsfrei ab | 2027 |
| Zimmer | 5 |
| Schlafzimmer | 1 |
| Badezimmer | 1 |
Kosten
| Kaufpreis |
816.332 € |
|---|
Finanzierungsrechner:
Kaufpreis:
600.000 €
Eigenkapital:
600.000 €
Monatliche Rate
0 €
Effektiver Jahreszins
0 %
Sollzinsbindung
10 Jahre
Bausubstanz & Energieausweis
| Baujahr | 2027 |
|---|---|
| Bauphase | Haus in Planung (projektiert) |
| Qualität der Austattung | Gehoben |
| Energieausweis | liegt vor |
| Energieausweistyp | Bedarfsausweis |
| Energieverbrauchskennwert | 18,0 kWh/(m²*a) |
| Energieeffizienzklasse | A+ |
18,0
kWh/(m²*a)
Energieeffizienzklasse A+
- A+
- A
- B
- C
- D
- E
- F
- G
- H
- 0
- 25
- 50
- 75
- 100
- 125
- 150
- 175
- 200
- 225
- >250
Beschreibung des Objekts
Ausstattung
Dieses beeindruckende Haus bietet dir eine erstklassige Ausstattung:
- Hochwertige Böden für ein stilvolles Wohnambiente.
- Edle Türen, die den Charakter deines Zuhauses unterstreichen.
- Stilvolle Sanitäranlagen für ein modernes Badezimmererlebnis.
- Individuell geplante Küche, die auf deine Bedürfnisse abgestimmt ist.
- Effiziente Heiztechnik mit Wärmepumpe und Komfortlüftung für ein angenehmes Raumklima.
- Bodengleiche Duschen mit Echtglasabtrennung für ein barrierefreies Badezimmer.
- Aluminiumgeschäumte Rollläden für optimalen Hitzeschutz im Sommer und Wärmedämmung im Winter.
Mit all diesen hochwertigen Ausstattungen wird dein zukünftiges Zuhause zu einem Ort, an dem du dich rundum wohlfühlst - genau so, wie du es willst!
Lage
Hamburg - Billstedt bietet dir eine hervorragende Lebensqualität mit einer Vielzahl an Einrichtungen für Bildung, Gesundheit und Freizeit. In der Umgebung findest du mehrere Schulen, wie die Stadtteilschule Billstedt, die für ihre gute Ausstattung und engagierten Lehrer bekannt ist. Für die Kleinsten stehen zahlreiche Kindergärten zur Verfügung, die eine liebevolle und fördernde Umgebung bieten.
Einkaufsgelegenheiten sind ebenfalls reichlich vorhanden. Der Billstedt Center, ein modernes Einkaufszentrum, bietet alles von Lebensmitteln bis hin zu Mode und Elektronik. Zahlreiche Supermärkte und Fachgeschäfte sorgen dafür, dass du deinen täglichen Bedarf bequem decken kannst.
In der Nähe befinden sich auch ausgezeichnete Gesundheitseinrichtungen, wie die Asklepios Klinik, die für ihre umfassende medizinische Versorgung geschätzt wird.
Für die Freizeitgestaltung bietet Billstedt zahlreiche Parks und Grünflächen, ideal für Spaziergänge oder sportliche Aktivitäten. Die Anbindung an den öffentlichen Nahverkehr ist optimal, mit mehreren U-Bahn- und Buslinien, die dich schnell ins Zentrum von Hamburg bringen. Zudem sind die Autobahnen A1 und A24 in unmittelbarer Nähe, was Pendlern eine stressfreie Anreise ermöglicht.
Zusammenfassend ist Billstedt ein idealer Ort für Familien, Naturliebhaber und Pendler, die die Vorzüge einer ruhigen Wohngegend mit der Nähe zur pulsierenden Stadt Hamburg verbinden möchten.
Sonstige Angaben
Das hier angebotene Grundstück ist im obigen Preis eingerechnet, es wird ohne zusätzliche Provision einen Living Haus - Bauherrn bereitgestellt.
Zusätzliche Baunebenkosten müssen noch hinzugerechnet werden, hierüber beraten wir dich gerne.
Wir bieten auch interessante Finanzierungsmöglichkeiten inklusive Beantragung aller Fördermittel!
Die Hausabbildung und die Bilder der Inneneinrichtung zeigen möglicherweise Extras, die nicht im Kaufpreis inbegriffen sind.
Gute Beratung ist der Anfang von Allem. Deshalb analysieren wir gemeinsam mit euch eure Vorstellungen, Wünsche und Bedürfnisse und finden das für dich und deiner Familie
Living Haus.
Interessiert? Kontaktiere mich und vereinbare noch heute einen kostenlosen und unverbindlichen Beratungstermin unter
0170-4711970
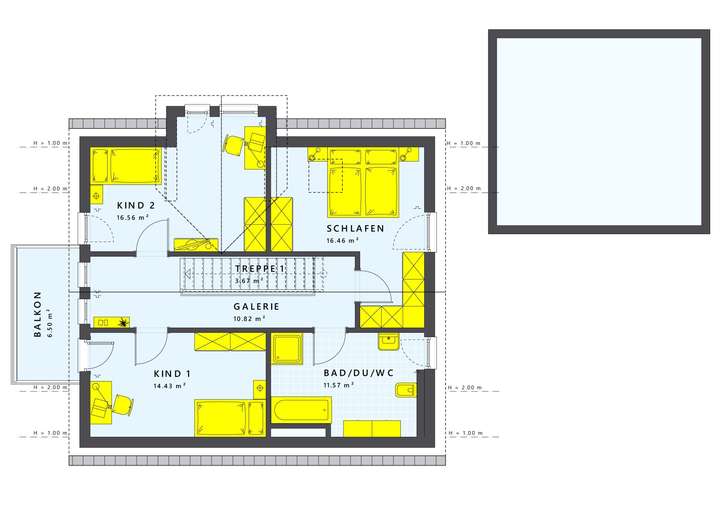
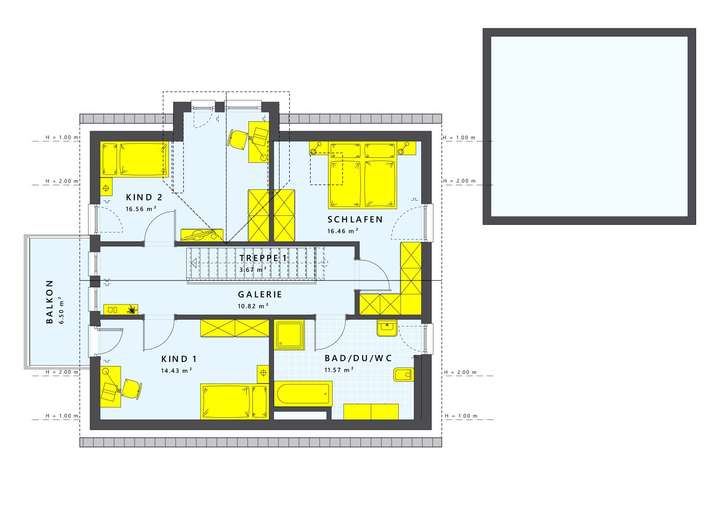
Grundriss
Konzeptbeispiel - Livinghaus:
>
>
Konzeptbeispiel - Familienfreu
>
>
Konzeptbeispiel - Livinghaus:
>
>
Konzeptbeispiel - Familienfreu
>
>
Konzeptbeispiel - Livinghaus:
>
>
Konzeptbeispiel - Cleveres Fam
>
>
Konzeptbeispiel - Livinghaus:
>
>
Konzeptbeispiel - Familienfreu
>
>
Adresse
22119 Hamburg
Interessante Orte
Preis- und Lageinformationen
Preistrend für Bestandsimmobilien in Billstedt