Dieser einzigartige Bungalow in Hamburg-Billstedt vereint modernes Design mit individueller Gestaltung. Mit einer großzügigen Wohnfläche von 110,45 m² und einer Grundstücksgröße von 478 m² bietet er dir den Raum, den du für deine Familie benötigst. Die besondere Architektur mit einer coolen Fassade und den beiden Querhäusern rechts und links schafft nicht nur ein ästhetisches Highlight, sondern auch eine praktische Einbuchtung unter dem Walmdach. Diese Fläche kannst du nach deinen Wünschen als Terrasse gestalten - perfekt für entspannte Abende im Freien oder gesellige Grillpartys mit Freunden.
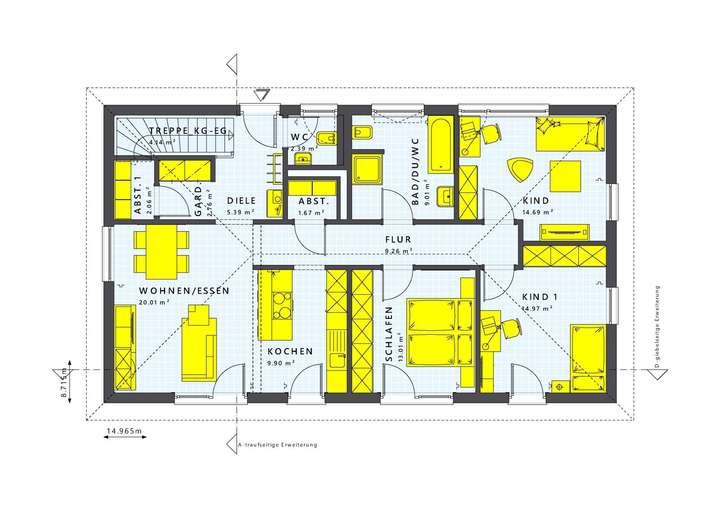
Das durchdachte Raumkonzept umfasst vier Zimmer, darunter ein Schlafzimmer und ein Badezimmer. Die offenen Wohnräume laden dazu ein, eine große Essgruppe im Wohnzimmer zu integrieren oder eine gemütliche Leseecke im Schlafzimmer einzurichten. Hier ist Platz für die ganze Familie, und du kannst dein zukünftiges Zuhause ganz nach deinen Vorstellungen gestalten.
LivingHaus bietet dir zahlreiche zusätzliche Leistungen, die dein Bauprojekt zu einem stressfreien Erlebnis machen. Die Traumküche von Living Haus wird individuell an deinen Grundriss angepasst und kommt mit modernster Technik sowie cleveren Stauraumlösungen. Sie wird rechtzeitig zum Einzug geliefert, sodass du direkt mit dem Kochen beginnen kannst. Mit dem Living Haus Bau-Cockpit behältst du jederzeit den Überblick über dein Bauprojekt - von Zeitplänen bis hin zu Dokumentenverwaltung, alles digital und einfach zugänglich.
Das I-KON - Intelligentes Bauen Konzept stellt sicher, dass dein Zuhause energieeffizient und umweltfreundlich ist, während das Zuhause-Darlehen dir exklusive Vorteile bei der Finanzierung bietet. Du kannst bis zu 250.000 EUR zu besonders günstigen Konditionen erhalten. Das Zuhause-Paket sorgt dafür, dass dein Haus mit einer hochwertigen Grundausstattung kommt, alles perfekt aufeinander abgestimmt und bereit für deinen Einzug. Und wenn du gerne selbst Hand anlegst, bietet dir unser DIY-Ausbau-Coaching die Möglichkeit, mit Unterstützung von Experten den Innenausbau selbst zu meistern.
Dein maßgeschneidertes Traumhaus in Hamburg-Billstedt - Wohnen nach deinen Vorstellungen
22119 Hamburg
Die vollständige Adresse der Immobilie erhalten Sie vom Anbieter.
Auf Karte anzeigen
Die vollständige Adresse der Immobilie erhalten Sie vom Anbieter.
Finanzierungszertifikat
In nur zwei Minuten zu Ihrem persönlichen Finanzierungszertifkat.
Infos
| Haustyp | Bungalow |
|---|---|
| Wohnfläche ca. | 110 m2 |
| Nutzfläche | 110,45 m2 |
| Grundstücksfläche | 478 m2 |
| Zimmer | 4 |
| Schlafzimmer | 1 |
| Badezimmer | 1 |
Kosten
| Kaufpreis |
625.071 € |
|---|
Finanzierungsrechner:
Kaufpreis:
600.000 €
Eigenkapital:
600.000 €
Monatliche Rate
0 €
Effektiver Jahreszins
0 %
Sollzinsbindung
10 Jahre
Bausubstanz & Energieausweis
| Baujahr | 2027 |
|---|---|
| Bauphase | Haus in Planung (projektiert) |
| Qualität der Austattung | Gehoben |
| Energieausweis | liegt vor |
| Energieausweistyp | Bedarfsausweis |
| Energieverbrauchskennwert | 18,0 kWh/(m²*a) |
| Energieeffizienzklasse | A+ |
18,0
kWh/(m²*a)
Energieeffizienzklasse A+
- A+
- A
- B
- C
- D
- E
- F
- G
- H
- 0
- 25
- 50
- 75
- 100
- 125
- 150
- 175
- 200
- 225
- >250
Beschreibung des Objekts
Ausstattung
Die Ausstattung deines neuen LivingHaus ist optimal auf deine Bedürfnisse abgestimmt. Du erhältst eine hochwertige Grundausstattung, die moderne Böden, edle Türen und stilvolle Sanitäranlagen umfasst. Die gesamte Innenausstattung ist bereits fix und fertig geliefert. Du kannst dich auf eine komplette Bauantragsplanung durch erfahrene Architekten freuen, sowie auf ein Bodengutachten für die ideale Gründung deines Hauses.
Sämtliche Innenausbaumaterialien sind im Zuhause-Paket enthalten, inklusive Fliesen für das gesamte Erdgeschoss und bodengleicher Duschen mit Echtglasabtrennung. Zudem wird durch aluminiumgeschäumte Rollläden der sommerliche Hitzeschutz verbessert und im Winter zur Wärmedämmung beigetragen.
Die moderne Wärmepumpentechnik mit Komfortlüftung sorgt für ein angenehmes Raumklima und effizientes Heizen. Bei Bedarf kannst du auch Baustrom- und Bauwasseranschlüsse über Living Haus organisieren lassen, um den Bauprozess so reibungslos wie möglich zu gestalten. Ob Bodenplatte oder Keller - alles kann im Bauwerkvertrag aus einer Hand abgewickelt werden. So wird dein Traum vom "Wie ich es will Fertighaus" zur Realität!
Lage
Hamburg - Billstedt ist ein aufstrebender Stadtteil, der dir und deiner Familie eine hervorragende Lebensqualität bietet. In unmittelbarer Nähe findest du zahlreiche Schulen und Kindergärten, die für eine optimale Bildung deiner Kinder sorgen. Die Grundschule Billstedt hat zum Beispiel eine sehr gute Bewertung von Eltern und Schülern erhalten und bietet ein breites Angebot an Freizeitaktivitäten.
Für die kleinen Entdecker gibt es zahlreiche Kinderspielplätze und Sporteinrichtungen in der Umgebung. Supermärkte wie EDEKA und Rewe sind schnell erreichbar, sodass du alles für den täglichen Bedarf bequem erledigen kannst. Auch Arztpraxen und Apotheken sind in der Nähe, was die gesundheitliche Versorgung sicherstellt.
In Bezug auf Freizeitangebote bietet Billstedt ein abwechslungsreiches Programm. Der Billstedter Einkaufszentrum ist ein beliebter Treffpunkt mit verschiedenen Geschäften, Restaurants und Cafés. Der nahegelegene Billstedter Park lädt zu Spaziergängen und Outdoor-Aktivitäten ein.
Die Anbindung an den öffentlichen Nahverkehr ist ebenfalls hervorragend. Die U-Bahn-Station Billstedt ist nur wenige Minuten entfernt und bringt dich schnell ins Zentrum von Hamburg. Für Pendler ist die Autobahn A1 in kurzer Zeit erreichbar, sodass du auch überregional gut angebunden bist. Mit all diesen Vorzügen ist Hamburg-Billstedt ein idealer Standort für Familien, Naturliebhaber und Pendler, die ein harmonisches Leben in einer lebenswerten Umgebung suchen.
Sonstige Angaben
Das hier angebotene Grundstück ist im obigen Preis eingerechnet, es wird ohne zusätzliche Provision einen Living Haus - Bauherrn bereitgestellt.
Zusätzliche Baunebenkosten müssen noch hinzugerechnet werden, hierüber beraten wir dich gerne.
Wir bieten auch interessante Finanzierungsmöglichkeiten inklusive Beantragung aller Fördermittel!
Die Hausabbildung und die Bilder der Inneneinrichtung zeigen möglicherweise Extras, die nicht im Kaufpreis inbegriffen sind.
Gute Beratung ist der Anfang von Allem. Deshalb analysieren wir gemeinsam mit euch eure Vorstellungen, Wünsche und Bedürfnisse und finden das für dich und deiner Familie
Living Haus.
Interessiert? Kontaktiere mich und vereinbare noch heute einen kostenlosen und unverbindlichen Beratungstermin unter
0170-4711970
Grundriss
Grundriss - EG
>
>
Grundriss - EG
>
>
Grundriss - EG
>
>
Grundriss - EG mit Keller
>
>
Adresse
22119 Hamburg
Interessante Orte
Preis- und Lageinformationen
Preistrend für Bestandsimmobilien in Billstedt