Dieser attraktive Bungalow zeichnet sich vor allem durch seine gefragte, grüne und dennoch zentrale Lage im Hamburger Westen aus!
Das Haus ist mit seinem Grundriss für Familien ebenso attraktiv wie zum "Wohnen u. Arbeiten" und erfüllt auch den Wunsch nach "barrierearmen" Wohnen.
Die Ausstattung ist gepflegt, bedarf jedoch einer Modernisierung in deren Zug die energetische Verbesserung des Gebäudes durch einen Austausch der Fenster und zeitgemäße Dachdämmung anzuraten ist. Diese Maßnahmen sind in Anbetracht der Werthaltigkeit des Grundstücks im Kaufpreis umfassend berücksichtigt.
Eine Besichtigung ist sehr zu empfehlen und jederzeit mit unserem Büro zu vereinbaren, auch bezüglich einer Finanzierung beraten wir Sie gern.
• Eleganter, eingeschossiger Reihenbungalow in ruhiger, gepflegter Wohnanlage
• Nach Süden ausgerichtet, umschließt das Haus u - förmig ein großes, offenes Atrium
• Die Bauweise ist massiv "Stein-auf-Stein" mit klassischer Flachdacheindeckung
• Weiß geschlämmte Verblendsteinfassade
• Dunkelgrüne Holzfenster mit Isolierverglasung aus 1983
• Beheizung und Warmwasserbereitung über Fernwärme der Hansestadt Hamburg
• Ein ca. 8 m² großer Abstell- / Heizungsraum ist vom Atrium aus zugänglich
• Das Haus ist nicht unterkellert
• Zur Wohnanlage gehören Müllboxen und Einzelgaragen im Gemeinschaftseigentum
• Der rückwärtige Westgarten ist naturbelassen und nicht einsehbar
• Der Vorgarten ist immergrün bepflanzt, ein lauschiges Plätzchen für den Morgenkaffee
"… ein lauschiges Plätzchen!" Großzügiger Atrium - Bungalow zur Modernisierung
22609 Hamburg
Die vollständige Adresse der Immobilie erhalten Sie vom Anbieter.
Auf Karte anzeigen
Die vollständige Adresse der Immobilie erhalten Sie vom Anbieter.
Finanzierungszertifikat
In nur zwei Minuten zu Ihrem persönlichen Finanzierungszertifkat.
Infos
| Haustyp | Bungalow |
|---|---|
| Etagenzahl | 1 |
| Wohnfläche ca. | 128 m2 |
| Nutzfläche | 11,5 m2 |
| Grundstücksfläche | 375 m2 |
| Bezugsfrei ab | nach Vereinbarung |
| Zimmer | 4 |
| Schlafzimmer | 3 |
| Badezimmer | 2 |
| Garage/Stellplatz | Garage |
| Anzahl Garage/Stellplatz | 1 |
Kosten
| Kaufpreis |
700.000 € |
|---|---|
| Provision |
3,57 Die zu zahlende Maklerprovision beträgt für den Käufer sowie für den Verkäufer gemäß § 656c, BGB, gleichermaßen 3,57 % inkl. der gesetzlichen MwSt. auf den Kaufpreis, verdient und zahlbar bei Abschluss des wirksamen Kaufvertrages. |
Finanzierungsrechner:
Kaufpreis:
600.000 €
Eigenkapital:
600.000 €
Monatliche Rate
0 €
Effektiver Jahreszins
0 %
Sollzinsbindung
10 Jahre
Bausubstanz & Energieausweis
| Baujahr | 1971 |
|---|---|
| Bauphase | Haus fertig gestellt |
| Objektzustand | Gepflegt |
| Qualität der Austattung | Normal |
| Heizungsart | Zentralheizung |
| Wesentliche Energieträger | Fernwärme |
| Energieausweis | liegt vor |
| Energieausweistyp | Verbrauchsausweis |
| Energieverbrauchskennwert | 265,9 kWh/(m²*a) |
| Energieeffizienzklasse | H |
265,9
kWh/(m²*a)
Energieeffizienzklasse H
- A+
- A
- B
- C
- D
- E
- F
- G
- H
- 0
- 25
- 50
- 75
- 100
- 125
- 150
- 175
- 200
- 225
- >250
Beschreibung des Objekts
Ausstattung
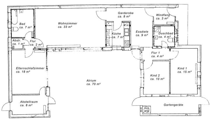
• Das Haus präsentiert sich zum Atrium ausgerichtet, großzügig und ansprechend hell
• Der durchdachte Grundriss bietet einen großen Wohnraum und zwei Schlafbereiche
• Der vordere Trakt ist in zwei Kinder- bzw. Arbeitszimmer nebst Duschbad aufgeteilt, der rückwärtige Bereich mit separatem Flur in ein großes Schlafzimmer zzgl. Vollbad und weiterem Büro / Ankleide
• Die Küche ist zurzeit vom Wohnraum getrennt, im Zuge einer Renovierung würde sich ggfs. ein Wanddurchbruch zugunsten einer offenen Raumgestaltung anbieten, die Umsetzung ist bautechnisch zu prüfen
• Die Bäder sind gepflegt und in nutzbarem Zustand, jedoch langfristig zu modernisieren
• Im Zuge einer Modernisierung sollte auch die Elektrik dem heutigen Standard angepasst werden
• Die Fußböden sind im Eingangsbereich mit ansprechend klassischen Fliesen gestaltet, im Wohn- u. Schlafbereich wurde Parkett verlegt, in den Kinderzimmern Teppichware
Lage
• Bevorzugte Lage in herrlich grünem, zentralem Wohngebiet von Klein-Flottbek
• Einkaufsmöglichkeiten, Ärzte und Apotheken im fußläufig erreichbaren Elbe-Einkaufszentrum
• Kindergärten und alle Schultypen in unmittelbarer Umgebung
• Perfekte Anbindung an den ÖPNV: die Bahn 'S1' bringt Sie in ca. 20 Minuten in die Hamburger City sowie in ca. 45 Minuten geradewegs an den Flughafen
• Zur Bushaltestelle 'Langkamp' sind es nur 3 Minuten, der Bus 21 fährt Sie in 5 Minuten zum S-Bahnhof 'Klein Flottbek'
• Die Elbvororte bieten mit ihren zahlreichen Parks, Tennis- und Golfplätzen attraktive Freizeit-, Sport- und Erholungsmöglichkeiten
• Zum Elbstrand radeln Sie nur ein paar Minuten die Straße hinunter nach "Teufelsbrück"
Grundriss
Erdgeschoss
>
>
Adresse
22609 Hamburg
Interessante Orte
Preis- und Lageinformationen
Preistrend für Bestandsimmobilien in Osdorf