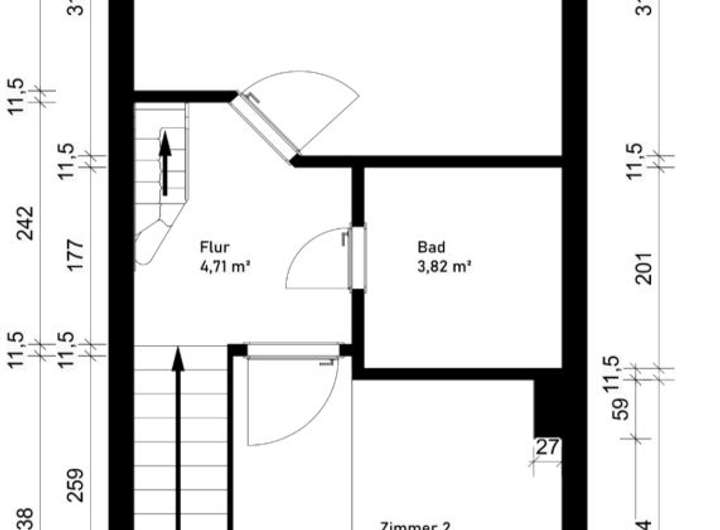
Dieses modernisierte Reihenhaus besticht durch seine hervorragende Lage und ein pflegeleichtes, nach Süden ausgerichtetes Grundstück mit ruhig gelegener Terrasse und Garten. Die Immobilie bietet insgesamt fünf Zimmer, zwei Bäder, ein ausgebautes Dachgeschoss sowie nutzbare Kellerräume. Im Erdgeschoss erwarten Sie eine freundliche Diele, eine moderne Küche und das Wohnzimmer mit direktem Zugang zur geschützten Terrasse und zum sonnigen Garten. Das Obergeschoss umfasst zwei Schlafzimmer - eines davon mit Blick auf den Garten - sowie ein zeitgemäßes Bad. Das ausgebaute Dachgeschoss, ausgestattet mit zwei neuen Dachflächenfenstern, eignet sich hervorragend als Schlaf-, Arbeits- oder Hobbyraum. Der Vollkeller verfügt über ein Gäste-WC, eine separate Dusche, einen großen beheizten Raum mit Fenster und einen Hauswirtschaftsraum. Die Wohnfläche beträgt rund 110 m² (DIN 277).
Provisionsfrei* Sonniges modernes Zuhause im Grünen
21149 Hamburg
Die vollständige Adresse der Immobilie erhalten Sie vom Anbieter.
Auf Karte anzeigen
Die vollständige Adresse der Immobilie erhalten Sie vom Anbieter.
Finanzierungszertifikat
In nur zwei Minuten zu Ihrem persönlichen Finanzierungszertifkat.
Infos
| Haustyp | Reihenmittelhaus |
|---|---|
| Wohnfläche ca. | 107 m2 |
| Nutzfläche | 39 m2 |
| Grundstücksfläche | 127 m2 |
| Bezugsfrei ab | 1.03.2026 |
| Zimmer | 5 |
| Schlafzimmer | 3 |
| Badezimmer | 2 |
Kosten
| Kaufpreis |
448.800 € |
|---|---|
| Provision | Nein |
Finanzierungsrechner:
Kaufpreis:
600.000 €
Eigenkapital:
600.000 €
Monatliche Rate
0 €
Effektiver Jahreszins
0 %
Sollzinsbindung
10 Jahre
Bausubstanz & Energieausweis
| Baujahr | 1957 |
|---|---|
| Objektzustand | Saniert |
| Qualität der Austattung | Gehoben |
| Heizungsart | Fußbodenheizung |
| Energieausweis | liegt vor |
| Energieausweistyp | Bedarfsausweis |
| Energieverbrauchskennwert | 51,0 kWh/(m²*a) |
| Energieeffizienzklasse | B |
51,0
kWh/(m²*a)
Energieeffizienzklasse B
- A+
- A
- B
- C
- D
- E
- F
- G
- H
- 0
- 25
- 50
- 75
- 100
- 125
- 150
- 175
- 200
- 225
- >250
Beschreibung des Objekts
Ausstattung
Sofort bezugsfertig - einfach einziehen und wohlfühlen! Das Haus wurde umfassend modernisiert: neue Elektroinstallation inklusive Sicherungskasten, dreifach verglaste Fenster mit elektrischen Rollläden, Fußbodenheizung auf allen Etagen mit drei individuell steuerbaren Wärmepumpen sowie neue BOSCH-Durchlauferhitzer (Energieklasse A). Über der Fußbodenheizung liegt ein durchgängiger Vinylboden in Eichenoptik mit Hamburger Leiste. Dank Wärmedämmfassade, gut isoliertem Dach und moderner Haustechnik genießt man hier hohen, energieeffizienten Wohnkomfort.
Lage
Das Reihenhaus liegt in einer ruhigen Straße in Neugraben-Fischbek, umgeben von gepflegten Gärten und einer familienfreundlichen Nachbarschaft. Parkmöglichkeiten sind in der Anwohnerstraße ausreichend vorhanden. Einkaufsmöglichkeiten, Restaurants und Cafés befinden sich in unmittelbarer Nähe. Die Bushaltestelle "Fischbeker Heuweg" ist in ca. 2 Minuten zu Fuß erreichbar und sorgt für eine schnelle Verbindung in die Hamburger Innenstadt. Schulen, Kitas und medizinische Einrichtungen sind ebenfalls gut erreichbar. Nur etwa eine Gehminute entfernt liegt die Fischbeker Heide - ideal für Spaziergänge und Erholung im Grünen.
Adresse
21149 Hamburg
Interessante Orte
Preis- und Lageinformationen
Preistrend für Bestandsimmobilien in Neugraben-Fischbek