Das freistehende luxuriös ausgestattete und modern designte Einfamilienhaus (KfW 40) wurde 2010 in massiver Bauweise errichtet und befindet sich im Frankfurter Norden in einer kleinen Anliegerstraße. Eine große Garage und ein PkW-Stellplatz sind auf dem Grundstück vorhanden. Sowohl die Aufteilung der Räume als auch das Gesamtensemble sind durchdacht und sehr komfortabel.
Im Erdgeschoss in offener Bauweise befinden sich ein großer Wohn-/Essbereich mit einem modernen Kamin, eine geräumige Küche, ein Gäste-WC und ein Hauswirtschaftsraum. Die hohen Decken (2,90 m), die bodentiefen Fenster und das Atrium (Höhe 5 m) verleihen diesem Geschoss viel Licht und ein besonders großzügiges Raumgefühl.
Im Obergeschoss befinden sich ein Schlafraum und ein weiteres Zimmer. Die luftige Galerie ist ein Highlight des Hauses. Außerdem sind hier ein großes Wellness-Bad mit Regen-Dusche, Sauna und Whirlpool und ein kleineres Duschbad vorhanden. In allen Bädern inkl. Gäste-WC gibt es Sanitärobjekte und Armaturen von renommierten Markenherstellern.
Die Böden sind mit hochwertigen Fliesen und Eichenparkett belegt. Alle Fenster in EG und OG sind mit programmierbaren Rollläden ausgestattet und in den Wohnräumen im EG und OG meist bodentief. Alle Ausstattungsdetails wurden designorientiert ausgewählt.
Im Dachgeschoss befinden sich ein helles Studio und ein gemütlicher Mehrzweckraum sowie ein Abstellzimmer (beide mit Dachschrägen).
Niedrige Heizkosten werden durch eine Wärmepumpe kombiniert mit Solarthermie, Fußbodenheizung auf jeder Etage, 3fach-verglaste Fenster, eine wirksame Dämmung und den Kamin erreicht.
Der Garten ist nach Süden ausgerichtet, schön mit Blumen, Sträuchern und Bäumen angelegt und nicht einsehbar. Es gibt zwei Bambusholz-Terrassen, eine davon überdacht.
Im ganzen Haus wurde auf modernes hochwertiges und designorientiertes Ambiente Wert gelegt.
Sicherheitsmerkmale: Mehrfachverzapfung, abschließbare Riegel, robuste Haustür, Bewegungsmelder und Rollläden.
Grün und modern wohnen in Frankfurt
60433 Frankfurt am Main
Die vollständige Adresse der Immobilie erhalten Sie vom Anbieter.
Auf Karte anzeigen
Die vollständige Adresse der Immobilie erhalten Sie vom Anbieter.
Finanzierungszertifikat
In nur zwei Minuten zu Ihrem persönlichen Finanzierungszertifkat.
Infos
| Haustyp | Einfamilienhaus |
|---|---|
| Etagenzahl | 3 |
| Wohnfläche ca. | 175 m2 |
| Nutzfläche | 69 m2 |
| Grundstücksfläche | 430 m2 |
| Zimmer | 5 |
| Badezimmer | 2 |
| Garage/Stellplatz | Garage |
| Anzahl Garage/Stellplatz | 1 |
Kosten
| Kaufpreis |
998.000 € |
|---|---|
| Provision | Nein |
Finanzierungsrechner:
Kaufpreis:
600.000 €
Eigenkapital:
600.000 €
Monatliche Rate
0 €
Effektiver Jahreszins
0 %
Sollzinsbindung
10 Jahre
Bausubstanz & Energieausweis
| Baujahr | 2010 |
|---|---|
| Bauphase | Haus fertig gestellt |
| Objektzustand | Neuwertig |
| Qualität der Austattung | Gehoben |
| Heizungsart | Wärmepumpe |
| Wesentliche Energieträger | Strom |
| Energieausweis | liegt vor |
| Energieausweistyp | Verbrauchsausweis |
| Energieverbrauchskennwert | 18,2 kWh/(m²*a) |
| Energieeffizienzklasse | A+ |
18,2
kWh/(m²*a)
Energieeffizienzklasse A+
- A+
- A
- B
- C
- D
- E
- F
- G
- H
- 0
- 25
- 50
- 75
- 100
- 125
- 150
- 175
- 200
- 225
- >250
Beschreibung des Objekts
Ausstattung
* Energieeffizientes (Energieeffizienzklasse A+), luxuriöses freistehendes Architekten-EFH in massiver Bauweise von 2010, KfW 40 Standard, gehobene Ausstattung
* Garage + Stellplatz
* Grundstück 430 qm, 69 qm Nutzflächen im Haus, Garage und im Garten
* Großzügige lichtdurchflutete Räume (im Erdgeschoss 2,90 m Höhe, Atrium/Galerie über 5 m Höhe), Wohn-/Essbereich, Küche, 4 weitere Zimmer sowie weitere Räume (Garderobenraum, HWR, Abstellraum)
* 2 Bäder + Gäste-WC, Sauna, Whirlpool, Design-Heizkörper mit Handtuchhalter
* Außergewöhnlich niedriger Energiebedarf durch Wärmepumpe, Solarthermie
* Fußbodenheizung mit Steuerungselementen in jedem Raum
* Fenster dreifach verglast mit programmierbaren Fenster-Rollläden und teilweise mit integrierten Insekten-Rollos versehen
* Moderner Kamin
* Hochwertiges Eichenparkett und Designfliesen
* Treppe mit Eichenbelag und Edelstahlgeländer
* Durchdachtes Lichtkonzept, inkl. Spots, mit dimmbarer Beleuchtung, Design-Lichtschalter-Programm
* Einbauschränke (Galerie, Bad, DG-Raum) und eingebaute Spiegelschränke in den Bädern (im großen Bad 1,80m breit)
* Programmierbare Gartenbewässerung
* Grundstückstor, Einfahrtstor und Garagentor fernsteuerbar
* Wallbox in der Garage
* Uneinsehbarer nach Süden ausgerichteter Garten mit zwei Terrassen (mit Glasüberdachung bzw. mit Sonnenschirm), mit hochwertigem Hartholzbelag (Bambus), Wasserlauf
* Wasserzisterne
* Gartenschuppen aus Holz mit Platz für Gartengerätschaften und Fahrräder
Lage
Attraktive Wohnlage unweit der City und doch naturnah
Die Immobilie befindet sich im Frankfurter Norden im Stadtteil Frankfurter Berg in einer kleinen Anliegerstraße. Das unmittelbare Wohnumfeld ist durch traditionelle Siedlungshäuser, Gartenanlagen und moderne Neubauten geprägt. Fußläufig sind in unmittelbarer Nähe z.B. mehrere Einkaufsmöglichkeiten, Ärzte/Apotheke, Gastronomie, Fitnessstudio/Sportangebote (z.B. Tennis, Bowling, Fußball, Klettern), Schule/Kindergärten/Spielplätze und ÖPNV (Bus, S-Bahn, U-Bahn) zu erreichen, die Innenstadt per Auto in 15 Minuten oder Natur in 5 Minuten (z.B. Rad- und Wanderwege am Fluss Nidda nach Bad Vilbel und im Frankfurter Grüngürtel). Der Stadtteil Frankfurter Berg ist sehr gut an die Autobahn angebunden. Die Nachbarschaft ist angenehm.
Sonstige Angaben
* Die angegebene Wohnfläche setzt sich zusammen aus 145 qm Wohnfläche im EG und OG nach Wohnflächenverordnung und aus 30 qm (Studio und ein weiterer Raum). Zusätzlich gibt es im DG einen weiteren Abstellraum und im EG einen Hauswirtschaftsraum. Darüber hinaus gibt es zusätzliche Abstellflächen. Das Dachgeschoss ist vollständig gedämmt.
* Erdgeschoss / Höhe 2,90 m / Essbereich über 5 m:
Wohn-/Essbereich (ca. 49 qm), Küche (ca. 14 qm), Entree (ca. 8 qm), Gäste-WC (ca. 2 qm), Hauswirtschaftsraum (ca. 8 qm).
* Obergeschoss / Zimmerhöhe 2,60 m:
Zimmer 1 (13 qm), Zimmer 2/ Schlafraum (16 qm), großes Bad (ca. 25 qm), Duschbad (ca. 6 qm), Galerie (ca. 12 qm).
* Dachgeschoss / Höhe 1,93 cm:
Studio (ca. 13 qm), Zimmer 3 mit Dachschrägen (ca. 16 qm Bodenfläche), Zimmer 4/ Abstellraum mit Dachschrägen (ca. 12 qm Bodenfläche).
* Die Küche und die Waschtischmöbel in den Bädern sind nicht Bestandteil des Angebots.
* Provisionsfrei für Käufer
* Übergabe nach Vereinbarung
Grundriss
Grundriss EG
>
>
Grundriss OG
>
>
Grundriss DG
>
>
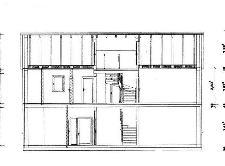
Schnitt AA
>
>
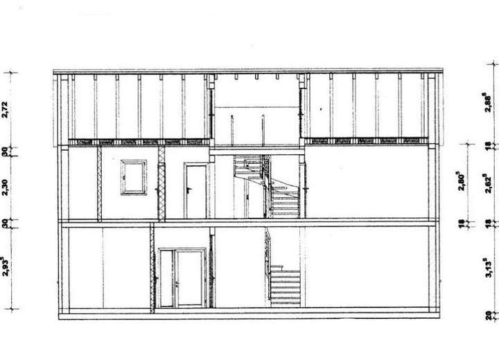
Schnitt BB
>
>
Adresse
60433 Frankfurt am Main
Interessante Orte
Preis- und Lageinformationen
Preistrend für Bestandsimmobilien in Bonames