Wohnen in idyllischer Umgebung in und naturnaher Lage von Friedrichsdorf / Seulberg erwartet Sie auf einem ca. 290 m² großen Grundstück ein charmantes Wohnhaus mit Einliegerwohnung und einem Nebengebäude mit Ausbaupotential.
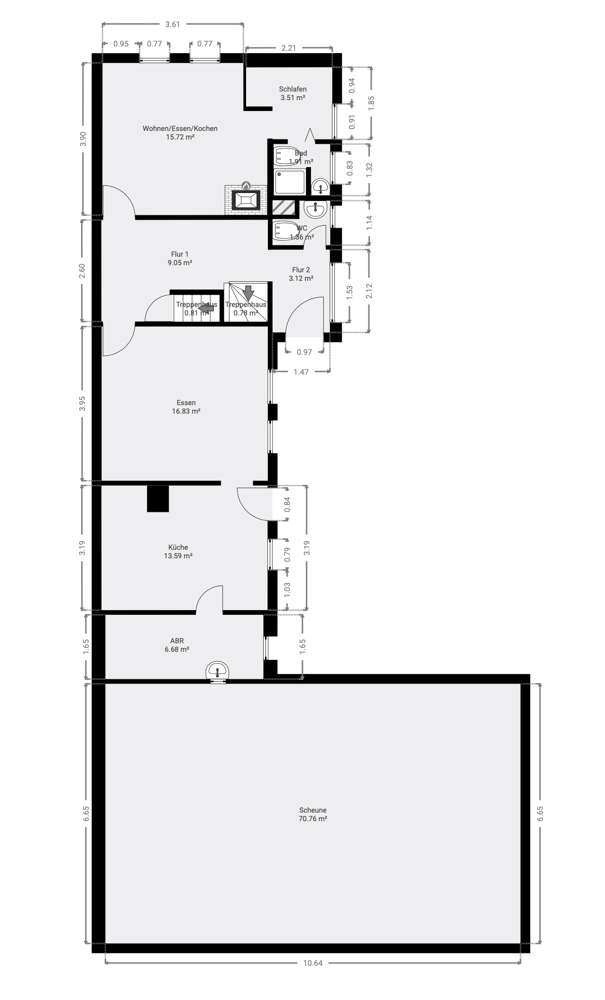
Das charmante Wohnhaus bietet mit einer Wohnfläche von ca. 160m² und ca. 268m² Nutzfläche großzügige Räumlichkeiten auf allen Etagen.
Hier sind alle Möglichkeiten geboten. Ob als Mehrgenerationenhaus, Wohnen und Arbeiten unter einem Dach oder Selbstnutzung in Verbindung mit Vermietung, vielfältige Optionen haben Sie hier auf jeden Fall.
Das Wohnhaus und die Einliegerwohnung wurde im Jahr 2019 umfangreich mit neuer Elektrik, neue Leitungen modernisiert und renoviert. Die neue Gas-Heizung wurde 2021 erneuert.
Die Küche ist mit einer großzügigen Einbauküche inklusive Elektrogeräte ausgestattet und verfügt über einen separaten Zugang zum Hof.
Das Haus steht leer und kann ab sofort frei übernommen werden.
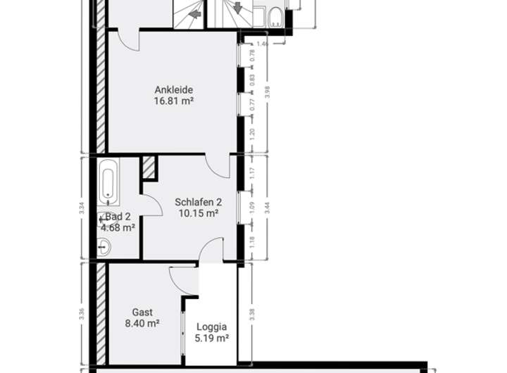
Im Dachgeschoss befinden sich noch zwei weitere Räume sowie ein Abstellraum.
Das Wohnhaus umfasst außerdem eine Einliegerwohnung mit ca. 22 m². Sie verfügt über einen Wohnbereich, mit kleiner Küche und offenem Kamin, ein Schlafzimmer sowie ein Tageslichtbad mit Dusche.
Im Kellergeschoss befindet sich ausreichend Platz, um nicht alltäglichen Dingen abzustellen.
Der neu gepflasterte Hof und der Außenpool mit einer Größe von 3x6 m bietet an heißen Tagen eine tolle Abkühlung und lädt zum Wohlfühlen ein.
Das gesamte Haus ist in einem äußerst gepflegten Zustand und durch ein Nebengebäude, welches ein Ausbaupotenzial von weiteren ca. 200 m² Wohnfläche hat, abgerundet.
Sollten die Lage und das Haus für Sie infrage kommen, können Sie gerne einen Besichtigungstermin direkt mit den Eigentümern unter der Telefonnummer 06172-7328497 vereinbaren.
Provisionsfrei: Charmantes Haus + Nebengebäude in Friedrichsdorf Seulberg
61381 Friedrichsdorf
Die vollständige Adresse der Immobilie erhalten Sie vom Anbieter.
Auf Karte anzeigen
Die vollständige Adresse der Immobilie erhalten Sie vom Anbieter.
Finanzierungszertifikat
In nur zwei Minuten zu Ihrem persönlichen Finanzierungszertifkat.
Infos
| Haustyp | Einfamilienhaus |
|---|---|
| Wohnfläche ca. | 160 m2 |
| Nutzfläche | 268 m2 |
| Grundstücksfläche | 290 m2 |
| Bezugsfrei ab | sofort |
| Zimmer | 7 |
| Badezimmer | 3 |
| Garage/Stellplatz | Außenstellplatz |
| Anzahl Garage/Stellplatz | 1 |
Kosten
| Kaufpreis |
498.000 € |
|---|---|
| Provision | Nein |
Finanzierungsrechner:
Kaufpreis:
600.000 €
Eigenkapital:
600.000 €
Monatliche Rate
0 €
Effektiver Jahreszins
0 %
Sollzinsbindung
10 Jahre
Bausubstanz & Energieausweis
| Baujahr | 1900 |
|---|---|
| Letzte Sanierung | 2025 |
| Bauphase | Haus fertig gestellt |
| Objektzustand | Modernisiert |
| Wesentliche Energieträger | Gas |
Beschreibung des Objekts
Ausstattung
- Baujahr ca. 1900
- Letzte Modernisierung 2019
- Wohnfläche ca. 160 m²
- Einbauküche inkl. Elektrogeräten
- Drei Tageslichtbäder
- Gäste-WC
- Hochwertiges Hochglanzlaminat
- Klapprollläden, 50% davon mit Kurbel
- Einliegerwohnung mit ca. 22 m² Wohnfläche, 2 Zimmer, offenem Kamin und Tageslichtbad
- Balkon
- Nebengebäude mit Ausbaupotenzial
- Satellit mit 8 separaten Anschlüssen
- Internetanschluss in jedem Raum
- Elektrik 2019 erneuert
- Gas-Heizung 2021 erneuert
- Teilunterkellert
- Kanalanschluss
- Außenpool 4 x 6 m, 1,20 m tief
- Hof neu gepflastert
- Außenstellplatz
- Neuer Dachstuhl und Dachdeckung
- Gebäude zur Straßenseite neu verputzt und weiß angelegt
- Beliebte Lage in Seulberg
- Provisionsfrei
Lage
Friedrichsdorf ist die drittgrößte Stadt im hessischen Hochtaunuskreis, mit ca. 25.450 Einwohnern. Seulberg ist ein Stadtteil von Friedrichsdorf und liegt ca. 20 Kilometer nördlich von Frankfurt am Main
Verkehrstechnisch ist Seulberg sehr gut angebunden, so sind die Autobahnen A5 und A661 in ca. 10 Minuten erreichbar. Der Bahnhof Seulberg wird von der S-Bahn-Linie S5 und der Taunusbahn bedient.
Seulberg verfügt über einen Kindergarten, sowie eine Grundschule. Weiterführende Schulen sind in den umliegenden Städten erreichbar.
Der Stadtteil bietet verschiedene Sport-/ und Freizeitaktivitäten.
Die Lage in der Natur sowie die Nähe zu größeren Städten macht das Leben in Seulberg besonders attraktiv.
Sonstige Angaben
Sollten die Lage und das Haus für Sie infrage kommen, können Sie gerne einen Besichtigungstermin direkt mit den Eigentümern unter der Telefonnummer 06172-7328497 vereinbaren.
Bitte benutzen Sie für eine erste Anfrage beiliegendes Kontaktformular unter Angabe Ihrer persönlichen Daten, damit wir zügig reagieren können.
Alle Angaben sind ohne Gewähr und basieren ausschließlich auf Informationen, die uns vom Eigentümer übermittelt wurden. BTI Immobilien GmbH übernimmt keine Gewähr für die Vollständigkeit, Richtigkeit und Aktualität dieser Angaben. Zwischenverkauf/Vermietung bleibt vorbehalten. Es gelten unsere AGB´s der BTI Immobilien GmbH.
Grundriss
Erdgeschoss
>
>
1.Obergeschoss
>
>
Dachgeschoss
>
>
Adresse
61381 Friedrichsdorf
Interessante Orte
Preis- und Lageinformationen
Preistrend für Bestandsimmobilien in Friedrichsdorf