## EIN ATEMBERAUBENDER ORT. EINE ATEMBERAUBENDE AUSSICHT ##
Diese außergewöhnliche Villa liegt in einer der wohl spektakulärsten und daher begehrtesten Lagen Maintals: direkt am Feldrand, mit freiem, weitläufigem Blick über Wiesen und Felder bis zum Horizont – und direkt am Mainufer. Eine solche Kombination aus Natur, Ruhe und Panorama ist selbst in der Region selten zu finden.
Ob Sonnenaufgang über den Feldern oder ein Glas Wein auf der Dachterrasse bei untergehender Sonne – diese Immobilie bietet täglich neue Postkartenmotive direkt vor der Haustür.
## GROSSZÜGIGKEIT UND GESTALTUNGSFREIHEIT ##
Die Villa befindet sich im hochwertigen Rohbauzustand – und genau das macht sie so besonders: Sie bietet die einmalige Gelegenheit, den Innenausbau ganz nach Ihren eigenen Vorstellungen zu gestalten. Von der Raumaufteilung über die Materialien bis hin zu den Ausstattungsdetails – hier entscheiden allein Sie, wie Ihr neues Zuhause aussehen soll.
Und das Beste: Der Eigentümer übernimmt den Innenausbau nach Ihren Wünschen. Sie sagen, wie Sie wohnen möchten – und wir setzen es für Sie um. Auf Wunsch auch schlüsselfertig.
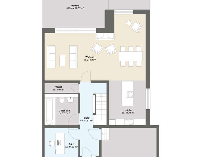
• Erdgeschoss mit offenem Wohn-/Essbereich, Küche, Homeoffice, Vorratsraum und direktem Zugang zur Terrasse
• Obergeschoss mit exklusivem Elternbereich: Schlafzimmer, Ankleide, Kosmetikraum, Bad – plus zwei helle Kinderzimmer
• Staffelgeschoss mit privater Wohnebene, Bad und großzügiger Dachterrasse mit Panoramablick über Felder und Natur
• Kellergeschoss mit Sauna, Waschküche, großem Hobbyraum – ideal für Fitness, Gäste oder Wellness
• Pool im Gartenbestand – perfekt als Spa-Zone oder Outdoor-Lounge erweiterbar
## EXKLUSIVE AUSSTATTUNG ##
Die Architektur bietet die ideale Grundlage für eine exklusive Innenausstattung mit höchsten Ansprüchen:
Ob Designerküche, Smart-Home-Technik, Fußbodenheizung, Natursteinbäder oder raumhohe Fenster – alles kann in Absprache mit Ihnen eingebaut werden. Gestalten Sie Ihre Villa nach Ihrem Stil – ohne Kompromisse.
EXKLUSIVE NEUBAU-LUXUSVILLA AM FELDRAND - Einzigartige Lage zwischen Feldern und Main
63477 Maintal
Die vollständige Adresse der Immobilie erhalten Sie vom Anbieter.
Auf Karte anzeigen
Die vollständige Adresse der Immobilie erhalten Sie vom Anbieter.
Finanzierungszertifikat
In nur zwei Minuten zu Ihrem persönlichen Finanzierungszertifkat.
Infos
| Haustyp | Villa |
|---|---|
| Etagenzahl | 3 |
| Wohnfläche ca. | 303 m2 |
| Nutzfläche | 86,5 m2 |
| Grundstücksfläche | 702 m2 |
| Bezugsfrei ab | ab sofort |
| Zimmer | 10 |
| Schlafzimmer | 6 |
| Badezimmer | 4 |
| Anzahl Garage/Stellplatz | 4 |
Kosten
| Kaufpreis |
1.750.000 € |
|---|---|
| Provision |
3,57% Der Anbieter erhält von Ihnen bei Abschluss eines durch ihn vermittelten notariell beurkundeten Kaufvertrages zu dieser Immobilie die oben angegebene Provision. |
Finanzierungsrechner:
Kaufpreis:
600.000 €
Eigenkapital:
600.000 €
Monatliche Rate
0 €
Effektiver Jahreszins
0 %
Sollzinsbindung
10 Jahre
Bausubstanz & Energieausweis
| Baujahr | 2025 |
|---|---|
| Bauphase | Haus im Bau |
| Objektzustand | Erstbezug |
| Qualität der Austattung | Luxus |
| Heizungsart | Wärmepumpe |
| Wesentliche Energieträger | Umweltwärme |
| Energieausweis | liegt vor |
| Energieausweistyp | Bedarfsausweis |
| Energieverbrauchskennwert | 29,0 kWh/(m²*a) |
| Energieeffizienzklasse | A+ |
29,0
kWh/(m²*a)
Energieeffizienzklasse A+
- A+
- A
- B
- C
- D
- E
- F
- G
- H
- 0
- 25
- 50
- 75
- 100
- 125
- 150
- 175
- 200
- 225
- >250
Beschreibung des Objekts
Ausstattung
## Hochwertiger Innenausbau nach Ihren Wünschen
## Wärmepumpe und Photovoltaik
## 3-fach-verglaste Fenster
## Elektrische Rollläden / Fensterheber
## Parkettboden in Wohn- und Schlafbereichen
## Fußbodenheizung
## Großzügige Dachterrassen mit fatanstischem Panoramablick
## Sauna & Wellnessbereich im Untergeschoss
## Poolbestand im Garten
## Smart-Home-Vorbereitung
## Sehr breite Doppelgarage mit direktem Hauszugang
## Zwei zusätzliche Außenstellplätze
Lage
Lage – Wohnen, wo andere spazieren gehen
Diese exklusive Villa befindet sich in absoluter 1A-Premiumlage von Maintal-Dörnigheim – direkt am Feldrand, mit freiem Blick ins Grüne und nur wenige Schritte vom Main entfernt. Eingebettet zwischen Schloss Philippsruhe, dem malerischen Stadtteil Hanau-Kesselstadt und den weitläufigen Mainauen, vereint dieser Standort Natur, Prestige und perfekte Anbindung.
Die ruhige Sackgassenlage bietet maximale Privatsphäre – und gleichzeitig die Nähe zu allem, was das Leben angenehm macht:
Einkaufsmöglichkeiten wie Globus, Cafés, Kindergärten und Schulen sind ebenso schnell erreichbar wie die Hanauer Innenstadt oder die S-Bahn in Richtung Frankfurt.
Ein Wohnort für Menschen mit Anspruch – naturnah, stilvoll und außergewöhnlich gelegen.
Sonstige Angaben
++++ PLANEN SIE IHRE IMMOBILIE ZU VERKAUFEN? ++++
IHR ZUHAUSE VERDIENT NUR DAS BESTE!
Und genau das bieten wir.
Als marktführendes Unternehmen in Rhein-Main mit starkem Fokus auf den asiatischen und internationalen Markt verfügen wir über einen exklusiven Zugang zu über 86.000 qualifizierten Käufern und Investoren – viele davon auf der Suche nach Immobilien genau wie Ihrer.
Unser Service für Eigentümer bietet Ihnen ein Rundum-Sorglos-Paket:
++ Fundierte Wertermittlung Ihrer Immobilie – bei uns durch erfahrene Sachverständige
++ Professionelle Aufbereitung aller Unterlagen – inklusive hochwertiger Fotos vom Profifotografen
++ Exklusive Hochglanz-Exposés – gestaltet von einem Kommunikationsdesigner
++ Rechtssicherer Verkaufsabschluss – in Zusammenarbeit mit renommierten Notaren unseres Vertrauens
Mit exzellenter Marktkenntnis, internationaler Reichweite und persönlicher Betreuung begleiten wir Sie von der ersten Beratung bis zum erfolgreichen Abschluss.
Jetzt Kontakt aufnehmen über das ImmoScout-Kontaktformular und Ihren persönlichen Beratungstermin sichern.
Wir freuen uns auf Ihre Nachricht!
Vereinbaren Sie heute noch einen Termin unter:
069 / 2100 0192
oder schreiben uns an: zentrale@sun-immobilien.com
Grundriss
GRUNDRISS 1OG
>
>
GRUNDRISS EG
>
>
GRUNDRISS KG
>
>
GRUNDRISS 2OG
>
>
Adresse
63477 Maintal
Interessante Orte
Preis- und Lageinformationen
Preistrend für Bestandsimmobilien in Maintal