Die Neubau Doppelhaushälfte ist projektiert und soll 2026 in massiver Bauweise erstellt werden. Sie besticht durch Komfort und einer vorteilhaften Aufteilung der Räume. Die Außenmaße einer Doppelhaushälfte betragen ca. 9 m x 7 m. Das ergibt eine Wohn-/ Nutzfläche von ca. 105 - 110 m². Aufgeteilt in 4 Zimmer, Küche, Diele, Vollbad mit Dusche, Gäste WC und Hauswirtschaftsraum. Evtl. wird ein Spitzboden als weitere Ausbaureserve zur Verfügung stehen. Die Zuwegung zum Haus ist über ein Wegerecht gesichert. Ein Leitungsrecht wird zusätzlich auf dem vorderen (dienenden) Grundstück eingetragen.
Bei dem Grundstück handelt sich um ein gut bebaubares Grundstück. Es liegt in zweiter Reihe. Abgeteilt wird es von einem größeren, ca. 950 m² großen Grundstück. Durch die Süd-Ausrichtung ist es optimal belichtetet. Das Grundstück ist unbebaut, die Käufer teilen sich jedoch die Abrisskosten des vorderen Bestandshauses.
Im Kaufpreis ist der Grundstücksanteil im Wert von 235.000,000 EUR bereits enthalten.
Der Kaufpreis versteht sich zzgl. Eigenleistung (Einbauküche, Malerarbeiten, Bodenbeläge) und z.T. Baunebenkosten.
Merkmale
* Wohngebiet
* Südlage
* Baustufenplan
NEUBAU Doppelhaushälfte in familienfreundlicher Lage
22159 Hamburg
Die vollständige Adresse der Immobilie erhalten Sie vom Anbieter.
Auf Karte anzeigen
Die vollständige Adresse der Immobilie erhalten Sie vom Anbieter.
Finanzierungszertifikat
In nur zwei Minuten zu Ihrem persönlichen Finanzierungszertifkat.
Infos
| Haustyp | Doppelhaushaelfte |
|---|---|
| Wohnfläche ca. | 105 m2 |
| Grundstücksfläche | 275 m2 |
| Bezugsfrei ab | nach Vereinbarung |
| Zimmer | 4 |
Kosten
| Kaufpreis |
499.000 € |
|---|---|
| Provision |
3,57% Käuferprovision nur auf den Grundstückskaufpreis |
Finanzierungsrechner:
Kaufpreis:
600.000 €
Eigenkapital:
600.000 €
Monatliche Rate
0 €
Effektiver Jahreszins
0 %
Sollzinsbindung
10 Jahre
Bausubstanz & Energieausweis
| Baujahr | 2026 |
|---|---|
| Bauphase | Haus in Planung (projektiert) |
| Objektzustand | Erstbezug |
| Heizungsart | Wärmepumpe |
| Wesentliche Energieträger | Umweltwärme |
| Energieausweis | liegt vor |
| Energieausweistyp | Verbrauchsausweis |
| Energieeffizienzklasse | A |
Energieeffizienzklasse A
- A+
- A
- B
- C
- D
- E
- F
- G
- H
- 0
- 25
- 50
- 75
- 100
- 125
- 150
- 175
- 200
- 225
- >250
Beschreibung des Objekts
Ausstattung
*KfW 55 (KfW 40 Ausführung mit Aufpreis möglich)
*Dachgaube
*Verblendmauerwerk
*Fußbodenheizung
*Luftwärmepumpe
*Photovoltaikanlage
*3-fach Verglasung
*Dusche und Badewanne
...und vieles mehr
Lage
Das Grundstück befindet sich in einem Wohngebiet mit 30er Zone.
Eine Busstation finden Sie um die Ecke. Sowohl der U-Bahnhof Farmsen, das
Einkaufszentrum Farmsen als auch der U-Bahnhof Berne sind in wenigen
Minuten erreichbar. Der Stadtteil liegt verkehrsgünstig und ist gut an den
öffentlichen Nahverkehr angebunden.
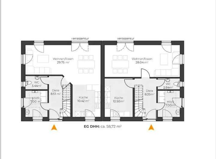
Grundriss
Beispiel Grundriss EG V120_
>
>
Beispiel Grundriss DG V120_
>
>
Adresse
22159 Hamburg
Interessante Orte
Preis- und Lageinformationen
Preistrend für Bestandsimmobilien in Farmsen-Berne