Einziehen, ankommen, wohlfühlen – dieses Einfamilienhaus aus dem Jahr 2018 verbindet moderne Architektur, hochwertige Ausstattung und ein außergewöhnliches Outdoor-Konzept, welches es zu einem echten Zuhause für Familien und Paare mit Anspruch macht. Auf einem ca. 690 m² großen Grundstück erwarten Sie rund 150 m² Wohnfläche auf zwei Etagen, ergänzt durch großzügige Nutzflächen sowie eine Garage mit Werkstatt und einer Photovoltaikanlage (9kWp,Süd). Helle Räume, Echtholzparkett, Fußbodenheizung, ein stilvoller Kamin sowie eine hochwertige Küche im Landhausstil schaffen eine warme, zeitlose Atmosphäre.
Das Highlight bildet die direkt an den Wohnbereich angrenzende Terrasse mit Poollandschaft. Der beheizte, vollautomatisierte Pool, der sich als vergrößerte Terrasse tarnt, sowie der gepflegte und liebevoll angelegte Garten bieten perfekte Voraussetzungen, um sonnige Tage im Freien zu genießen.
Modernes EFH mit Pool und PV Anlage - Gifhorn OT Winkel
38518 Gifhorn
Die vollständige Adresse der Immobilie erhalten Sie vom Anbieter.
Auf Karte anzeigen
Die vollständige Adresse der Immobilie erhalten Sie vom Anbieter.
Finanzierungszertifikat
In nur zwei Minuten zu Ihrem persönlichen Finanzierungszertifkat.
Infos
| Haustyp | Sonstige |
|---|---|
| Etagenzahl | 2 |
| Wohnfläche ca. | 150 m2 |
| Grundstücksfläche | 690 m2 |
| Zimmer | 5 |
| Schlafzimmer | 0 |
| Badezimmer | 2 |
| Garage/Stellplatz | Garage |
| Anzahl Garage/Stellplatz | 1 |
Kosten
| Kaufpreis |
740.000 € |
|---|---|
| Provision | Nein |
Finanzierungsrechner:
Kaufpreis:
600.000 €
Eigenkapital:
600.000 €
Monatliche Rate
0 €
Effektiver Jahreszins
0 %
Sollzinsbindung
10 Jahre
Bausubstanz & Energieausweis
| Baujahr | 2018 |
|---|---|
| Objektzustand | Neuwertig |
| Qualität der Austattung | Gehoben |
| Heizungsart | Zentralheizung |
| Wesentliche Energieträger | Gas |
| Energieausweis | liegt vor |
| Energieausweistyp | Bedarfsausweis |
| Energieverbrauchskennwert | 49,9 kWh/(m²*a) |
Beschreibung des Objekts
Lage
Besonders attraktiv ist die Lage im Ortsteil Winkel. Das Grundstück befindet sich in einem verkehrsberuhigten Bereich und ist über einen gepflasterten Privatweg erreichbar. Trotz des umliegenden Waldes ist dieses Grundstück stets von der Sonne geküsst, sodass langen und erholsamen Pooltagen nichts im Wege steht.
Eine Bushaltestelle befindet sich in unmittelbarer Nähe und ist auch für Schulkinder gut und sicher allein erreichbar. Ein kleines Urlaubsparadies inmitten der Natur – ideal für Familien mit Kindern und Paare, die ihr Leben genießen möchten.
Einkaufsmöglichkeiten für den täglichen Bedarf sowie Ärzte und Schulen sind gut erreichbar. Die Anbindung an den öffentlichen Nahverkehr ist gegeben, und die umliegenden Grünflächen laden zur Erholung ein.
Sonstige Angaben
Alle Angaben sind nach bestem Wissen gemacht. Irrtum und Zwischenverkauf bleiben vorbehalten. Dem Käufer entsteht keine Maklerprovision. Dieses Exposé stellt eine Vorabinformation dar, als Rechtsgrundlage gilt ausschließlich der notariell abgeschlossene Kaufvertrag.
Es handelt sich um einen Privatverkauf. Bitte haben Sie Verständnis dafür, dass wir für eine Besichtigung eine unverbindliche Finanzierungsbestätigung oder einen entsprechenden Bonitätsnachweis anfordern.
WIR BITTEN HÖFLICH DARUM, VON MAKLERANFRAGEN ABZUSEHEN!
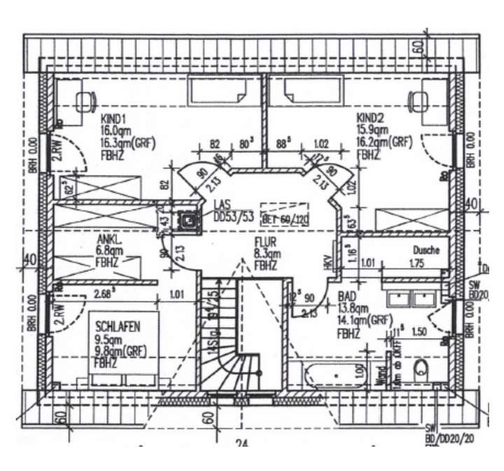
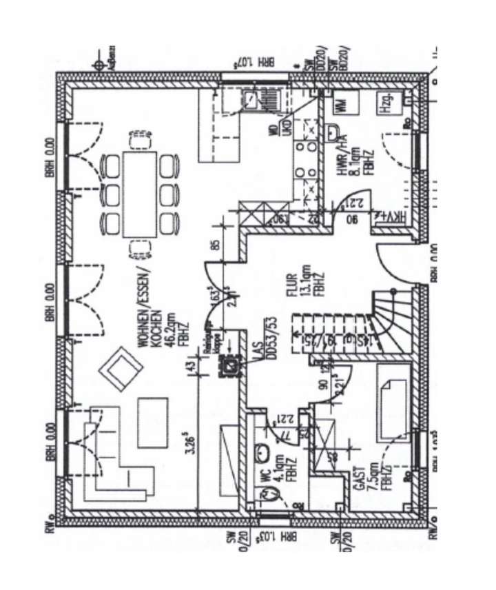
Grundriss
EG
>
>
OG
>
>
Adresse
38518 Gifhorn
Interessante Orte
Preis- und Lageinformationen
Preistrend für Bestandsimmobilien in Gifhorn