FEELS LIKE HOME. LOOKS LIKE YOU.
Ein Zuhause, das deine Handschrift trägt – individuell, durchdacht und bezahlbar.
Dein Traum vom Eigenheim ist näher, als du denkst.
Warum warten?
START YOUR HOME JOURNEY TODAY.
Maximaler Komfort, minimaler Aufwand.
27721 Ritterhude
Die vollständige Adresse der Immobilie erhalten Sie vom Anbieter.
Auf Karte anzeigen
Die vollständige Adresse der Immobilie erhalten Sie vom Anbieter.
Finanzierungszertifikat
In nur zwei Minuten zu Ihrem persönlichen Finanzierungszertifkat.
Infos
| Haustyp | Einfamilienhaus |
|---|---|
| Wohnfläche ca. | 171 m2 |
| Nutzfläche | 0 m2 |
| Grundstücksfläche | 596 m2 |
| Zimmer | 6 |
| Schlafzimmer | 5 |
| Badezimmer | 1 |
| Anzahl Garage/Stellplatz | 0 |
Kosten
| Kaufpreis |
452.359 € |
|---|---|
| Provision | Nein |
Finanzierungsrechner:
Kaufpreis:
600.000 €
Eigenkapital:
600.000 €
Monatliche Rate
0 €
Effektiver Jahreszins
0 %
Sollzinsbindung
10 Jahre
Bausubstanz & Energieausweis
| Baujahr | 2026 |
|---|---|
| Bauphase | Haus in Planung (projektiert) |
| Qualität der Austattung | Gehoben |
| Heizungsart | Wärmepumpe |
Beschreibung des Objekts
Ausstattung
Fast vollendet Plus – Das kann fast jeder selbst
- Gib Deinem neuen Zuhause selbst den letzten Schliff
- Fertige Gebäudehülle – du entscheidest über den Innenausbau
- Haustechnik mit Elektroinstallation und Heizung sowie Sanitärinstallation inklusiv
- Fliesenarbeiten komplett
- Nur noch Malerarbeiten, Bodenbeläge (Teppich/Vinyl o. Ä.) und Innentüren und fertig.
- Ideal für Eigenleistung – handwerkliches Geschick spart bares Geld
- Optimierte Grundrisse – smarte Wohnkonzepte für flexible Gestaltung
- Hochwertige Bauweise – modern, nachhaltig & energieeffizient
- Zugang zu staatlichen Förderprogrammen – clever finanzieren & sparen
Für alle, die ihr Zuhause selbst gestalten wollen!
Lage
Ideal für die junge Familie, mitten in Ritterhude
Sonstige Angaben
Das Haus ist projektiert inkl. Grundstück. Das Grundstück wird in Kommission angeboten bzw. direkt von Dritten verkauft. Daher kann der genannte Preis aufgrund aktueller Marktsituationen schwanken.
Die Bauabwicklung kann kurzfristig nach Grundstückserwerb begonnen werden. Bilder zeigen möglicherweise Sonderausstattungen, die auf Wunsch gegen Aufspreis zusätzlich angeboten werden können.
Erhalte in deinem persönlichen Beratungsgespräch kostenlos alle wichtigen Informationen zu diesem Projekt, insbesondere: Lage und Bebauungsmöglichkeiten des Baugrundstücks, Baukosten-Kalkulation, Finanzierungs- u. Förderungsmöglichkeiten sowie detaillierte Architektur- uund Grundrissplanung.
Wir freuen uns darauf, dich beraten zu dürfen!
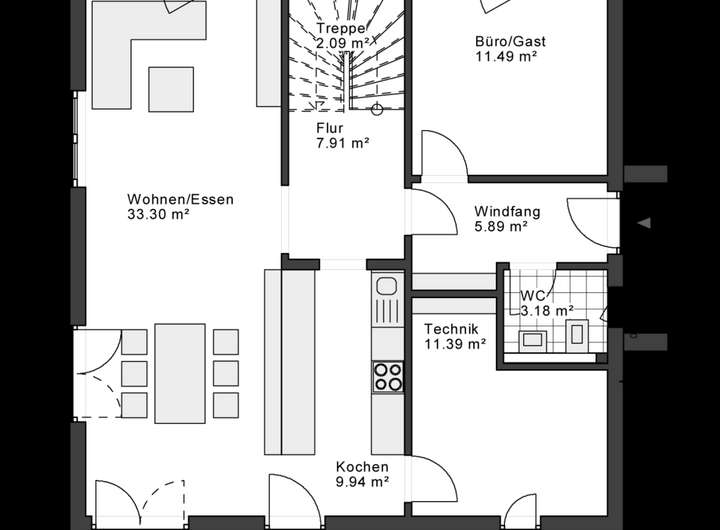
Grundriss
Grundriss DG
>
>
Adresse
27721 Ritterhude
Interessante Orte
Preis- und Lageinformationen
Preistrend für Bestandsimmobilien in Ritterhude