Die freistehende, zweigeschossige Villa mit ausgebautem Dachgeschoss wurde 1945 nach historischem Vorbild der Villa des Grafen von Waldersee wiederaufgebaut und im Laufe der Jahre mehrfach modernisiert. Das repräsentative Gebäude mit markantem Mansarddach und lichtdurchflutetem Firstaufbau verbindet klassische Architektur mit funktionalen Raumkonzepten.
Auf einer Grundstücksfläche von 991 m² bietet das Objekt großzügige Nutzflächen von rund 1.017 m², verteilt auf drei Etagen. Zusätzlich bietet das Untergeschoss ca. 305 m² Nutzfläche. Die Räumlichkeiten eignen sich ideal für Praxis- und Therapieeinrichtungen, können jedoch ebenso als Büro- oder Verwaltungsflächen genutzt werden – auch eine etagenweise Nutzung und Vermietung ist möglich. Nach dem Bebauungsplan ist ebenfalls eine Nutzung als Wohnfläche möglich.
Die Villa liegt in einem urban geprägten Umfeld mit Wohn- und Bürohäusern, verfügt über eine gute infrastrukturelle Anbindung sowie über 12 eigene Parkplätze auf dem Grundstück. Ein Fahrstuhl sorgt für komfortable Erreichbarkeit der Ebenen von UG bis 2. OG.
Die Grundriss-Struktur im Erd- und im 1. Obergeschoss ist gut für die Nutzung als Büro- oder Praxisflächen geeignet. Durch die Leichtbauwände ist eine flexible Anpassung der Raumaufteilung möglich. Die hohen Altbau-Decken verleihen den Räumen einen repräsentativen Charakter.
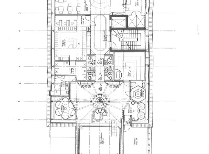
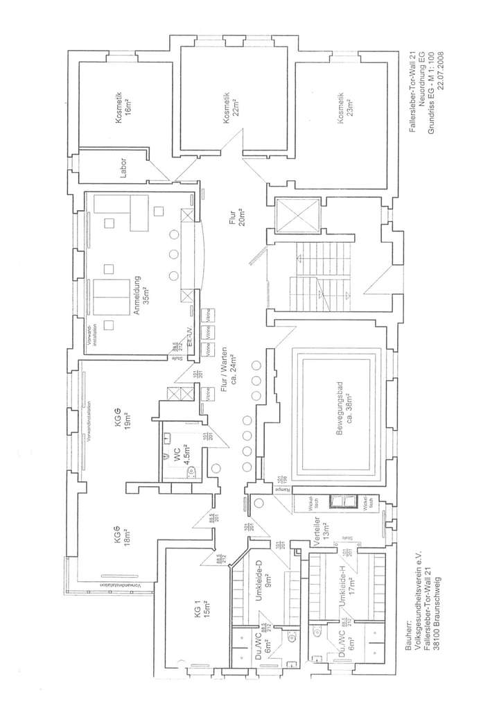
Im Erdgeschoss befindet sich ein derzeit außer Betrieb genommenes Schwimmbecken. Ein weiteres, ebenfalls nicht mehr genutztes Schwimmbecken mit Saunabereich und Dachterrasse ist im 2. Obergeschoss vorhanden.
Das 3. Obergeschoss verfügt über eine helle Galerie sowie einen Balkon mit historischen Zierelementen und einem weiten Blick über Braunschweig.
Stilvolle Altbau-Villa in Braunschweiger Wall-Lage - 12 Parkplätze, Aufzug, Fernwärme
38100 Braunschweig
Die vollständige Adresse der Immobilie erhalten Sie vom Anbieter.
Auf Karte anzeigen
Die vollständige Adresse der Immobilie erhalten Sie vom Anbieter.
Finanzierungszertifikat
In nur zwei Minuten zu Ihrem persönlichen Finanzierungszertifkat.
Infos
| Wohnfläche ca. | 1.017 m2 |
|---|---|
| Grundstücksfläche | 991 m2 |
| Zimmer | 30 |
Kosten
| Kaufpreis |
1.980.000 € |
|---|---|
| Provision |
3,57 % vom beurkundeten Kaufpreis inkl. 19% MwSt. zu zahlen vom Käufer nach notarieller Beurkundung |
Finanzierungsrechner:
Kaufpreis:
600.000 €
Eigenkapital:
600.000 €
Monatliche Rate
0 €
Effektiver Jahreszins
0 %
Sollzinsbindung
10 Jahre
Bausubstanz & Energieausweis
| Baujahr | 1945 |
|---|---|
| Wesentliche Energieträger | Fernwärme |
| Energieausweis | liegt zur Besichtigung vor |
Beschreibung des Objekts
Lage
Das Gebäude befindet sich in einer der gefragtesten Braunschweiger Wohnlagen, ruhig und sehr stadtnah. Die Innenstadt ist auf kurzem Weg erreichbar, ebenso die TU und der Museumspark. Eine Straßenbahn-Haltestelle befindet sich in fußläufiger Entfernung.
Sonstige Angaben
Internet:
Es liegt Glasfaser im Haus.
WEG-Teilung:
Eine WEG-Teilung ist möglich und bereits vorbereitet. Es liegen Aufteilungspläne, eine Abgeschlossenheitsbescheinigung und ein fertiger Entwurf für eine Teilungserklärung vor.
Übergabe:
Die Übergabe des Hauses kann ohne Mieter im Jahr 2026 erfolgen.
Denkmalschutz:
Es besteht kein Denkmalschutz.
Erschließungsbeitrag:
Es ist kein Erschließungsbeitrag offen.
Energieausweis:
Der Energieausweis wird nachgereicht.
Kundeninformation:
Die Angaben in diesem Exposé basieren auf den Angaben von Dritten. Gleichwohl ich alle Angaben so sorgfältig wie möglich mache, muss ich mir Irrtümer, Auslassungen sowie Zwischenverkauf vorbehalten. Daher kann ich für die Richtigkeit der von Dritten gemachten Angaben keine Haftung übernehmen.
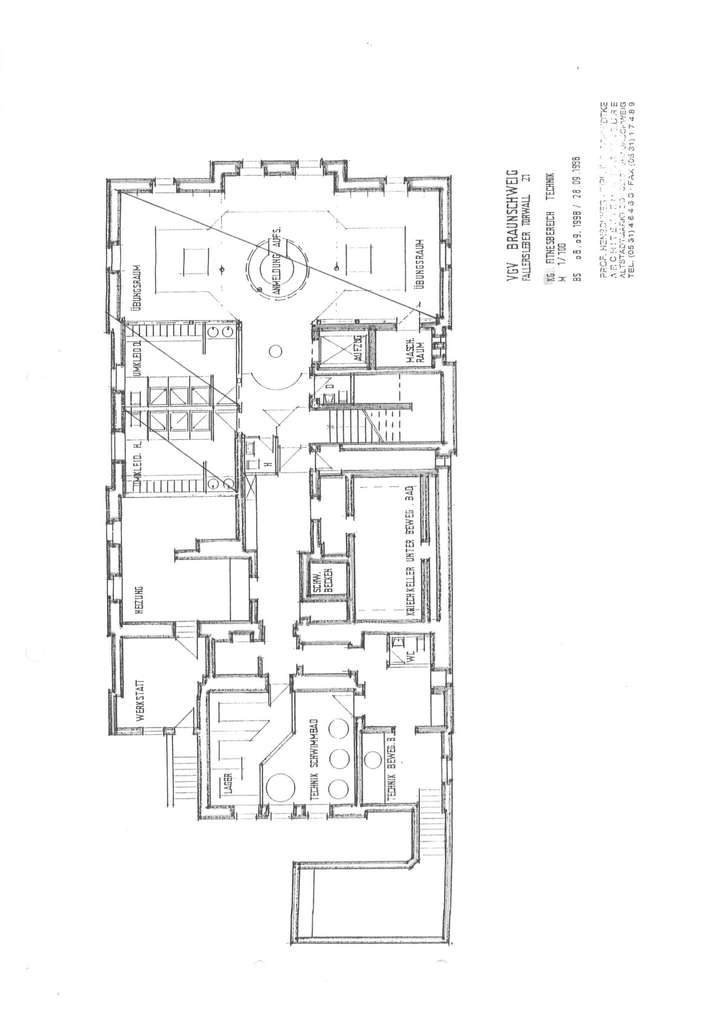
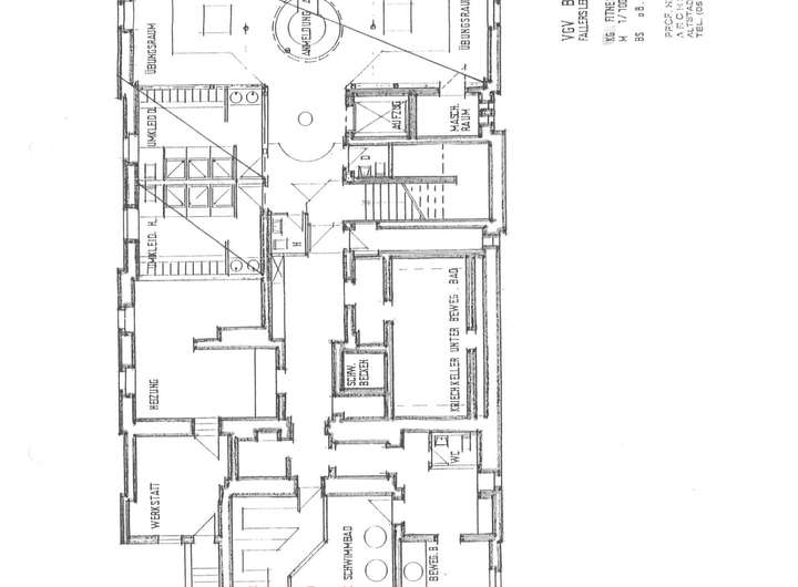
Grundriss
Grundriss EG
>
>
Grundriss 1OG
>
>
Grundriss 2.OG
>
>
Grundriss DG
>
>
Grundriss KG
>
>
Adresse
38100 Braunschweig
Interessante Orte
Preis- und Lageinformationen
Preistrend für Bestandsimmobilien in Innenstadt