Dieses hier zum Verkauf stehende großzügige und von seinen bisherigen Eigentümern liebevoll gepflegte Einfamilienhaus wurde im Jahr 1966 in solider Bauweise errichtet und im Jahr 2000 um einen großen Abstellraum (Werkstatt) im hinteren Teil des Gartens erweitert.
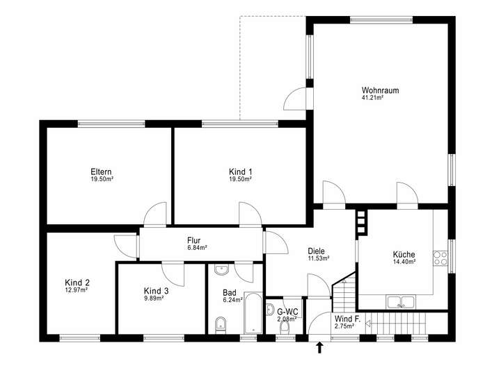
Doch dazu später mehr – zunächst betritt man das Erdgeschoss des Hauses über den sehr schön eingewachsenen Bereich hinter der Garage. Hier finden sich u.a. ein großes, helles Wohnzimmer mit ca. 41 qm, das in der heutigen Zeit eher selten zu finden ist. Dazu führt der Weg über die Diele in 2 geräumige Schlafzimmer und 2 weitere Räume, die sowohl als Kinderzimmer oder auch als Arbeitszimmer dienen können. Die separate Küche mit Essplatz erweist sich im Alltag als nützlich.
Erwähnenswert erscheint zudem der hochwertig errichtete Wintergarten mit einer Schiebeanlage, der Schutz bietet, sollte das Wetter einmal nicht mitspielen. Der Wintergarten ist sowohl aus dem Wohnzimmer als auch aus einem der Zimmer begehbar.
Das Badezimmer mit Tageslicht, Wanne und Dusche im 80er Jahre-Dekor liefert gute räumliche Voraussetzungen nach einer Renovierung, ein Gäste-WC ist ebenso vorhanden.
Die Holzfenster des Hauses aus Meranti- bzw. Mahagoni sind noch zweifach verglast und stammen aus verschiedenen Baujahren. Viele davon sind mit Rollläden oder Einbruchschutz versehen und eine Alarmanlage ist vorhanden.
Über eine Holztreppe geht es in das Dachgeschoss mit 3 Zimmern, Küche und Bad.
Dazu führt im Eingangsbereich des Hauses eine Treppe in den Keller – hier befindet sich ein Waschkeller, ein Werkraum und Abstellmöglichkeiten. Eine Sanierung würde sich hier in Zukunft auszahlen, wie viele Keller aus dem Baujahr zeigen sich Feuchtigkeitsspuren.
Der Anbau des Hauses wurde im Jahr 2000 in Flachdachbauweise realisiert. Hier wurden über ca. 45 qm neu errichtet, die Handwerker und Hobbybastler gleichermaßen begeistern werden. Ob als Werkstatt. Lager oder Fitness-Raum für die ganze Familie – Platz ist hier ausreichend.
Die Garage;
Vor dem Haus liegt die Garage, in der sich unter Umständen 2 Fahrzeuge hintereinander unterbringen lassen. Dazu ist die Abstellfläche vor der Garage selbstverständlich ebenso für Fahrzeuge nutzbar.
Ergänzt wird das vielseitige Angebot dieses Hauses um ein Gartenhaus, das zum Abstellen der Gerätschaften dient.
Großzügiges Einfamilienhaus mit Doppelgarage und schönem Garten
28816 Stuhr
Die vollständige Adresse der Immobilie erhalten Sie vom Anbieter.
Auf Karte anzeigen
Die vollständige Adresse der Immobilie erhalten Sie vom Anbieter.
Finanzierungszertifikat
In nur zwei Minuten zu Ihrem persönlichen Finanzierungszertifkat.
Infos
| Haustyp | Einfamilienhaus |
|---|---|
| Etagenzahl | 3 |
| Wohnfläche ca. | 175 m2 |
| Nutzfläche | 113,69 m2 |
| Grundstücksfläche | 1.057 m2 |
| Bezugsfrei ab | Nach Vereinbarung |
| Zimmer | 8 |
| Schlafzimmer | 5 |
| Badezimmer | 2 |
| Garage/Stellplatz | Garage |
| Anzahl Garage/Stellplatz | 4 |
Kosten
| Kaufpreis |
529.000 € |
|---|---|
| Provision |
2,975% Jeweils Käufer- und Verkäufercourtage inkl. MwSt, die bei Kaufvertragsabschluss anfällt. |
Finanzierungsrechner:
Kaufpreis:
600.000 €
Eigenkapital:
600.000 €
Monatliche Rate
0 €
Effektiver Jahreszins
0 %
Sollzinsbindung
10 Jahre
Bausubstanz & Energieausweis
| Baujahr | 1966 |
|---|---|
| Letzte Sanierung | 2006 |
| Objektzustand | Gepflegt |
| Qualität der Austattung | Normal |
| Heizungsart | Gas-Heizung |
| Wesentliche Energieträger | Gas |
| Energieausweis | liegt vor |
| Energieausweistyp | Bedarfsausweis |
| Energieverbrauchskennwert | 231,6 kWh/(m²*a) |
| Energieeffizienzklasse | G |
231,6
kWh/(m²*a)
Energieeffizienzklasse G
- A+
- A
- B
- C
- D
- E
- F
- G
- H
- 0
- 25
- 50
- 75
- 100
- 125
- 150
- 175
- 200
- 225
- >250
Beschreibung des Objekts
Ausstattung
Ca. 1.057 qm Grundstück
Solide Massivbauweise
Baujahr 1966/2000
Energieeffiziente Gastherme (Viessmann) aus 2006
Fliesenböden
Alarmanlage
Tageslichtbäder im EG und 1.OG
2 Küchen im EG und OG
Moderner Wintergarten mit Schiebeanlage
Holztreppe
Rollläden im EG und OG
2-fach-Garage
Pflegeleicht angelegter Garten
Gartenhaus
Ruhige Nachbarschaft
Lage
Moordeich ist ein gewachsener und etablierter Ortsteil von Stuhr, der im Norden direkt an Bremen angrenzt.
Charakteristisch sind im Umfeld des hier angebotenen Hauses die Bebauung mit Einfamilienhäusern und die ruhigen und grünen Wohnlagen, Aber auch die vorhandene Infrastruktur mit Schulen, Kitas und Einkaufsmöglichkeiten, ebenso wie Sporteinrichtungen überzeugt - weshalb u.a. immer mehr Bremer Familien in dieses Umfeld ziehen, wenn sie sich ein eigenes Einfamilienhaus wünschen.
Die Nähe zur Natur ist vorhanden:, u.a.. durch ein Biotop mit einem Grundwassersee und Spazierwegen, ebenso wie ein Mehr-Generationen-Spielplatz mit Fitness- und Spielgeräten, Bouleplatz und Bänken. Dazu liegt
Moordeich nahe dem Silbersee, einem beliebten Baggersee südlich des Ortsteils – ein toller Ort zum Schwimmen, Entspannen oder für andere sportliche Aktivitäten.
Die Fahrtzeit mit dem Auto in die Bremer Innenstadt beträgt ca. 20 Minuten, die Entfernung nach Oldenburg beträgt ca. 30 Minuten (44 km). Das Rolandcenter ist ca. 10 Minuten entfernt.
Die Buslinie 55 der BSAG verbindet den Stadtteil mit dem ZOB Brinkum. Regionale Busse liefern Verbindungen nach Delmenhorst und Wildeshausen, für Schüler gibt es zudem einen Zusatzverkehr.
Alles in allem gilt Moordeich als sehr gut angebunden und bietet somit tolle Voraussetzungen für das Familienleben.
Sonstige Angaben
Wir konnten Ihr Interesse wecken? Dann freuen wir uns auf Ihre Kontaktaufnahme.
Alle Angaben stammen vom Verkäufer und erfolgen ohne Gewähr.
Weitere Dokumente
KellergeschossGrundriss
Erdgeschoss
>
>
Adresse
28816 Stuhr
Interessante Orte
Preis- und Lageinformationen
Preistrend für Bestandsimmobilien in Stuhr