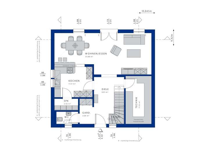
Das Fertighaus EVOLUTION 154 von Bien-Zenker steht für Vielfalt und Individualität in Architektur und Design. Mit einer großzügigen Wohnfläche von 154 m² und einer durchdachten Aufteilung von 7 Zimmern ist es der ideale Rückzugsort für Familien und Liebhaber des großzügigen Wohnens. Der attraktive Eingangsbereich führt Sie direkt in das lichtdurchflutete Wohn- und Esszimmer, das sich über die gesamte Hauslänge erstreckt. Diese offene Gestaltung, kombiniert mit der großen, daran angeschlossenen Küche und einer praktischen Speisekammer, schafft ideale Voraussetzungen für Ihre individuellen Nutzungskonzepte. Die drei Schlafzimmer bieten nicht nur Raum für Erholung, sondern auch für persönliche Rückzugsorte. Das Wellness-Bad im Obergeschoss ist eine Oase der Entspannung und rundet das großzügige Hauskonzept perfekt ab.
Die Ausbaustufe, die Sie wählen, garantiert höchsten Komfort: Wir übernehmen den kompletten Hausbau für Sie, vom Rohbau bis zur letzten Fliese. Dabei werden alle Anforderungen des staatlichen Qualitätssiegels für Nachhaltigkeit erfüllt. Dies bedeutet für Sie nicht nur maximalen Wohnkomfort, sondern auch die Möglichkeit, attraktive Förderungen über die KfW zu sichern.
Bien-Zenker ist weit mehr als nur ein Hausanbieter. Mit über 80.000 gebauten Häusern und mehr als 115 Jahren Erfahrung sind wir ein Pionier im Bereich Fertighäuser. Unsere Leidenschaft und unser Know-how sorgen dafür, dass jede Baufamilie individuell und kompetent beraten wird, bis sie den Schlüssel zu ihrem neuen Zuhause in der Hand hält. Mit wohngesunden Materialien und zukunftsweisenden Standards ist jedes Bien-Zenker Haus für die Zukunft gerüstet, ebenso wie jeder Bauherr.
Grundrisse und Abbildungen können Extras zeigen. Flächenangaben nach DIN 277.
Moderne Stadtvilla
29339 Wathlingen
Die vollständige Adresse der Immobilie erhalten Sie vom Anbieter.
Auf Karte anzeigen
Die vollständige Adresse der Immobilie erhalten Sie vom Anbieter.
Finanzierungszertifikat
In nur zwei Minuten zu Ihrem persönlichen Finanzierungszertifkat.
Infos
| Haustyp | Einfamilienhaus |
|---|---|
| Etagenzahl | 1 |
| Wohnfläche ca. | 154 m2 |
| Grundstücksfläche | 410 m2 |
| Zimmer | 7 |
| Schlafzimmer | 3 |
| Badezimmer | 1 |
Kosten
| Kaufpreis |
580.600 € |
|---|---|
| Provision | Nein |
Finanzierungsrechner:
Kaufpreis:
600.000 €
Eigenkapital:
600.000 €
Monatliche Rate
0 €
Effektiver Jahreszins
0 %
Sollzinsbindung
10 Jahre
Bausubstanz & Energieausweis
| Baujahr | 2027 |
|---|---|
| Bauphase | Haus in Planung (projektiert) |
| Qualität der Austattung | Gehoben |
| Heizungsart | Wärmepumpe |
Beschreibung des Objekts
Ausstattung
Der Grundriss des EVOLUTION 154 ist perfekt auf die Bedürfnisse von Familien abgestimmt. Mit insgesamt 7 Zimmern, darunter 3 Schlafzimmer und ein großzügiges Badezimmer, ermöglicht es Ihnen, Privatsphäre und Gemeinschaft harmonisch miteinander zu verbinden. Die offene Gestaltung des Wohn- und Esszimmers schafft einen einladenden Raum für gemeinsame Abende, während die separaten Schlafzimmer Rückzugsmöglichkeiten für jedes Familienmitglied bieten.
Besonders hervorzuheben ist die großzügige Terrasse, die Ihnen nicht nur zusätzlichen Raum im Freien bietet, sondern auch die Möglichkeit, laue Sommerabende im Freien zu genießen. Lichtdurchflutete Räume sorgen für eine angenehme Atmosphäre und verstärken das Gefühl von Weite und Freiheit. Durch die praktische Speisekammer in der Küche haben Sie zudem ausreichend Stauraum für Lebensmittel und Küchenutensilien, was den Alltag erheblich erleichtert.
Die Ausbaustufe, die Sie bei Bien-Zenker wählen, bringt Ihnen den Vorteil eines schlüsselfertigen Hauses. Sie erhalten ein komplett fertiges Zuhause, das keine Wünsche offenlässt. Vom Rohbau bis zur letzten Fliese kümmern wir uns um alles, sodass Sie sich entspannt zurücklehnen können. Dies garantiert nicht nur einen reibungslosen Bauablauf, sondern auch höchste Qualität in der Ausführung. Ihr neues Zuhause ist somit schnell bezugsfertig und Sie können sich auf die Vorteile eines nachhaltigen und modernen Lebensstils freuen.
Lage
Wathlingen bietet Ihnen eine hervorragende Lebensqualität mit einer Vielzahl an Angeboten für Bildung, Gesundheit, Einkauf und Freizeit. In der unmittelbaren Umgebung finden Sie zahlreiche Schulen, Kindergärten und Bildungseinrichtungen, die für Familien besonders wichtig sind. Auch medizinische Einrichtungen sind gut erreichbar, sodass Sie stets auf eine umfassende Gesundheitsversorgung zählen können. Die Einkaufsmöglichkeiten in der Nähe sind vielfältig, von großen Einkaufszentren bis hin zu kleinen Geschäften und Wochenmärkten, die Ihnen eine breite Auswahl an frischen Produkten bieten.
Für Ihre Freizeitgestaltung haben Sie hier ebenfalls viele Optionen: Parks, Sporteinrichtungen und kulturelle Angebote sind nur einen Katzensprung entfernt. Der öffentliche Nahverkehr ist optimal ausgebaut, sodass Sie bequem alle Teile der Stadt erreichen können. Darüber hinaus ist die Anbindung an die Autobahnen hervorragend, was Ihnen ermöglicht, schnell in die umliegenden Regionen zu reisen. So genießen Sie nicht nur die Vorzüge des Lebens, sondern auch die Flexibilität, die Ihnen eine zentrale Lage bietet.
Adresse
29339 Wathlingen
Interessante Orte
Preis- und Lageinformationen
Preistrend für Bestandsimmobilien in Wathlingen