Willkommen in diesem charmanten Einfamilienhaus in ruhiger und begehrter Lage von Wolfsburg / Fallersleben. Die gepflegte Immobilie aus dem Jahr 1972 bietet auf ca. 146 m² Wohnfläche und einem großzügigen Grundstück von ca. 864 m² viel Raum für Familienleben und individuelle Entfaltung.
Ein besonderes Highlight ist das gemütliche Kaminzimmer, das eine warme und behagliche Atmosphäre schafft – ideal für entspannte Abende mit der Familie oder gesellige Stunden mit Freunden. Der großzügige Wohnbereich bietet ausreichend Platz für gemeinsame Zeit und vielfältige Einrichtungsmöglichkeiten.
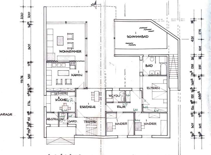
Das Haus verfügt über insgesamt 5,5 Zimmer, darunter drei geräumige Schlafzimmer, die genügend Rückzugsmöglichkeiten für alle Familienmitglieder bieten. Die beiden Badezimmer sind funktional und in normaler Ausstattung gehalten.
Ein echtes Plus dieser Immobilie ist der private Wellnessbereich: Der Saunabereich mit integrierter Dusche und angrenzendem WC bietet direkten Zugang zum hauseigenen Schwimmbad. Hier genießen Sie Erholung und Freizeitspaß unabhängig von Wetter und Jahreszeit – ein besonderes Extra für Groß und Klein.
Auch in puncto Komfort überzeugt das Haus: Eine großzügige Tiefgarage mit Platz für zwei Autos sorgt für bequemes und sicheres Parken direkt im Haus ideal bei jedem Wetter und mit zusätzlichem Stauraum.
Die Terrasse lädt zu entspannten Stunden im Freien ein und bietet einen schönen Blick in den Garten perfekt für Grillabende, spielende Kinder oder ruhige Momente an der frischen Luft.
Das Haus ist voll unterkellert und bietet dadurch zusätzliche Nutz- und Abstellflächen sowie vielseitige Gestaltungsmöglichkeiten. Die Verfügbarkeit erfolgt flexibel nach Absprache.
Überzeugen Sie sich selbst von diesem familienfreundlichen Zuhause mit Kaminzimmer, Schwimmbad, eigenem Saunabereich und Tiefgarage für zwei Fahrzeuge – wir freuen uns auf Ihre Anfrage zur Besichtigung.
Wohnen mit Wellnessfaktor – Stilvolles Zuhause mit Sauna und Schwimmbad
38442 Wolfsburg
Die vollständige Adresse der Immobilie erhalten Sie vom Anbieter.
Auf Karte anzeigen
Die vollständige Adresse der Immobilie erhalten Sie vom Anbieter.
Finanzierungszertifikat
In nur zwei Minuten zu Ihrem persönlichen Finanzierungszertifkat.
Infos
| Haustyp | Einfamilienhaus |
|---|---|
| Wohnfläche ca. | 146 m2 |
| Grundstücksfläche | 864 m2 |
| Bezugsfrei ab | nach Absprache |
| Zimmer | 5,5 |
| Schlafzimmer | 3 |
| Badezimmer | 2 |
| Garage/Stellplatz | Tiefgarage |
| Anzahl Garage/Stellplatz | 2 |
Kosten
| Kaufpreis |
659.000 € |
|---|---|
| Provision |
Provisionsfrei |
Finanzierungsrechner:
Kaufpreis:
600.000 €
Eigenkapital:
600.000 €
Monatliche Rate
0 €
Effektiver Jahreszins
0 %
Sollzinsbindung
10 Jahre
Bausubstanz & Energieausweis
| Baujahr | 1972 |
|---|---|
| Objektzustand | Gepflegt |
| Heizungsart | Öl-Heizung |
| Wesentliche Energieträger | Öl |
Beschreibung des Objekts
Ausstattung
- Architektenhaus
- Fernwärmeleitung liegt an der Straße
- Kaminzimmer
- Ölheizung aus 2025
- 2-fach verglaste Fenster von 1972
- Dachmodernisierung 2015/2016
- Schwimmender Boden im Erdgeschoss
- Elternbadezimmer modernisiert 2005/2006
- offene Küche mit Abstellraum ca. 2 m²
- Gäste-WC mit Tageslichtfenster
- Waschkeller
- Partykeller
- Schwimmbeckentiefe 1,80 m, beheizt
- Wellnessbereich mit Sauna
Lage
Das Einfamilienhaus befindet sich in einer der begehrtesten Wohnlagen von Wolfsburg, im charmanten Stadtteil Fallersleben. Dieser Stadtteil vereint historische Atmosphäre mit modernem Lebenskomfort und bietet eine reizvolle Mischung aus Tradition und Innovation. Die Lage zeichnet sich durch ihre hervorragende Anbindung an das Stadtzentrum von Wolfsburg und die umliegenden Wirtschaftsstandorte aus, was sie besonders attraktiv für Familien und Pendler macht.
Fallersleben besticht durch seine grüne Umgebung und zahlreiche Freizeitmöglichkeiten. In der Nähe finden sich idyllische Parks, moderne Sportanlagen und entspannte Spazierwege, die zu Aktivitäten im Freien einladen. Die lokale Infrastruktur überzeugt mit Schulen, Kindergärten und Einkaufsmöglichkeiten, die sich alle in der Nähe befinden.
Dank der guten Verkehrsanbindungen erreicht man sowohl die Innenstadt von Wolfsburg als auch die Autobahnen schnell und unkompliziert. Öffentliche Verkehrsmittel sind ebenso bequem erreichbar und tragen zu einer hohen Mobilität bei.
Diese Lage bietet eine ausgewogene Kombination aus Ruhe und Stadtnähe, perfekt für Menschen, die das Beste aus beiden Welten genießen möchten.
Sonstige Angaben
Informationen zu Waldberg Immobilien GmbH
Herzlich Willkommen bei Waldberg Immobilien. Mit uns bekommen Sie ein zuverlässiges und dynamisches Team in der Immobilienbranche. Wir beraten Sie rund um den Verkauf und Ankauf von Häusern und Grundstücken, ermitteln den Wert Ihrer Immobilie, sind schnell und betreuen Sie von Anfang bis nach dem Notartermin. Darüber hinaus ermöglichen wir Ihnen Partnerschaften oder Investitionsmöglichkeiten im Immobilienmarkt, sowie langfristige und nachhaltige Karrieremöglichkeiten. Gestalten Sie mit uns zusammen Ihren ganz eigenen Weg im Immobilienbereich. Wir freuen uns auf Sie.
Unsere Leistungen sind:
Vermittlung von Immobilien
Verwaltung der Immobilien
Ankauf von Immobilien
Kooperationen
Beratung rund um Immobilien
Anlageaufbau
Kooperationen und Gemeinschaftsprojekte
Wertermittlungen/Gutachten
Haftung Waldberg Immobilien GmbH:
Die Bilder, Videos, Informationen und sonstige Daten zu der angebotenen Immobilie werden sorgfältig von uns geprüft. Hier stehen wir stets im engen Austausch mit den Verkäufern. Trotzdem gibt die Waldberg Immobilien GmbH samt ihren Angestellten für die Richtigkeit der Angaben keine Gewähr und haftet somit auch nicht dafür. Wir bitten hier um Ihr Verständnis
Das Gleiche gilt auch genauso wenig für das Vorlegen eines Angebots für den Verkauf.
Mit dem Besitz dieses Angebotes entsteht zwischen dem Erwerber und der Waldberg Immobilien GmbH ein Maklervertrag. Bei Gebrauch des Angebots, sprich wenn der Erwerbe die Immobilie dadurch kauft, muss der Erwerber auch die aufgewiesene Maklercourtage an die Waldberg Immobilien GmbH entrichten.
Die Weitergabe an Dritte, die einen Kauf der Immobilie nicht beabsichtigen, ist untersagt. Bei Weitergabe von Dritten haftet der Weitergebende für die Maklercourtage.
Grundriss
Grundriss_Erdgeschoss
>
>
Grundriss_Kellergeschoss
>
>
Adresse
38442 Wolfsburg
Interessante Orte
Preis- und Lageinformationen
Preistrend für Bestandsimmobilien in Stadtmitte