Zum Verkauf steht ein Mehrfamilienhaus aus dem Jahr 1964 in ruhiger und dennoch zentrumsnaher Lage von Schwalbach am Taunus. Das Haus wurde von 2012 bis 2021 komplett saniert und modernisiert und bietet eine solide Rendite. Auf einer Grundstücksfläche von ca. 759 m² erstreckt sich das Haus über drei Etagen mit insgesamt 16 Zimmern, darunter 9 Schlafzimmer und 7 Badezimmer.
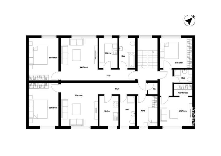
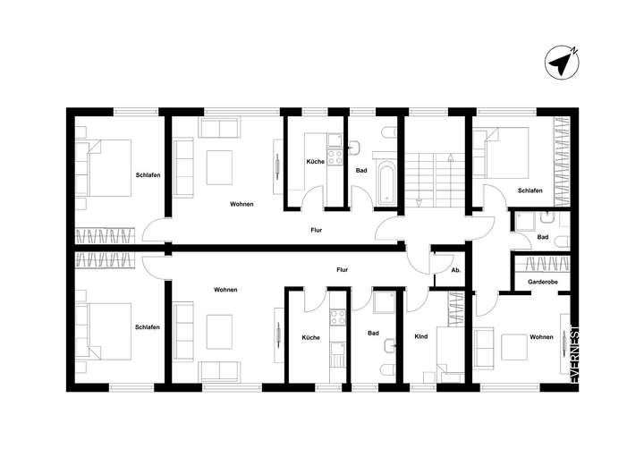
Das Haus verfügt über eine Wohnung im Erdgeschoss und drei Wohnungen im Obergeschoss mit einer Gesamtwohnfläche von ca. 295 m² sowie zwei zu Wohnzwecken ausgebaute Einheiten mit weiteren rund 118 m² im Untergeschoss. Zusätzlich bieten der Dachspeicher mit ca. 40 m² Abstellfläche, der Keller zur Erdgeschosswohnung sowie der Heizungsraum weitere Nutzfläche.
In allen Wohnungen wurden neue Bodenbeläge verlegt sowie die Bäder saniert und modernisiert. Die Wasser- und Stromleitungen wurden ebenfalls bereits erneuert. Durch die Dämmung des Hauses bis zur Bodenplatte, die Dacherneuerung und modernen Fenster erreicht das Mehrfamilienhaus die Energieklasse B nach tatsächlichem Verbrauch. Die Heizkostenabrechnungen liegen vor und können eingesehen werden.
Die ca. 148 m² große Wohnung im Erdgeschoss ist nicht vermietet und kann nach Absprache zeitnah bezugsfrei übergeben werden. Sie können mit Ihrer Familie selbst in diese Wohnung einziehen oder das Mehrfamilienhaus komplett vermieten. Auch eine Teilnutzung als Büro ist hier denkbar. Der Rest des Hauses ist vermietet.
Unser Angebot für Sie: Wir bieten Käufern von Evernest, die eine Immobilie über uns erworben haben, einen besonderen Service an - eine kostenlose Erstvermietung des erworbenen Objekts oder der nach dem Kauf frei werdenden Wohnungen.
Der Angebotspreis liegt bei 1.249.000 Euro, was einem Preis pro Quadratmeter vermietbarer Fläche von 3.024,21 € entspricht.
Bei einer Vollvermietung zu ca. 12 €/m² im EG, ca. 13 €/m² im OG sowie ca. 10 €/m² im UG, ähnlich wie in den bereits vorhandenen Mietverträgen, können bei dieser Konstellation monatliche Mieteinnahmen in Höhe von ca. 4.887 € generiert werden. Das entspricht einem Faktor von 21. Die Parkplätze sind derzeit nicht (mit-)vermietet. Durch eine Vermietung der Parkplätze können zusätzliche Mieteinnahmen generiert werden.
Im individuellen Exposé finden Sie neben Fotoaufnahmen und der genauen Anschrift des Hauses auch eine digitale 360-Grad-Begehung der größten Wohnung im Erdgeschoss vor.
Überzeugen Sie sich selbst von diesem attraktiven Angebot und kontaktieren Sie uns für weitere Informationen sowie eine Besichtigung. Nutzen Sie diese ausgezeichnete Gelegenheit, in ein modernes und hochwertiges Mehrfamilienhaus mit Energieklasse B in Schwalbach am Taunus zu investieren, und sichern Sie sich jetzt diese lukrative Kapitalanlage!
Wohnen und Investieren: Saniertes Mehrfamilienhaus in attraktiver Feldrandlage in Schwalbach/Ts.
65824 Schwalbach am Taunus
Die vollständige Adresse der Immobilie erhalten Sie vom Anbieter.
Auf Karte anzeigen
Die vollständige Adresse der Immobilie erhalten Sie vom Anbieter.
Finanzierungszertifikat
In nur zwei Minuten zu Ihrem persönlichen Finanzierungszertifkat.
Infos
| Haustyp | Mehrfamilienhaus |
|---|---|
| Etagenzahl | 3 |
| Wohnfläche ca. | 295 m2 |
| Nutzfläche | 190 m2 |
| Grundstücksfläche | 759 m2 |
| Zimmer | 16 |
| Schlafzimmer | 9 |
| Badezimmer | 7 |
| Garage/Stellplatz | Außenstellplatz |
| Anzahl Garage/Stellplatz | 10 |
Kosten
| Kaufpreis |
1.249.000 € |
|---|---|
| Provision |
5.95 % inkl. MwSt. Bei Abschluss eines notariellen Kaufvertrages ist eine Käuferprovision vom Käufer in Höhe von 5.95 % inkl. MwSt. aus dem Kaufpreis fällig. |
Finanzierungsrechner:
Kaufpreis:
600.000 €
Eigenkapital:
600.000 €
Monatliche Rate
0 €
Effektiver Jahreszins
0 %
Sollzinsbindung
10 Jahre
Bausubstanz & Energieausweis
| Baujahr | 1964 |
|---|---|
| Letzte Sanierung | 2020 |
| Objektzustand | Vollständig Renoviert |
| Qualität der Austattung | Normal |
| Heizungsart | Öl-Heizung |
| Wesentliche Energieträger | Öl |
| Energieausweis | liegt vor |
| Energieausweistyp | Verbrauchsausweis |
| Energieverbrauchskennwert | 72,0 kWh/(m²*a) |
| Energieeffizienzklasse | B |
72,0
kWh/(m²*a)
Energieeffizienzklasse B
- A+
- A
- B
- C
- D
- E
- F
- G
- H
- 0
- 25
- 50
- 75
- 100
- 125
- 150
- 175
- 200
- 225
- >250
Beschreibung des Objekts
Ausstattung
- Grundstück ca. 759 m²
- Haus saniert von 2012 bis 2021
- Neue Dämmung, Leitungen und Dach
- 4 Wohnungen mit einer Wohnfläche von insges. 295 m²
- 2 ausgebaute Einheiten im UG
- Kamin möglich im EG
- Keller zur EG-Wohnung und Heizung
- Dachspeicher mit Abstellfläche
- 10 Außenstellplätze, nicht vermietet
- Teilweise Eigennutzung möglich
- Faktor von 21 (bei Vollvermietung)
Lage
Die Stadt Schwalbach am Taunus liegt im Vordertaunus am Fußrand des Naturparks Taunus. Im Uhrzeigersinn, beginnend im Norden, grenzt Schwalbach an die Städte Eschborn mit dem Stadtteil Niederhöchststadt, Sulzbach am Taunus, Frankfurt am Main, Bad Soden am Taunus, Königstein am Taunus und Kronberg im Taunus. Auch Mainz und Wiesbaden im Westen, Bad Homburg im Norden, Offenbach und Hanau im Osten und Darmstadt im Süden sind innerhalb von 30 Autominuten zu erreichen.
Schwalbach verfügt auch über einen mittelalterlichen Ortskern mit zahlreichen Fachwerkhäusern und der St.-Pankratius-Kirche, den Gasthäusern Zum Hirschen („Mutter Krauss“) und Zum Schwanen. Alle wichtigen Einrichtungen des täglichen Bedarfs sind in wenigen Minuten fußläufig zu erreichen.
Charakteristisch sind großzügige Grünflächen, Fuß- und Radwege. Familien finden vor Ort sowohl kommunale als auch konfessionelle Kindergärten. Schulen mit sämtlichen Schulformen sind vorhanden. Die private bilinguale Bildungseinrichtung Obermayr mit Kinderkrippe, Kindergaren, Realschule und Gymnasium ist überregional bekannt und biete höchste Bildungsstandards auf europäischem Niveau.
Hier haben auch einige namhafte Unternehmen ihren Sitz. Die größten Arbeitgeber in der Stadt sind Procter & Gamble Germany, der Autozulieferer Continental, SAMSUNG und BIT Analytical Instruments GmbH. Ein weiteres Besuchermagnet ist das Naturbad, das 2013 entstand.
Schwalbach am Taunus verfügt über eine hervorragende Verkehrsnetzanbindung. Diverse Buslinien, die S-Bahn Linie S3 sowie die Autobahnen A66, A5, A648 stehen Ihnen zur Verfügung. Der Flughafen Frankfurt liegt nur 20 Autominuten entfernt.
Grundriss
Untergeschoss
>
>
Erdgeschoss
>
>
Obergeschoss
>
>
Adresse
65824 Schwalbach am Taunus
Interessante Orte
Preis- und Lageinformationen
Preistrend für Bestandsimmobilien in Schwalbach am Taunus