Zeitloses Einfamilienhaus mit Satteldacherker
Dieses Einfamilienhaus mit Satteldacherker verbindet zeitloses Design mit optimaler Raumausnutzung. Der charakteristische Erker sorgt nicht nur für ein ansprechendes Erscheinungsbild, sondern schafft auch im Inneren ein helles und freundliches Ambiente. Der offene Koch-, Ess- und Wohnbereich bildet das Herzstück des Hauses und bietet viel Raum für gemeinsame Aktivitäten. Im Erdgeschoss finden sich zudem ein praktisches Gäste-WC und ein vielseitig nutzbarer Arbeitsraum. Der helle Treppenbereich mit offenem Luftraum verleiht dem Haus eine luftige Atmosphäre. Im Obergeschoss befinden sich drei großzügige Schlafzimmer sowie ein geräumiges Badezimmer mit Dusche und Badewanne. Dieses Objekt ist ein perfektes Beispiel dafür, wie einfach unsere Objekte individuell angepasst werden können. Schauen Sie sich dafür den großen Bruder dieses Objektes an: DeinSteinHaus 186S.
DeinSteinHaus 151S
38464 Groß Twülpstedt
Die vollständige Adresse der Immobilie erhalten Sie vom Anbieter.
Auf Karte anzeigen
Die vollständige Adresse der Immobilie erhalten Sie vom Anbieter.
Finanzierungszertifikat
In nur zwei Minuten zu Ihrem persönlichen Finanzierungszertifkat.
Infos
| Haustyp | Einfamilienhaus |
|---|---|
| Etagenzahl | 2 |
| Wohnfläche ca. | 150 m2 |
| Grundstücksfläche | 610 m2 |
| Zimmer | 5 |
| Schlafzimmer | 4 |
| Badezimmer | 1 |
Kosten
| Kaufpreis |
414.900 € |
|---|
Finanzierungsrechner:
Kaufpreis:
600.000 €
Eigenkapital:
600.000 €
Monatliche Rate
0 €
Effektiver Jahreszins
0 %
Sollzinsbindung
10 Jahre
Bausubstanz & Energieausweis
| Baujahr | 2027 |
|---|---|
| Bauphase | Haus in Planung (projektiert) |
| Qualität der Austattung | Gehoben |
| Heizungsart | Wärmepumpe |
Beschreibung des Objekts
Lage
Wohnen in Groß Sisbeck: Ländlich-idyllisch und dennoch ideal gelegen- Wolfsburg, Braunschweig und Helmstadt sind schnell erreichbar. Lage & Anbindung: In der Gemeinde Groß Twülpstedt, Landkreis Helmstadt, mit guter Infrastruktur in Groß Twülpstedt und Velpke. Wolfburg und Helmstadt in 25 Minuten, Braunschweig in 30 Minuten über A2 erreichbar.
.
* Sichern Sie sich Ihr Wunschgrundstück noch heute *
Sonstige Angaben
Das Grundstück und die Baunebenkosten sind nicht im Preis inbegriffen.
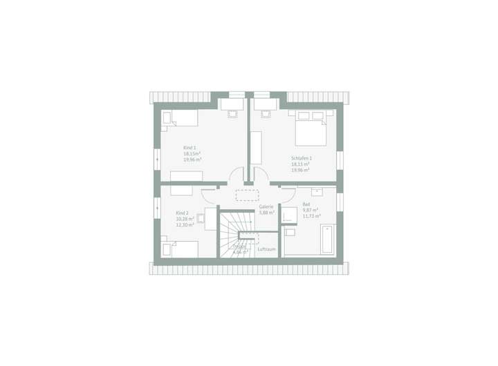
Grundriss
Dachgeschoss
>
>
Adresse
38464 Groß Twülpstedt
Interessante Orte
Preis- und Lageinformationen
Preistrend für Bestandsimmobilien in Groß Twülpstedt