Zeitloses Einfamilienhaus mit Satteldacherker
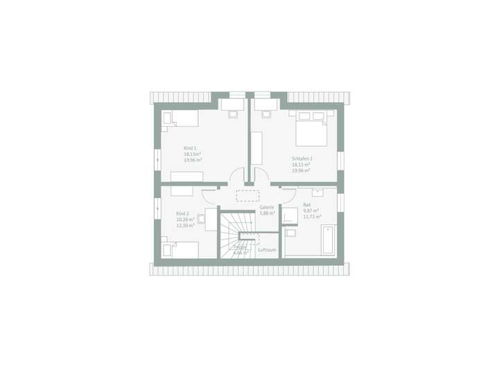
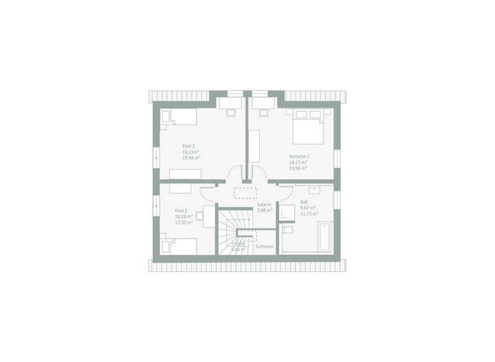
Dieses Einfamilienhaus mit Satteldacherker verbindet zeitloses Design mit optimaler Raumausnutzung. Der charakteristische Erker sorgt nicht nur für ein ansprechendes Erscheinungsbild, sondern schafft auch im Inneren ein helles und freundliches Ambiente. Der offene Koch-, Ess- und Wohnbereich bildet das Herzstück des Hauses und bietet viel Raum für gemeinsame Aktivitäten. Im Erdgeschoss finden sich zudem ein praktisches Gäste-WC und ein vielseitig nutzbarer Arbeitsraum. Der helle Treppenbereich mit offenem Luftraum verleiht dem Haus eine luftige Atmosphäre. Im Obergeschoss befinden sich drei großzügige Schlafzimmer sowie ein geräumiges Badezimmer mit Dusche und Badewanne. Dieses Objekt ist ein perfektes Beispiel dafür, wie einfach unsere Objekte individuell angepasst werden können. Schauen Sie sich dafür den großen Bruder dieses Objektes an: DeinSteinHaus 186S.
DeinSteinHaus 151S
38458 Velpke
Die vollständige Adresse der Immobilie erhalten Sie vom Anbieter.
Auf Karte anzeigen
Die vollständige Adresse der Immobilie erhalten Sie vom Anbieter.
Finanzierungszertifikat
In nur zwei Minuten zu Ihrem persönlichen Finanzierungszertifkat.
Infos
| Haustyp | Einfamilienhaus |
|---|---|
| Etagenzahl | 2 |
| Wohnfläche ca. | 150 m2 |
| Grundstücksfläche | 729 m2 |
| Zimmer | 5 |
| Schlafzimmer | 4 |
| Badezimmer | 1 |
Kosten
| Kaufpreis |
414.900 € |
|---|
Finanzierungsrechner:
Kaufpreis:
600.000 €
Eigenkapital:
600.000 €
Monatliche Rate
0 €
Effektiver Jahreszins
0 %
Sollzinsbindung
10 Jahre
Bausubstanz & Energieausweis
| Baujahr | 2027 |
|---|---|
| Bauphase | Haus in Planung (projektiert) |
| Qualität der Austattung | Gehoben |
| Heizungsart | Wärmepumpe |
Beschreibung des Objekts
Lage
Wohnen am dynamischen Wirtschaftsstandort Wolfsburg- Braunschweig- Helmstedt!. In unmittelbarer Nähe liegt die Gemeinde Velpke. Dort befinden sich die zentralen Infrastrukturen der sozialen und gesundheitlichen Versorgung sowie Einkaufsmöglichkeiten zur Versorgung mit Gütern des täglichen Bedarfs, wie zum Beispiel Kindergärten, Schulen, Supermärkte, Ärzte, Tankstellen, Vereine, Restaurants, Bäcker etc..
Sonstige Angaben
Das Grundstück und die Baunebenkosten sind nicht im Preis inbegriffen.
Grundriss
Dachgeschoss
>
>
Adresse
38458 Velpke
Interessante Orte
Preis- und Lageinformationen
Preistrend für Bestandsimmobilien in Velpke