Dieses gepflegte Mehrfamilienhaus in Offenbach am Main (Stadtteil Bieber) bietet eine attraktive Gelegenheit für Kapitalanleger, die Wert auf stabile Mieteinnahmen und nachhaltiges Entwicklungspotenzial legen. Das ca. 1924 errichtete Gebäude umfasst sieben Wohneinheiten sowie einen DFMG-Funkturm und verfügt über eine Wohnfläche von rund 470 m² bei einer Gesamtfläche von ca. 625 m² auf einem etwa 485 m² großen Grundstück. Aktuell besteht kein Leerstand.
Aktuell werden jährliche Nettokaltmieteinnahmen von ca. 67.416,12 € erzielt. Durch bereits absehbare Mietanpassungen lässt sich bis Ende 2027 eine SOLL-Miete von ca. 75.760,20 € erreichen. Auf Basis des Angebotspreises von 1.295.000 € ergibt sich eine Bruttoanfangsrendite von rund 5,2 % sowie ein Kaufpreisfaktor von ca. 19,2. Bei Erreichen der SOLL-Miete steigt die Rendite auf etwa 5,9 %, der Faktor reduziert sich auf ca. 17,1. Damit verbindet das Objekt laufenden Cashflow mit zusätzlichem Wertsteigerungspotenzial.
Das Gebäude wurde in den vergangenen Jahren schrittweise modernisiert. Dach und Fassade wurden 2010 erneuert und teilweise gedämmt, die Beheizung erfolgt über eine Gas-Zentralheizung aus dem Jahr 2001. Mehrere Wohneinheiten wurden in den Jahren 2019, 2021 und 2023 saniert, während einzelne Wohnungen sowie Teile der technischen Infrastruktur noch Entwicklungsmöglichkeiten bieten. Die Kunststofffenster sind doppelt verglast. Allgemeinflächen wie das Treppenhaus sind renovierungsbedürftig, während Haustür und Briefkastenanlage einen gepflegten Eindruck hinterlassen.
Ergänzt wird das Angebot durch eine Garage, vier Abstellräume im Hof sowie separate Kellerabteile. Insgesamt präsentiert sich die Immobilie als solides und zukunftsfähiges Investment im wirtschaftsstarken Rhein-Main-Gebiet, das sowohl durch seine aktuelle Ertragskraft als auch durch weiteres Optimierungspotenzial überzeugt.
Attraktive Kapitalanlage in Offenbach: Vollvermietetes MFH mit Faktor 17 & ca. 5,9 % Rendite
63073 Offenbach am Main
Die vollständige Adresse der Immobilie erhalten Sie vom Anbieter.
Auf Karte anzeigen
Die vollständige Adresse der Immobilie erhalten Sie vom Anbieter.
Finanzierungszertifikat
In nur zwei Minuten zu Ihrem persönlichen Finanzierungszertifkat.
Infos
| Haustyp | Mehrfamilienhaus |
|---|---|
| Etagenzahl | 4 |
| Wohnfläche ca. | 469 m2 |
| Nutzfläche | 155,58 m2 |
| Grundstücksfläche | 485 m2 |
| Zimmer | 19 |
| Garage/Stellplatz | Parkhaus |
| Anzahl Garage/Stellplatz | 1 |
Kosten
| Kaufpreis |
1.295.000 € |
|---|---|
| Provision |
5.95 % inkl. MwSt. Bei Abschluss eines notariellen Kaufvertrages ist eine Käuferprovision vom Käufer in Höhe von 5.95 % inkl. MwSt. aus dem Kaufpreis fällig. |
| Mieteinnahmen | 67.416 € |
Finanzierungsrechner:
Kaufpreis:
600.000 €
Eigenkapital:
600.000 €
Monatliche Rate
0 €
Effektiver Jahreszins
0 %
Sollzinsbindung
10 Jahre
Bausubstanz & Energieausweis
| Baujahr | 1924 |
|---|---|
| Letzte Sanierung | 2023 |
| Objektzustand | Saniert |
| Qualität der Austattung | Normal |
| Heizungsart | Gas-Heizung |
| Wesentliche Energieträger | Gas |
| Energieausweis | liegt vor |
| Energieausweistyp | Verbrauchsausweis |
| Energieverbrauchskennwert | 134,0 kWh/(m²*a) |
| Energieeffizienzklasse | E |
134,0
kWh/(m²*a)
Energieeffizienzklasse E
- A+
- A
- B
- C
- D
- E
- F
- G
- H
- 0
- 25
- 50
- 75
- 100
- 125
- 150
- 175
- 200
- 225
- >250
Beschreibung des Objekts
Ausstattung
- Vollvermietetes Mehrfamilienhaus ohne Leerstand
- Kaufpreisfaktor ca. 17 realisierbar
- SOLL-Nettokaltmiete ca. 75.760 € p.a. bis Ende 2027
- Renditepotenzial bis ca. 5,9 %
- 7 Wohneinheiten + DFMG-Funkturm
- Teilmodernisiert mit weiterem Miet- und Wertsteigerungspotenzial
Lage
Die Immobilie befindet sich im Stadtteil Offenbach-Bieber, einem gewachsenen und beliebten Wohngebiet im Osten Offenbachs mit sehr guter Anbindung an Frankfurt und das Rhein-Main-Gebiet. Bieber verbindet eine ruhige, wohnwirtschaftliche Struktur mit hoher Attraktivität für Pendler.
Ein wesentlicher Standortvorteil ist die S-Bahn-Station Offenbach-Bieber, die sich in fußläufiger Nähe befindet. Von hier verkehren die S-Bahn-Linien S1 und S2 mit direkter Verbindung nach Frankfurt-Innenstadt, Frankfurt Hauptbahnhof, Frankfurt-Höchst, Wiesbaden sowie in Richtung Hanau. Die Fahrzeit in die Frankfurter Innenstadt beträgt nur wenige Minuten, was den Standort besonders für Berufspendler attraktiv macht.
Zusätzlich stehen Buslinien im direkten Umfeld zur Verfügung, die eine schnelle Anbindung an weitere Offenbacher Stadtteile sowie das Stadtzentrum gewährleisten. Für den Individualverkehr ist die Lage ebenfalls sehr gut: Die A661 sowie die A3 sind in kurzer Zeit erreichbar und bieten eine schnelle Verbindung nach Frankfurt, zum Flughafen Frankfurt am Main sowie in die gesamte Metropolregion Rhein-Main.
Einkaufsmöglichkeiten des täglichen Bedarfs, Schulen, Kindergärten, Ärzte und gastronomische Angebote befinden sich im nahen Umfeld. Gleichzeitig bietet der Stadtteil Bieber durch Grünflächen und eine kleinteilige Bebauung eine angenehme Wohnqualität.
Insgesamt überzeugt der Standort durch seine exzellente S-Bahn-Anbindung, hohe Pendlernachfrage und nachhaltige Vermietbarkeit – ein klarer Lagevorteil für Kapitalanleger.
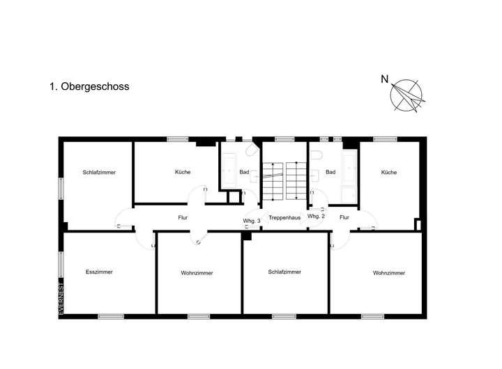
Grundriss
Erdgeschoss
>
>
1.Obergeschoss
>
>
2.Obergeschoss
>
>
Dachgeschoss
>
>
Kellergeschoss
>
>
Adresse
63073 Offenbach am Main
Interessante Orte
Preis- und Lageinformationen
Preistrend für Bestandsimmobilien in Bieber