Wie fühlt es sich an, wenn aus einem Wunschtraum Realität wird?
Inmitten der begehrtesten Wohnlage von Bad Homburg präsentiert sich dieses moderne und zeitlose Einfamilienhaus als perfekte Symbiose aus Großzügigkeit, moderner Technik, Funktionalität und Lebensgefühl.
Auf einer großzügigen Wohnfläche von ca. 300 m² verteilen sich 7 Zimmer und 3 moderne Tageslichtbäder, eine elegante Wohnküche sowie ein separates Gäste-WC im Foyer.
Mit Weinkeller und Bar lassen sich bestens gesellige Stunden mit Freunden und Gästen verbringen, der Fitnessraum mit Sauna und Dusche sorgt für die körperliche Wellness.
Großflächige Fenster in idealer Südwest-Ausrichtung sorgen für lichtdurchflutete Räume und schaffen aus nahezu jedem Bereich beeindruckende Blickachsen in den liebevoll angelegten Garten. Die bis zu drei Meter hohen Decken verstärken das Raumgefühl.
Hochwertiger Dielenboden sowie die maßgefertigte Einbauküche zeugen von der besonderen Qualität der Ausstattung. Praktische Einbauschränke dürfen natürlich auch nicht fehlen.
Musik, Licht, Beschattung und Elektrik lassen sich bequem und individuell per Knopfdruck regulieren. Dreifach verglaste raumhohe Fenster bieten in Verbindung mit elektrisch steuerbaren Raffstores ein Höchstmaß an Komfort und Sicherheit.
Der Garten ist ein weiteres Highlight: Mit viel Liebe zum Detail gestaltet, beherbergt er eine Vielfalt heimischer Pflanzen. Gartenbewässerung und eigenständige Zisterne garantieren auch in Trockenperioden eine nachhaltige Pflege – autark für mehrere Wochen.
Die große Terrasse lädt zu geselligen Stunden wie auch zur Ruhe und Entspannung ein und bietet einen traumhaften Blick auf Sonnenuntergänge.
Eine Doppelgarage mit elektrischem Rolltor runden das Angebot ab. TV-Empfang über Internet, LAN-Dosen in sämtlichen Räumen sowie eine Solaranlage zur Warmwasseraufbereitung unterstreichen den hohen Wohnkomfort dieses Anwesens.
Die Lage nahe Parks, Innenstadt, Schulen und Freizeitangeboten macht dieses Haus zum idealen Lebensmittelpunkt für Familien.
Modern, gemütlich und privat: Wohlfühloase mit gepflegtem Garten!
61350 Bad Homburg vor der Höhe
Die vollständige Adresse der Immobilie erhalten Sie vom Anbieter.
Auf Karte anzeigen
Die vollständige Adresse der Immobilie erhalten Sie vom Anbieter.
Finanzierungszertifikat
In nur zwei Minuten zu Ihrem persönlichen Finanzierungszertifkat.
Infos
| Haustyp | Einfamilienhaus |
|---|---|
| Etagenzahl | 1 |
| Wohnfläche ca. | 300 m2 |
| Nutzfläche | 147 m2 |
| Grundstücksfläche | 1.022 m2 |
| Bezugsfrei ab | nach Vereinbarung |
| Zimmer | 7 |
| Schlafzimmer | 4 |
| Badezimmer | 3 |
| Anzahl Garage/Stellplatz | 4 |
Kosten
| Kaufpreis |
2.990.000 € |
|---|---|
| Provision |
2,98 % incl. gesetzl. MwSt. |
Finanzierungsrechner:
Kaufpreis:
600.000 €
Eigenkapital:
600.000 €
Monatliche Rate
0 €
Effektiver Jahreszins
0 %
Sollzinsbindung
10 Jahre
Bausubstanz & Energieausweis
| Baujahr | 2015 |
|---|---|
| Letzte Sanierung | 2024 |
| Bauphase | Haus fertig gestellt |
| Objektzustand | Neuwertig |
| Qualität der Austattung | Luxus |
| Heizungsart | Fußbodenheizung |
| Wesentliche Energieträger | Gas |
| Energieausweis | liegt vor |
| Energieausweistyp | Verbrauchsausweis |
| Energieverbrauchskennwert | 89,4 kWh/(m²*a) |
| Energieeffizienzklasse | C |
89,4
kWh/(m²*a)
Energieeffizienzklasse C
- A+
- A
- B
- C
- D
- E
- F
- G
- H
- 0
- 25
- 50
- 75
- 100
- 125
- 150
- 175
- 200
- 225
- >250
Beschreibung des Objekts
Ausstattung
- moderne Einbauküche mit Gaggenau Geräten
- hochwertige Einbauschränke
- Südwest ausgerichtete Terrasse mit elektrischem Sonnensegel
- umlaufender Balkon im Obergeschoss
- liebevoll gestalteter Garten
- Offener Kamin im Wohn- und Essbereich
- 2,95 Meter hohe Decken
- Wandbündige Türen mit verdeckten Bändern
- Zentrale Be- und Entlüftungsanlage
- Fußbodenheizung
- Elektrische Außenjalousien
- Soundanlage von Bang & Olufsen
- Alarmanlage mit 5 Außenkameras und polizeilicher Aufschaltung
- Zentrale Staubsauganlage
- Sauna mit Dusche
- eigener Weinkeller mit maßgeschneidertem Interieur und Bar
Lage
Bad Homburg vor der Höhe liegt ca. 18 km nördlich von Frankfurt im Taunus. Die Stadt mit ca. 55.000 Einwohnern zählt zu den teuersten und exklusivsten Wohnlagen im Vordertaunus. Genießen Sie die Ruhe und gleichzeitig die Nähe zu allem, was Sie sonst noch brauchen: Entspannung pur! Gehobene Nachbarschaft in den eleganten Villenvierteln rund um den Kurpark, Wiesen und Wälder. Genießen Sie lange Spaziergänge und Radtouren in der idyllischen Umgebung mit Ihren Liebsten. Perfekte Infrastruktur u. a. mit Restaurants, Einkaufsmöglichkeiten und Ärzten. Die Stadt gilt als moderner Wirtschaftsstandort und attraktive Einkaufsstadt. Das Landgrafenschloss und die Einkaufsmeile Louisenstraße (Fußgängerzone) stellen den Mittelpunkt der berühmten
Kurstadt dar. Fitness-, Tennis-, und Hockeyclubs sowie mehrere Reitanlagen befinden sich in naher Umgebung. Zwei wunderschön gelegene 9- und 18-Loch-Golfplätze, Kindergärten und die Grundschule von Bad Homburg sind fußläufig (ca. 10 Minuten) vom Haus entfernt.
Gymnasien in der Nähe: Kaiserin-Friedrich-Gymnasium und Humboldtschule in ca. 10 bis 15 Minuten mit dem Fahrrad erreichbar, Frankfurt International School in Oberursel mit dem Bus erreichbar, Bushaltestelle ca. 2 Gehminuten vom Haus entfernt. Weitere bilinguale Privatschulen in Bad Homburg (Accadis) und Bad Vilbel (Europäische Schule Rhein-Main) sind ebenfalls schnell zu erreichen. Nach Frankfurt kommen Sie in ca. 20 Minuten über die A661 oder A5. Den Frankfurter Flughafen erreichen Sie in ca. 30 Minuten. Hinter Bad Homburg und seinen Stadtteilen Lagebeschreibung erhebt sich der Taunus mit dem Herzberg (ca. 591 m).
Sonstige Angaben
Sämtliche Provisionsangaben verstehen sich inklusive der gesetzlichen Mehrwertsteuer von derzeit 19%. Die Provision ist verdient und fällig nach notarieller Beurkundung des Kaufvertrags. Alle Daten stammen vom Eigentümer, Hausverwalter oder Vormieter, für die Richtigkeit übernehmen wir keine Haftung. Die Weitergabe an Dritte verpflichtet zur vollen Provisionszahlung.
Hinweis zum Widerrufsrecht:
Nach den EU-Verbraucher-Richtlinien sind Makler seit dem 13.06.2014 dazu verpflichtet, ihre Kunden über ihr Widerrufsrecht bei Fernabsatzverträgen hinzuweisen. Ein Fernabsatzvertrag ist schon zustande gekommen, wenn Sie uns telefonisch oder per E-Mail bezüglich einer Immobilie kontaktieren.
Wir bitten daher um Ihr Verständnis, wenn Sie vor der Vereinbarung eines Besichtigungstermins bzw. vor Überlassung weiterer Informationen zur Immobilie eine Email mit detaillierten Informationen bezüglich Ihres Widerrufsrechts von uns erhalten. Erst danach können wir in vollem Umfang für Sie tätig werden. Diese Maßnahme dient dem Schutz der Verbraucher, um in alle Richtungen transparent und fair arbeiten zu können.
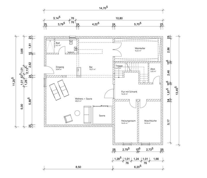
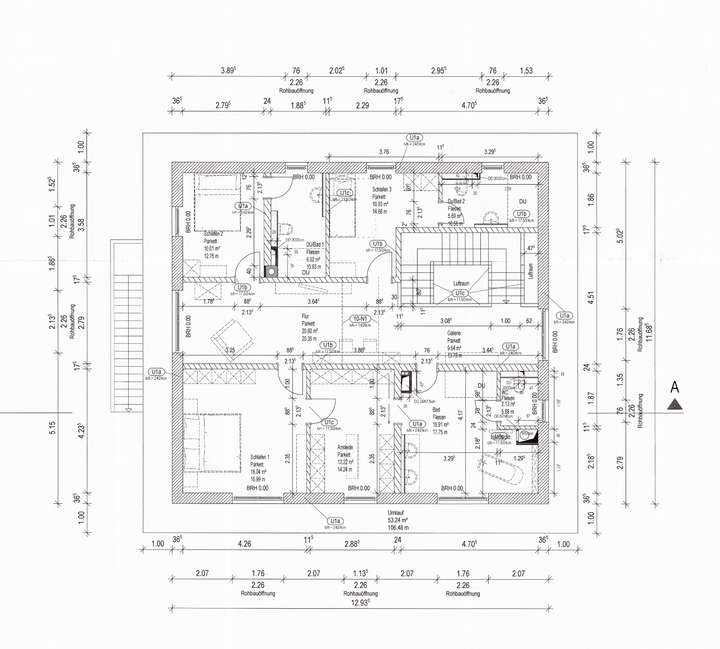
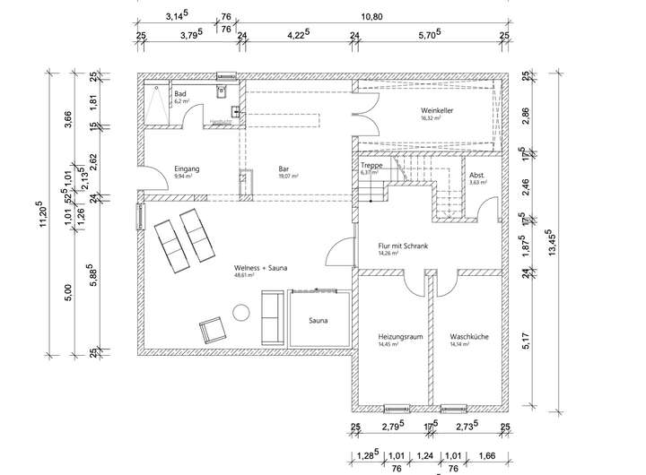
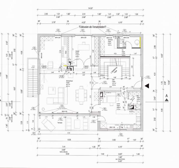
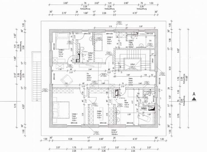
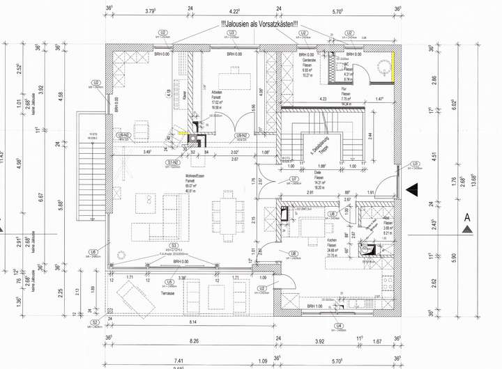
Grundriss
Grundriss KG.png
>
>
Grundriss DG.png
>
>
Grundriss EG.png
>
>
Adresse
61350 Bad Homburg vor der Höhe
Interessante Orte
Preis- und Lageinformationen
Preistrend für Bestandsimmobilien in Bad Homburg vor der Höhe