Bei der angebotenen Immobilie handelt es sich um ein sehr attraktives Ein-/Zweifamilienhaus mit ausgebautem Dachgeschoss, das 1957 als Doppelhaushälfte in einer der begehrtesten Wohnlagen von Neu-Isenburg errichtet wurde. Das großzügige Eckgrundstück umfasst eine Fläche von ca. 426 m² und bietet insbesondere für Familien ein ideales Zuhause.
Aufgrund des sehr gepflegten Zustands der Immobilie, sind grundsätzlich keinerlei Sanierungs-, Modernisierungs- oder Instandhaltungsarbeiten notwendig. Je nach persönlichem Geschmack können Sie also direkt oder nach kleineren Renovierungsmaßnahmen in Ihr neues Zuhause einziehen. Mit einer Wohnfläche von ca. 199,00 m² und einer zusätzlichen Nutzfläche von ca. 59,00 m² bietet das Objekt ein großzügiges Raumangebot für unterschiedlichste Lebenskonzepte.
Der Zugang erfolgt durch ein kleines Gartentor und den geschmackvoll angelegten Vorgarten über einen mit schwarzem Basalt gepflasterten Weg. Die Hauseingangstür erreichen Sie über einen kleinen mit Echtschiefer überdachten Treppenaufgang aus Granit. Schon beim Betreten der Diele bzw. des Eingangsbereichs wird der Charakter der Immobilie spürbar. Die lichtdurchflutete Gestaltung mit vielen Fenstern und die Verarbeitung heller Materialien schaffen eine offene und einladende Atmosphäre.
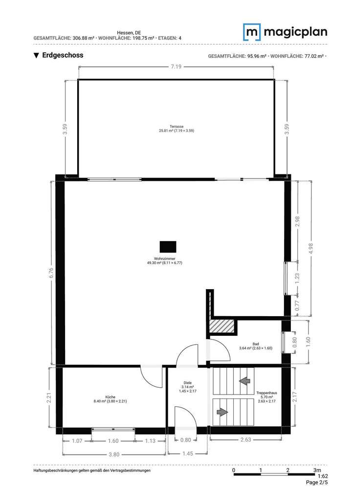
Über die Diele im Hochparterre/EG - hier schließt auch das Treppenhaus an, das alle Etagen miteinander verbindet - gelangen Sie in das überaus großzügige Wohn- und Esszimmer, das mit seinen ca. 50,00 m² ein absolutes Highlight mit außergewöhnlich vielen Gestaltungsmöglichkeiten darstellt. Der Raum wird sowohl durch den hellen Fußboden aus hochwertigem Echtholzparkett (kanadischer Ahorn) als auch durch seine offene Architektur mit klaren Linien und hellen Farben charakterisiert. Im Wohnbereich wurde außerdem ein stilvoller offener Wandkamin mit Glasscheibe integriert, der insbesondere in der Winterzeit eine gemütliche Atmosphäre schafft. Der Essbereich bietet ausreichend Platz für einen großen Esstisch mit 8-10 Stühlen. Von hier aus haben Sie zudem einen direkten Zugang zur großzügigen Terrasse und dem Garten. Auf der gegenüberliegenden Seite des Wohnbereichs befinden sich ein weiß gefliestes Bad/Gäste-WC mit Tageslicht sowie eine abgeschlossene Küche mit großen Fenstern, in der eine hochwertige Einbauküche mit Markengeräten verbaut wurde.
Im Obergeschoss setzt sich die durchdachte Architektur und Raumaufteilung fort. Eine geräumige Diele erschließt ein Schlaf-, ein Kinder- und ein Arbeitszimmer mit Balkon sowie ein sehr geräumiges Badezimmer mit Tageslicht. Dieses Masterbad ist hell gefliest und verfügt über eine Dusche, eine Badewanne und ein WC sowie über ein Bidet und einen großen Waschtisch. Die Diele und die verschiedenen Zimmer sind mit einem hochwertigen Kork- sowie Vinylboden ausgestattet. Der großzügige Balkon ist nach Süden ausgerichtet.
Das ausgebaute Dachgeschoss wurde 1996 durch zwei Gauben erweitert und bietet ein zusätzliches außergewöhnlich großes Zimmer/Büro mit ca. 50,00 m² sowie eine Küchenzeile und ein Badezimmer.
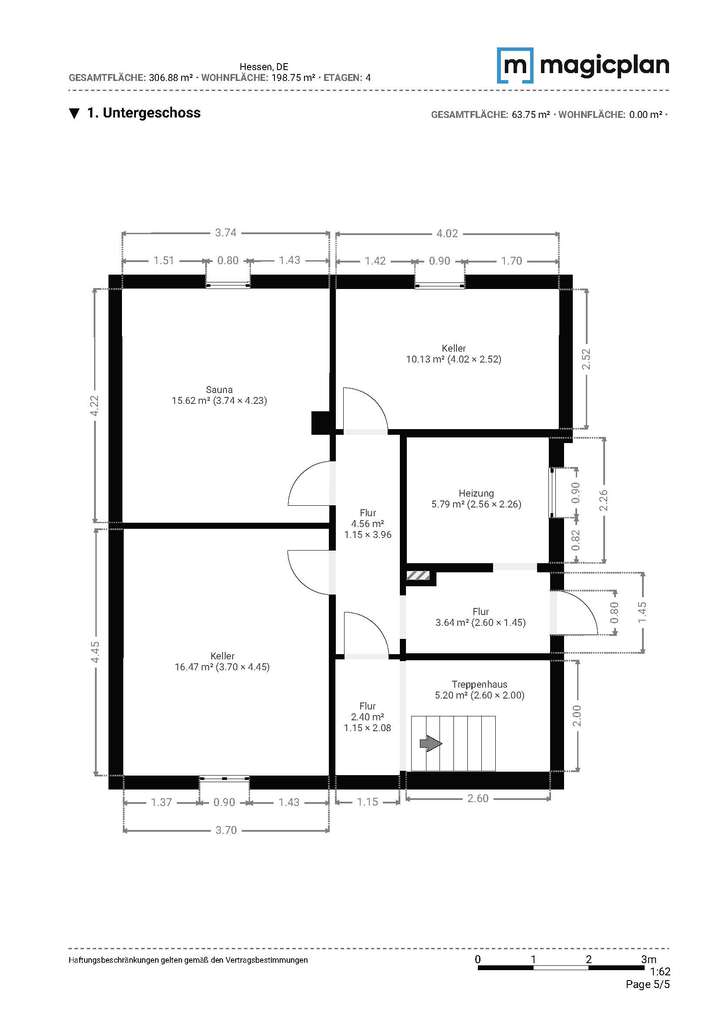
Das Untergeschoss beeindruckt mit zwei geräumigen Kellerräumen, einem Heizungsraum und einer Sauna mit Aufenthaltsraum und Außendusche sowie einem separaten Zugang in den Garten. Es ist die perfekte Kombination aus Stauraum, Funktionalität und Erholungsmöglichkeiten.
Der nach Süden ausgerichtete Garten ist gepflegt, äußerst sichtgeschützt und mit seiner Beleuchtung und einem kleinen Quellstein/Springbrunnen sehr liebevoll angelegt. Aufgrund seiner idealen Ausrichtung bietet er Ihnen bei schönem Wetter von mittags bis abends zahlreiche Sonnenstunden. Er ist sowohl über die Terrasse als auch über die Stellplätze als auch über einen Seitenweg vom Vorgarten aus zugänglich und lädt zu entspannten Stunden im Grünen ein. Zwei geräumige Garagen mit Sektionaltoren sowie zusätzlicher Platz für zwei Stellplätze runden dieses attraktive Angebot ab.
Gepflegtes Ein-/ Zweifamilienhaus mit ausgebautem DG, Garten und zwei Garagen
63263 Neu-Isenburg
Die vollständige Adresse der Immobilie erhalten Sie vom Anbieter.
Auf Karte anzeigen
Die vollständige Adresse der Immobilie erhalten Sie vom Anbieter.
Finanzierungszertifikat
In nur zwei Minuten zu Ihrem persönlichen Finanzierungszertifkat.
Infos
| Haustyp | Doppelhaushaelfte |
|---|---|
| Wohnfläche ca. | 198 m2 |
| Nutzfläche | 58,62 m2 |
| Grundstücksfläche | 426 m2 |
| Bezugsfrei ab | Nach Vereinbarung |
| Zimmer | 5 |
| Schlafzimmer | 4 |
| Badezimmer | 2 |
| Garage/Stellplatz | Garage |
| Anzahl Garage/Stellplatz | 4 |
Kosten
| Kaufpreis |
874.900 € |
|---|---|
| Provision |
3,57 % inkl. MwSt. Käuferprovision beträgt 3,57 % (inkl. MwSt.) des beurkundeten Kaufpreises |
Finanzierungsrechner:
Kaufpreis:
600.000 €
Eigenkapital:
600.000 €
Monatliche Rate
0 €
Effektiver Jahreszins
0 %
Sollzinsbindung
10 Jahre
Bausubstanz & Energieausweis
| Baujahr | 1957 |
|---|---|
| Bauphase | Haus fertig gestellt |
| Objektzustand | Gepflegt |
| Qualität der Austattung | Normal |
| Heizungsart | Zentralheizung |
| Wesentliche Energieträger | Gas |
| Energieausweis | liegt vor |
| Energieausweistyp | Bedarfsausweis |
| Energieverbrauchskennwert | 256,1 kWh/(m²*a) |
| Energieeffizienzklasse | H |
256,1
kWh/(m²*a)
Energieeffizienzklasse H
- A+
- A
- B
- C
- D
- E
- F
- G
- H
- 0
- 25
- 50
- 75
- 100
- 125
- 150
- 175
- 200
- 225
- >250
Beschreibung des Objekts
Ausstattung
- Wohnfläche: ca. 199,00 m²
- Nutzfläche: ca. 59,00 m²
- Grundstücksfläche: ca. 426,00 m²
- Baujahr: ca. 1957
- Etagen: 3 (EG, OG, DG)
- Keller: Ja (mit separatem Zugang in den Garten)
- Dach: Satteldach mit zwei großen Gauben
- Zimmer: 5
- Schlafzimmer: 4
- Wohn- und Esszimmer: 1
- Badezimmer: 2
- Gäste-WC: 1
- Balkon: Ja
- Terrasse: Ja (mit Überdachung, Deckenbeleuchtung und Stromanschluss)
- Garten: Ja (mit Beleuchtung, Bewässerung und Quellstein/Springbrunnen)
- Vorgarten/Hof: Ja (Weg aus Basalt-Pflastersteinen)
- Hauseingang: Überdachung mit Echtschiefer
- Rolltor zur Einfahrt mit Edelstahlelement (elektrisch mit Fernbedienung)
- Treppenaufgang: Holz mit Graniteinlage und Edelstahlgeländer
- Bodenbelag: Fliesen, Granit (Sado Bianco), Kork, Parkett, Teppichboden, Vinyl
- Wände innen: Glasfasertapete, Raufasertapete
- Decke innen: Raufasertapete, Holzverkleidung
- Fenster: 2-fach isolierverglaste Kunststofffenster (1996-2007)
- Rollladen: Ja (Kunststoff, elektrisch betrieben)
- Küche: hochwertige Einbauküche mit Markengeräten von Siemens
- Kamin: Ja (Wandkamin, offen mit Glasscheibe)
- Heizung: Gas-Zentralheizung (2019)
- Solaranlage: Ja (mit Einspeisevergütung)
- Alarmanlage: Ja
- Sauna: Ja (mit Aufenthaltsraum und Außendusche)
- Garage: Ja (mit Sektionaltoren)
- Anzahl: 2
- Außenstellplatz: Ja
- Anzahl: 2
- Hervorragende Verkehrsanbindung zu sämtlichen Autobahnen, Bussen, Bahnen und dem Frankfurter Flughafen
Lage
Das angebotene Objekt befindet sich in zentraler Lage von Neu-Isenburg, einem der attraktivsten Standorte von Neu-Isenburg und sehr beliebt im Rhein-Main-Gebiet.
Mit seiner erstklassigen Wohnlage sind die Autobahnen A3, A5 und A661 in 5-7 sowie die Innenstadt von Frankfurt am Main und der internationale Flughafen in 10-15 Autominuten erreichbar. Gleichzeitig befinden sich Wälder und Wiesen in unmittelbarer Nähe zum Objekt, sodass ruhigen und erholsamen Spaziergängen nichts im Wege steht. Insgesamt wird das Objekt somit jedem Anspruch gerecht und es muss kein Wunsch offen bleiben. Sie können in einer angenehmen Umgebung schnell dem Alltag entfliehen, sich entspannen und die Nähe der Natur suchen.
Gleichzeitig erreichen sie die internationale Metropole Frankfurt am Main mit ihrem pulsierenden und aufregenden Leben sowie zahlreichen Einkaufsmöglichkeiten in weniger als 15 Minuten mit dem Auto, der Bahn oder dem Bus. Diverse Freizeitmöglichkeiten sowie Geschäfte aller Art für den täglichen Bedarf finden Sie fußläufig in unmittelbarer Umgebung.
Sonstige Angaben
GELDWÄSCHE: Als Immobilienmaklerunternehmen ist die Main Estate Immobilien GmbH nach § 2 Abs. 1 Nr. 14 und § 11 Abs. 1, 2 Geldwäschegesetz (GwG) dazu verpflichtet, bei der Begründung einer Geschäftsbeziehung bzw. sobald ein ernsthaftes Interesse an der Durchführung des Immobilienkaufvertrages besteht, die Identität des Vertragspartners festzustellen und zu überprüfen. Hierzu ist es erforderlich, dass wir, wenn Sie als natürliche Person handeln, nach § 11 Abs. 4 GwG die relevanten Daten Ihres Personalausweises festhalten - beispielsweise mittels einer Kopie. Bei einer juristischen Person benötigen wir eine Kopie des Handelsregisterauszugs, aus welchem der wirtschaftlich Berechtigte hervorgeht. Das Geldwäschegesetz sieht vor, dass der Makler die Kopien bzw. Unterlagen fünf Jahre aufbewahren muss. Als unser Vertragspartner haben Sie auch eine Mitwirkungspflicht nach § 11 Abs. 6 GwG.
HAFTUNG: Wir weisen darauf hin, dass die von uns weitergegebenen Objektinformationen, Unterlagen, Pläne etc. vom Verkäufer bzw. Vermieter stammen. Eine Haftung für die Richtigkeit oder Vollständigkeit der Angaben übernehmen wir daher nicht. Es obliegt daher unseren Kunden, die darin enthaltenen Objektinformationen und Angaben auf ihre Richtigkeit hin zu überprüfen. Alle Immobilienangebote sind freibleibend und vorbehaltlich Irrtümer, Zwischenverkauf- und Vermietung oder sonstiger Zwischenverwertung.
HINWEIS: Sollten mehrere Kaufzusagen zur angebotenen Immobilie / Grundstück vorliegen, hält sich der Eigentümer das Recht vor, von einem Verkaufsangebot auf ein Bieterverfahren zu wechseln.
EIGENTÜMERSERVICE: Planen Sie den Verkauf oder die Vermietung Ihrer Immobilie, so ist es für Sie wichtig, deren Marktwert zu kennen. Lassen Sie kostenfrei und unverbindlich den aktuellen Wert Ihrer Immobilie professionell durch uns einschätzen. Unser professionelles Netzwerk ermöglicht es uns, Verkäufer bzw. Vermieter und Interessenten bestmöglich zusammenzuführen.
Weitere Dokumente
Grundriss KellerGrundriss Erdgeschoss
Grundriss Obergeschoss
Grundriss Dachgeschoss
Grundriss
Grundriss Keller
>
>
Grundriss Erdgeschoss
>
>
Grundriss Obergeschoss
>
>
Grundriss Dachgeschoss
>
>
Adresse
63263 Neu-Isenburg
Interessante Orte
Preis- und Lageinformationen
Preistrend für Bestandsimmobilien in Neu-Isenburg