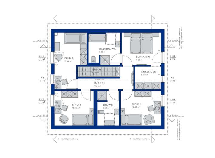
Das Bien-Zenker Haus EVOLUTION 162 ist ein Meisterwerk der individuellen Architektur, das speziell nach Ihren Wünschen und Vorstellungen gestaltet wird. Mit einer großzügigen Wohnfläche von 162 m² und einer durchdachten Raumaufteilung auf 1,5 Etagen bietet dieses Fertighaus ausreichend Platz für Ihre Familie. Das innovative Designkonzept ermöglicht es Ihnen, verschiedene Dachformen und Architektur-Bauteile zu kombinieren, sodass Ihr neues Zuhause nicht nur funktional, sondern auch ästhetisch ansprechend ist. Die drei Schlafzimmer und das Badezimmer sind ideal aufgeteilt, um Rückzugsmöglichkeiten und Privatsphäre zu gewährleisten, während die offene Gestaltung des Wohnbereichs für ein einladendes Ambiente sorgt.
Neben der durchdachten Raumaufteilung begeistert das EVOLUTION 162 mit einer großzügigen Terrasse, die Ihnen eine perfekte Möglichkeit bietet, die Sonne und die Natur zu genießen. Die lichtdurchfluteten Räume schaffen eine angenehme Wohnatmosphäre und tragen zu einem hohen Wohlfühlfaktor bei. Der technische Innenausbau, der von Bien-Zenker übernommen wird, sorgt dafür, dass Sie sich auf die wirklich wichtigen Dinge konzentrieren können, während Sie gleichzeitig die Möglichkeit haben, Ihre persönlichen Akzente bei Böden, Malerarbeiten und Sanitärinstallationen zu setzen.
Die Ausbaustufe, die Ihnen angeboten wird, beinhaltet den Rohbau sowie den technischen Innenausbau. Dabei profitieren Sie von den hohen Standards des Qualitätssiegels QNG, das für Nachhaltigkeit und Energieeffizienz steht. Dies bedeutet, dass Sie nicht nur ein modernes und komfortables Zuhause erhalten, sondern auch von Fördermöglichkeiten profitieren können. Diese Lösung ist ideal für Bauherren, die Eigenleistung einbringen möchten, ohne auf den Komfort eines schlüsselfertigen Hauses zu verzichten.
Bien-Zenker ist mehr als nur ein Hausbauer. Mit über 115 Jahren Erfahrung und mehr als 80.000 gebauten Häusern hat sich Bien-Zenker als einer der führenden Anbieter in Deutschland etabliert. Jedes Haus wird mit Leidenschaft und Expertise geplant, um den individuellen Bedürfnissen der Baufamilien gerecht zu werden. Ihr neues Zuhause wird nicht nur aus wohngesunden Materialien gebaut, sondern auch zukunftssicher gestaltet, damit Sie und Ihre Familie sich in den kommenden Jahren wohlfühlen können.
Grundrisse und Abbildungen können Extras zeigen. Flächenangaben nach DIN 277.
Modernes Niedrigenergiehaus
31311 Uetze
Die vollständige Adresse der Immobilie erhalten Sie vom Anbieter.
Auf Karte anzeigen
Die vollständige Adresse der Immobilie erhalten Sie vom Anbieter.
Finanzierungszertifikat
In nur zwei Minuten zu Ihrem persönlichen Finanzierungszertifkat.
Infos
| Etagenzahl | 1 |
|---|---|
| Wohnfläche ca. | 162 m2 |
| Grundstücksfläche | 580 m2 |
| Zimmer | 7 |
| Schlafzimmer | 3 |
| Badezimmer | 1 |
Kosten
| Kaufpreis |
522.500 € |
|---|---|
| Provision | Nein |
Finanzierungsrechner:
Kaufpreis:
600.000 €
Eigenkapital:
600.000 €
Monatliche Rate
0 €
Effektiver Jahreszins
0 %
Sollzinsbindung
10 Jahre
Bausubstanz & Energieausweis
| Baujahr | 2027 |
|---|---|
| Bauphase | Haus in Planung (projektiert) |
| Heizungsart | Wärmepumpe |
Beschreibung des Objekts
Ausstattung
Der Grundriss des EVOLUTION 162 überzeugt durch seine durchdachte Aufteilung. Mit drei Schlafzimmern bietet das Haus genügend Raum für eine Familie, während das große Badezimmer Entspannung und Komfort verspricht. Die offene Gestaltung des Wohnbereichs schafft eine harmonische Verbindung zwischen den verschiedenen Lebensbereichen und sorgt für ein großzügiges Raumgefühl. Das gesamte Erdgeschoss wird zu einem zentralen Treffpunkt, der sowohl für gesellige Abende als auch für ruhige Familienmomente einlädt.
Komfortdetails wie die großzügige Terrasse erweitern den Wohnraum nach außen und laden dazu ein, die warmen Sommerabende im Freien zu genießen. Lichtdurchflutete Räume, die durch große Fensterfronten entstehen, schaffen eine angenehme Atmosphäre und vereinen die Natur mit Ihrem Wohnraum. Der technische Innenausbau gewährleistet nicht nur Funktionalität, sondern auch eine zeitgemäße Ausstattung, die Ihren Lebensstil bereichert. Abstellräume bieten zusätzlichen Stauraum, sodass Ihr Zuhause stets ordentlich und aufgeräumt bleibt.
Die Ausbaustufe, die bei diesem Modell gewählt werden kann, ermöglicht Ihnen, den Rohbau und den technischen Innenausbau von Bien-Zenker erledigen zu lassen. Dies bedeutet, dass Sie sich um Böden, Malerarbeiten und Sanitärinstallationen kümmern, während die Kernstruktur bereits fertiggestellt ist. Diese Herangehensweise bietet Ihnen die Freiheit, Ihr Zuhause nach Ihren Vorstellungen zu gestalten, ohne auf die Unterstützung eines erfahrenen Bauunternehmens verzichten zu müssen. Gleichzeitig erfüllt das Haus die Anforderungen des Qualitätssiegels QNG für Nachhaltigkeit, was Ihnen zusätzliche Vorteile in Bezug auf Energieeffizienz und mögliche Förderungen bietet.
Lage
Der Ort bietet Ihnen eine hervorragende Lebensqualität, die durch die vielfältigen Möglichkeiten in der Umgebung unterstützt wird. In der Nähe finden Sie eine Vielzahl von Bildungseinrichtungen, die von Kindergärten bis hin zu Schulen reichen, wodurch Ihr zukünftiges Zuhause ideal für Familien ist. Auch die Gesundheitsversorgung ist durch nahegelegene Arztpraxen und Apotheken bestens gewährleistet. Einkaufsmöglichkeiten sind ebenfalls in unmittelbarer Nähe vorhanden, sodass Sie Ihre täglichen Besorgungen schnell und bequem erledigen können.
Freizeitmöglichkeiten sind in der Umgebung reichlich vorhanden. Ob Sportvereine, Parks oder Wanderwege - hier ist für jeden etwas dabei. Die gute Anbindung an den öffentlichen Nahverkehr sowie die Nähe zur Autobahn ermöglichen Ihnen zudem eine unkomplizierte Erreichbarkeit der umliegenden Städte und der wunderschönen Natur, die die Region zu bieten hat. So können Sie das Beste aus beiden Welten genießen: die Ruhe eines idyllischen Wohnortes und die Nähe zu urbanen Angeboten.
Adresse
31311 Uetze
Interessante Orte
Preis- und Lageinformationen
Preistrend für Bestandsimmobilien in Uetze