Dieses attraktive Energiespar-Haus erfüllt alle Anforderungen, die Bauherren an Wohnfläche -
Ausstattung - und aktuellste Wärmeschutztechnik stellten.
Alle unsere Häuser verfügen bereits in der Basisvariante über Fenster mit neuester
3-fach Wärmeschutzverglasung und Vollwärmeschutz-Dämmung an der Außenfassade.
Dieser Haustyp besticht weiterhin durch ein sensationelles Preis- / Leistungverhältnis.
Im Angebot enthalten : Baugrundstück mit projektiertem - AUSBAUHAUS - inklusive Bodenplatte sowie die Architekten-Leistung u. Bauantrags-Erstellung - Errichtung und Fertigstellung nach Absprache.
Natürlich ist auch die Erstellung eines unserer über 100 anderen Hausmodelle in den Größen 100 - 220 m² - in verschiedenen Ausbaustufen bis zur Fertig-Option - auf diesem oder Ihren eigenen Wunsch-Grundstück möglich.
- über 850 fertiggestellte Häuser in der Oberpfalz - Referenzliste auf Wunsch
- Besichtigung nach Absprache möglich - sprechen Sie mit unseren Bauherren
- Seit über 40 Jahre Produktion von Qualitätshäusern in Deutschland
- für Ihre Planungs-Sicherheit - 15 Monate Festpreisgarantie
- Bezahlung des Hauses erst nach Montage und Abnahme/Freigabe durch Sie
- Montage des Hauses innerhalb von 2-4 Tagen
- Alle unsere Häuser können wir Ihnen als förderfähige KfW-Effizienzhäuser anbieten
- 30 Jahre Gewährleistung auf Grundkonstruktion
- Nachweislich gesundes Bauen: TÜV-Siegel "Toxproof"
- Sicherheit und Gewährleistung eines deutschen Großunternehmens
- mehr als 300 Grundstücke in der Oberpfalz provisionsfrei für massa-Kunden zur Auswahl
Wir würden uns freuen, Sie zu einem kostenlosen und unverbindlichen Beratungs-Besichtigungstermin in unserem Musterhaus mit modernster Heizung begrüßen zu dürfen.
92256 Hahnbach – bei Amberg – Lohweg 24 a
Öffnungszeiten/Besichtigung/Beratung: Montag - Samstag - jederzeit nach telefonischer Absprache.
Tel: 09622/704015 - 0176/57771991
...
Traumhaus im Stil der Toskana - mit TÜV-Zertifikat !!
92718 Schirmitz
Die vollständige Adresse der Immobilie erhalten Sie vom Anbieter.
Auf Karte anzeigen
Die vollständige Adresse der Immobilie erhalten Sie vom Anbieter.
Finanzierungszertifikat
In nur zwei Minuten zu Ihrem persönlichen Finanzierungszertifkat.
Infos
| Haustyp | Einfamilienhaus |
|---|---|
| Wohnfläche ca. | 176 m2 |
| Grundstücksfläche | 513 m2 |
| Zimmer | 5 |
Kosten
| Kaufpreis |
359.999 € |
|---|---|
| Provision | Nein |
Finanzierungsrechner:
Kaufpreis:
600.000 €
Eigenkapital:
600.000 €
Monatliche Rate
0 €
Effektiver Jahreszins
0 %
Sollzinsbindung
10 Jahre
Bausubstanz & Energieausweis
| Baujahr | 2025 |
|---|---|
| Bauphase | Haus in Planung (projektiert) |
Beschreibung des Objekts
Ausstattung
Im Kaufpreis sind enthalten:
das Baugrundstück, die Bodenplatte sowie natürlich das traumhafte AUSBAUHAUS in Top-Qualität vom deutschen Marktführer für Ausbauhäuser.
Selbstverständlich bieten wir Ihnen das Haus auch in unterschiedlichen Ausbaustufen bis zur
" Fast fertig Option " an - fragen Sie uns danach.
Lage
Sehr ruhige sonnige Lage - ideal für Kinder !!
Sonstige Angaben
- Deutschland`s meistverkaufte Ausbauhäuser
- Über 40 Jahre Bauerfahrung
- 15 Monate Festpreisgarantie
- Bezahlung des Hauses nach Montage/Abnahme
- Montage innerhalb von 2-4 Tagen
- profesionelle Ausbau-Beratung vor Ort
- 30 Jahre Gewährleistung auf Grundkonstruktion
- Nachweislich gesundes Bauen: TÜV-Siegel "Toxproof"
- Sicherheit eines deutschen Großunternehmens
- über 850 fertiggestellte Häuser in der Oberpfalz - Referenzliste auf Wunsch
- Besichtigung nach Absprache möglich - sprechen Sie mit unseren Bauherren
- mehr als 300 Grundstücke in der Oberpfalz provisionsfrei zur Auswahl
Gerne unterstützen wir Sie bei Finanzierung - Fördermittel und Bauplatzsuche.
Fragen Sie uns auch nach staatlichen Wohnbauförderungen für junge Familien!!!
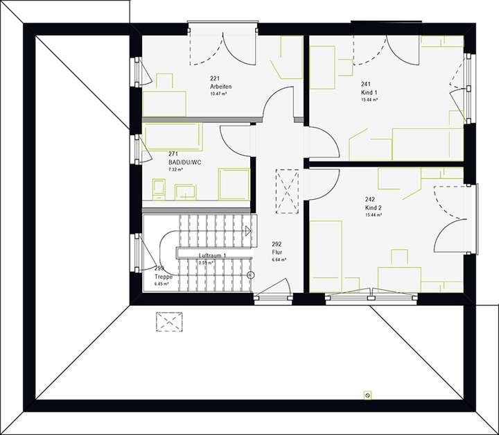
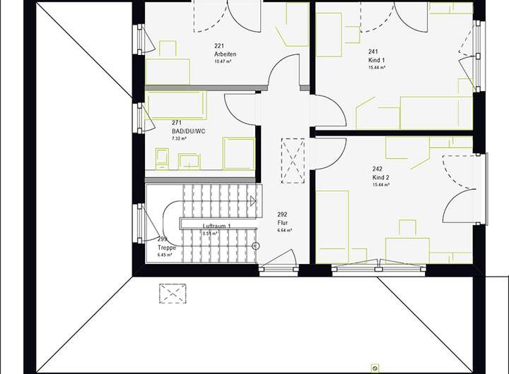
Grundriss
Erdgeschoss - frei planbar
>
>
Dachgeschoss - frei planbar
>
>
Adresse
92718 Schirmitz
Interessante Orte
Preis- und Lageinformationen
Preistrend für Bestandsimmobilien in Schirmitz