Dieses großzügige Mehrfamilienhaus, erbaut im Jahr 1979, überzeugt durch seine solide Bauweise, eine angenehme Wohnatmosphäre und einen unverbaubaren Fernblick, der jeden Tag aufs Neue begeistert.
Das Apartment selbst besticht durch lichtdurchflutete Räume und eine durchdachte Aufteilung. Der kombinierte Wohn- und Kochbereich mit ca. 23 m² bietet ein offenes, wohnliches Ambiente.
Auf dem Balkon, der den Wohnbereich ergänzt, genießt man einen unverbaubaren Fernblick ins Grüne.
Das 7 qm große Badezimmer ist mit Dusche ausgestattet und hat ebenfalls Zugang zu einem weiteren Balkon.
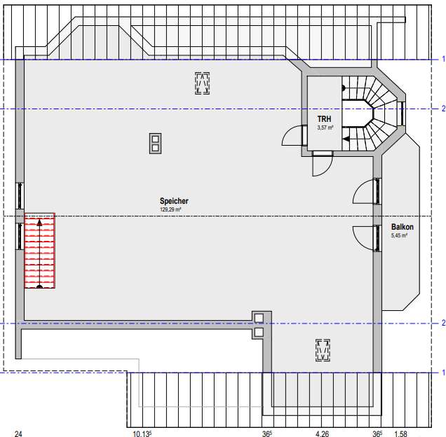
Über die Treppe im Wohnbereich gelangt man in das Speichergeschoß; diese wird Wohnung neu zugeschlagen und ist individuell ausbaubar. Das Speichergeschoss hat ebenfalls noch einen weiteren Balkon und einen direkten Zugang ins Treppenhaus.
Hier stehen Ihnen zusätzliche ca. 130 m² Fläche zur Verfügung – ob als großzügiger Wohnraum, Atelier, Homeoffice, Hobbybereich oder individuelle Ausbaureserve. Diese außergewöhnliche Erweiterungsmöglichkeit eröffnet vielfältige Perspektiven und macht das Angebot besonders attraktiv.
Charmante Maisonette-Wohnung mit Fernblick
93309 Kelheim
Die vollständige Adresse der Immobilie erhalten Sie vom Anbieter.
Auf Karte anzeigen
Die vollständige Adresse der Immobilie erhalten Sie vom Anbieter.
Finanzierungszertifikat
In nur zwei Minuten zu Ihrem persönlichen Finanzierungszertifkat.
Infos
| Wohnungskategorie | Etagenwohnung |
|---|---|
| Etage | 2 von 3 |
| Wohnfläche ca. | 175 m2 |
| Nutzfläche | 175 m2 |
| Zimmer | 2 |
| Schlafzimmer | 1 |
| Badezimmer | 1 |
| Garage/Stellplatz | Außenstellplatz |
| Anzahl Garage/Stellplatz | 1 |
Kosten
| Kaufpreis |
299.000 € |
|---|---|
| Provision | Nein |
Finanzierungsrechner:
Kaufpreis:
600.000 €
Eigenkapital:
600.000 €
Monatliche Rate
0 €
Effektiver Jahreszins
0 %
Sollzinsbindung
10 Jahre
Bausubstanz & Energieausweis
| Baujahr | 1979 |
|---|---|
| Objektzustand | Gepflegt |
| Qualität der Austattung | Normal |
| Heizungsart | Öl-Heizung |
| Wesentliche Energieträger | Öl |
| Energieausweis | liegt vor |
| Energieausweistyp | Bedarfsausweis |
| Energieverbrauchskennwert | 196,2 kWh/(m²*a) |
Beschreibung des Objekts
Lage
Kelheim liegt unterhalb des Michelsberges, an der Mündung der Altmühl in die Donau bzw. Main-Donau-Kanal zwischen Ingolstadt und Regensburg.
Kurz gesagt; Die perfekte Lage.
Die Kreisstadt in Niederbayern punktet mit zahlreichen Sehenswürdigkeiten. Von der Benediktinerabtei bis zur Befreiungshalle hoch über der Stadt.
Regensburg erreichen Sie in 30, Ingolstadt in 45 Minuten.
Sonstige Angaben
Wir freuen uns auf Ihre Anfrage!
Grundriss
134249149067-2_Ansicht-V
>
>
134249149067-1_Ansicht-V
>
>
Screenshot 2025-12-16 122543
>
>
Screenshot 2025-12-16 122559
>
>
Adresse
93309 Kelheim
Interessante Orte
Preis- und Lageinformationen
Preistrend für Bestandsimmobilien in Kelheim