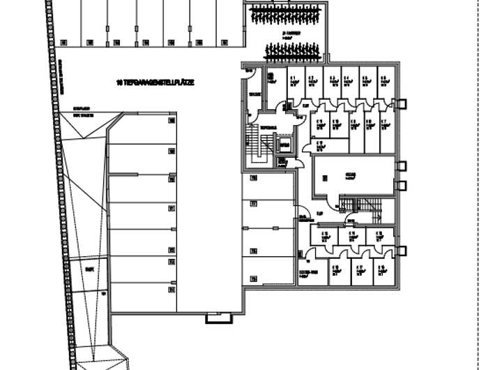
Stilvoll wohnen im ruhigen Westen Augsburgs – dafür steht das neue Wohnprojekt „Westend-Quartier“ in Kriegshaber. In ruhiger Stadtrandlage entstehen an der Ulmer Straße 278 insgesamt 18 modern geschnittene Eigentumswohnungen mit 1- bis 4- Zimmern.
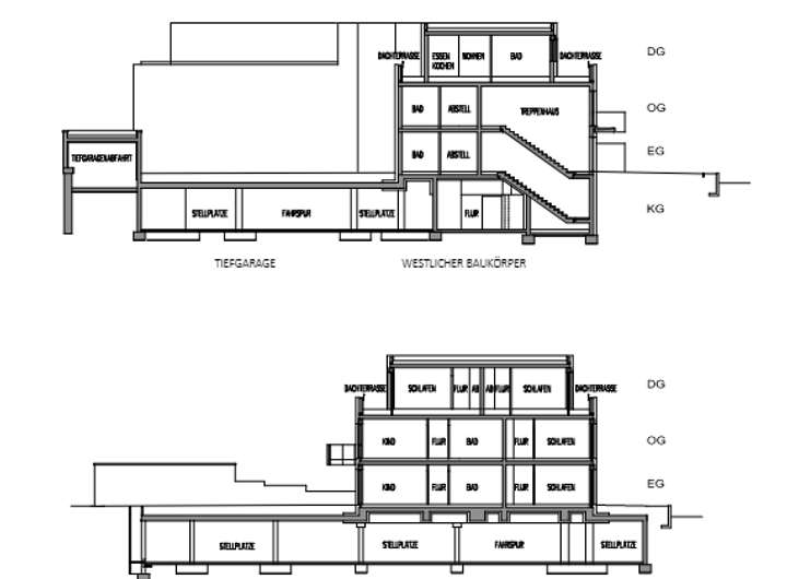
Die ansprechende und zukunftsweisende Architektur mit klaren kubistischen Strukturen erstreckt sich über drei Etagen – Terrassen im grünen Garten, sonnige Balkone oder großzügige Dachterrassen laden zum Verweilen im Freien ein.
Damit sich zukünftige Bewohner auch drinnen besonders wohlfühlen, setzt tfm Wohnbau höchste Maßstäbe, wie gewohnt mit topmoderner Technik und stilvollen Ausstattungselementen.
!!KURZFRISTIG BEZIEHBAR!! Penthouse im Westen von Augsburg
Ulmer Str. 278,
86156 Augsburg
Auf Karte anzeigen
Finanzierungszertifikat
In nur zwei Minuten zu Ihrem persönlichen Finanzierungszertifkat.
Infos
| Wohnungskategorie | Penthouse |
|---|---|
| Etage | 2 von 2 |
| Wohnfläche ca. | 108 m2 |
| Bezugsfrei ab | 2024 |
| Zimmer | 3 |
| Schlafzimmer | 1 |
| Badezimmer | 1 |
| Garage/Stellplatz | Tiefgarage |
Kosten
| Kaufpreis |
878.285 € |
|---|---|
| Provision | Nein |
Finanzierungsrechner:
Kaufpreis:
600.000 €
Eigenkapital:
600.000 €
Monatliche Rate
0 €
Effektiver Jahreszins
0 %
Sollzinsbindung
10 Jahre
Bausubstanz & Energieausweis
| Baujahr | 2024 |
|---|---|
| Objektzustand | Erstbezug |
| Qualität der Austattung | Gehoben |
| Heizungsart | Fußbodenheizung |
| Wesentliche Energieträger | Pelletheizung |
| Energieausweis | liegt vor |
| Energieausweistyp | Bedarfsausweis |
| Energieverbrauchskennwert | 75,6 kWh/(m²*a) |
| Energieeffizienzklasse | C |
75,6
kWh/(m²*a)
Energieeffizienzklasse C
- A+
- A
- B
- C
- D
- E
- F
- G
- H
- 0
- 25
- 50
- 75
- 100
- 125
- 150
- 175
- 200
- 225
- >250
Beschreibung des Objekts
Ausstattung
Ihr neues Zuhause soll genau Ihren Vorstellungen entsprechen? Kein Problem! Sie können innerhalb des Preissegments unserer Baubeschreibung immer zwischen verschiedenen Varianten wählen.
Sie bestimmen z.B. Ihre Fliesen selbst. Mit 35 €/m² Materialwert können Sie bei unseren Vertragspartnern Ihr Bad gestalten. Keramik von Ideal Standard und Armaturen von Hansgrohe bilden mit den Badaccesoires des Herstellers Keuco ein hochwertiges Ensemble zum Wohlfühlen.
Langlebiger und stapazierfähiger Designvinyl in allen Wohn- und Schlafräumen bietet in Sachen Optik fast grenzenlose Möglichkeiten.
Für ein wohliges Raumklima sorgt die Fußbodenheizung mit Einzelraumsteuerung. 3-Scheiben-Isolierverglasung bei den Fenstern schluckt etwaige Geräusche von draußen und bietet Topwerte in Sachen Energieeffizienz.
Lage
Die direkte Nähe zum Universitätsklinikum und die optimale Lage im aufstrebenden Stadtteil Kriegshaber machen die Wohnungen zu einem Juwel für Kapitalanlager und zu einem begehrten Wohntraum für die ganze Familie. Alles, was ein Leben in Augsburg noch angenehmer macht, ist in direkter Nähe zum Westend-Quartier vorhanden – Geschäfte, Restaurants, Grünanlagen, öffentliche Verkehrsmittel und eine optimale Anbindung an B17 und A8.
Sonstige Angaben
Interesse geweckt?
Dann fordern Sie unser aktuelles Exposé an oder vereinbaren Sie gleich einen Termin mit uns. Ihr Ansprechpartner Christian Nayyeri steht Ihnen jederzeit gerne unter 0821-440170-20 oder 0176-24067056 zur Verfügung.
Besuchen Sie uns auch gerne in unserer Musterwohnung vor Ort in der Ulmer Straße 278 a in Augsburg. Wir sind jeden Sonntag von 10:00 - 12:00 Uhr für Sie vor Ort.
Wir freuen uns auf Ihre Anfrage!
Weitere Dokumente
GrundrissAdresse
Ulmer Str. 278, 86156 Augsburg
Interessante Orte
Preis- und Lageinformationen
Preistrend für Bestandsimmobilien in Kriegshaber