Zum Hauptinhalt springen
1/13
2/13
3/13
4/13
5/13
6/13
7/13
8/13
9/13
10/13
11/13
12/13
13/13

Großes Baugrundstück mit Rohbau in Todtmoos

79682 Todtmoos
Die vollständige Adresse der Immobilie erhalten Sie vom Anbieter.
Auf Karte anzeigen
Logo ImmoScout24 Logo ImmoScout24
PDF Finanzierungszertifikat

Finanzierungszertifikat

In nur zwei Minuten zu Ihrem persönlichen Finanzierungszertifkat.

  • Zur Vorlage beim Makler oder Verkäufer
  • Vorteile gegenüber anderen Kaufinteressenten
  • Kostenlos und unverbindlich
Finanzierungszertifikat anfragen

Infos

Vermarktungsart Kaufen
Grundstücksfläche 789 m2
Erschließung Erschlossen
Bebaubar nach Bebauungsplan

Kosten

Miete pro Jahr 150.000 €
Provision 3,57 % inkl. MwSt.
Käuferprovision inklusive Mehrwertsteuer

Finanzierungsrechner:

Kaufpreis: 600.000 €

Eigenkapital: 600.000 €
Monatliche Rate 0 €
Effektiver Jahreszins 0 %
Sollzinsbindung 10 Jahre

Beschreibung des Objekts

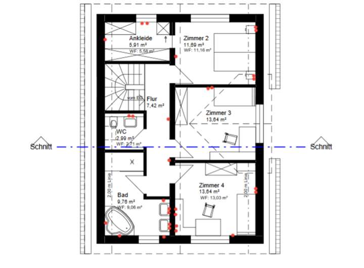
                Großes Baugrundstück mit Baugenehmigung für den Bau von Zweifamilienhaus mit zwei Garagen an guter ruhiger  und naturnahen Lage in Todtmoos. 
Ein Haus sowie zwei Garagen wurden bereits teilweise fertiggestellt in Massivbauweise. (Rohbau)
            

Lage

                Ruhige und naturnahe Lage in Todtmoos, sehr familienfreundlich, gute Verkehrsanbindung nach Schopfheim, Lörrach und Schweiz
                

Sonstige Angaben

                Interessant für Eigennutzer oder als Kapitalanlage
           

Adresse

79682 Todtmoos

Interessante Orte

Bäckereien
Schulen
Ärzte

Ansprechpartner