Hervorragendes, 840 m² großes, sehr gut bebaubares Grundstück mit rechteckigem Zuschnitt bietet die Möglichkeit, das hier projektierte Einfamilienhaus zu errichten.
Die hier projektierte wunderschöne Stadtvilla verfügt über 162 qm Fläche im Erd- und Obergeschoss.
Die Fassaden können frei gewählt werden und sind aus Putz oder / und Steinplatten, Glasplatten, Holzverkleidung möglich.
In jeder Ausführung erreicht das Haus den sogenannten „Selbstversorger-Standard“. Damit erzeugt das Haus selbst die Energie für die Heizung (Fußbodenheizung), für die Warmwasserbereitung und sogar für den Haushaltsstrom. Erreicht wird diese extreme Besonderheit durch eine Gebäudehülle mit minimalen Endenergiebedarf und einer Viessmann Komplettanlage bestehend aus PV-(Photovoltaik) Anlage im Dachbereich und einer Wärmepumpe mit Energiespeicher.
Durch diese besonderen Eigenschaften der CO2-neutralen Engergieversorgung wird dieses Haus mit Darlehen und Zuschüssen ohne Rückzahlungen gefördert. QNG-Zertifizierung ist enthalten.
Weitere Details zur Technik und zur Förderung erhalten Sie in einem Beratungsgespräch.
Das Haus und der Grundriss können völlig frei in der Architektenplanung gestaltet werden.
0,- EUR Energiekosten Haus mit hervorragendem Grundstück in Groß Glienicke
14476 Potsdam
Die vollständige Adresse der Immobilie erhalten Sie vom Anbieter.
Auf Karte anzeigen
Die vollständige Adresse der Immobilie erhalten Sie vom Anbieter.
Finanzierungszertifikat
In nur zwei Minuten zu Ihrem persönlichen Finanzierungszertifkat.
Infos
| Etagenzahl | 2 |
|---|---|
| Wohnfläche ca. | 162 m2 |
| Grundstücksfläche | 840 m2 |
| Bezugsfrei ab | 2025 |
| Zimmer | 5 |
| Schlafzimmer | 4 |
| Badezimmer | 1 |
Kosten
| Kaufpreis |
1.205.000 € |
|---|---|
| Provision | Nein |
Finanzierungsrechner:
Kaufpreis:
600.000 €
Eigenkapital:
600.000 €
Monatliche Rate
0 €
Effektiver Jahreszins
0 %
Sollzinsbindung
10 Jahre
Bausubstanz & Energieausweis
| Bauphase | Haus in Planung (projektiert) |
|---|---|
| Objektzustand | Erstbezug |
| Qualität der Austattung | Gehoben |
| Heizungsart | Fußbodenheizung |
| Wesentliche Energieträger | Bioenergie |
| Energieausweis | liegt vor |
Beschreibung des Objekts
Ausstattung
Im projektierten Haus ist. eine hochwertige und äußerst umfangreiche Ausstattung enthalten, welche u.a. Fußbodenheizung, Malerarbeiten, großformatige Feinsteinplatten, Überspannungs- und Blitzschutzanlage, Vollversorgung des Hauses mit. eigener. Energie, RC2-Einbruchschutz in allen Etagen, Türen und Fenstern. CAT6/7 Netzwerkverkabelung im gesamten Haus.
Im kalkuliertem Preis ist das Grundstück als Verkaufspreis, das Haus mit einer hochgedämmten Bodenplatte aus Beton und bezugsfertiger Ausstattung des Erd- und Obergeschosses enthalten.
Im Preis enthalten sind fertig ausgestattete Bäder mit bodenebener Dusche, hochwertiger Sanitär-Keramik und Armaturen, ebenso sämtliche Bodenbeläge, Fliesen und Feinsteinbeläge, komplette Malerarbeiten an allen Decken und Wänden im EG und DG, sowie eine Einbauküche (Made in Germany) inkl. hochwertiger Einbaugeräten von Bosch (alternativ Miele).
Sämtliche Fenster haben Sicherheits-Rollläden mit elektrischem Antrieb und Steuerung.
Die Bebauung mit einem kleineren oder größerem Haus oder einem Haus mit Vollunterkellerung anstelle Bodenplatte ist ebenfalls möglich.
In dieses herrliche KAMPA-Haus können Sie direkt einziehen, denn es ist im Leistungsumfang bezugsfertig.
Lage
Potsdams Ortsteil Groß Glienicke liegt Nahe der Stadtgrenze Berlin (Kladow) und zeichnet sich aus durch eine wunderschöne Natur mit zwei Badeseen. und einem großen Waldgebiet.
I
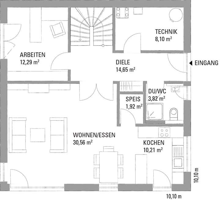
Grundriss
setros_1.1621_EG_mh_Grundriss
>
>
setros_1.1621_OG_Grundriss
>
>
Adresse
14476 Potsdam
Interessante Orte
Preis- und Lageinformationen
Preistrend für Bestandsimmobilien in Groß Glienicke