Objekt: Das Grundstück ist mit einem massiven viergeschossigen Mehrfamilienhaus bebaut. Auf dem Innenhof steht ein kleines Nebengebäude mit Vordach, das als Abstellfläche dient.
Das voll unterkellerte Mehrfamilienhaus wurde 1902 errichtet und in den Jahren 2002 bis 2004 saniert. 2017 wurde das Dachgeschoss ausgebaut. Das Gebäude besteht derzeit aus fünf Wohnungen. Wobei die Wohnung im 3. Obergeschoss als Maisonettewohnung genutzt wird. Die Wohnung im Dachgeschoss ist auch separat nutzbar, da sie direkt über eine Treppe mit dem Hausflur verbunden ist. Die Gesamtwohnfläche des Hauses beträgt ca. 380m².
Von der Straße aus führt ein Hausflur bis zum Ausgang in den Innenhof. Rechts und links vom Hausflur liegen die beiden im Erdgeschoss befindlichen Einraumwohnungen. Die Wohnung links hat eine Wohnfläche von ca. 26 m² und unterteilt sich in eine Küche, ein Bad mit Dusche und WC und ein Wohn- und Schlafraum. Die Fußböden sind mit Dielen belegt. Das Bad ist gefliest. Die Wohnung rechts hat eine Größe von ca. 39 m². Sie besteht aus einem Flur, einer Wohnküche, einem Schlafraum mit direktem Zugang in den Innenhof, mit kleiner Sitzecke. Die Wohnung verfügt auch über einen separaten Kaminofen als zusätzlicher Heizquelle und ein Bad mit Wanne, WC und Waschbecken. Die Raumhöhe in der Geschossebene beträgt ca. 2,90 m.
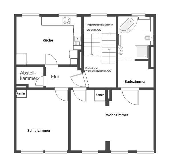
Das I. Obergeschoss wird über eine Holztreppe erreicht, die weiter bis ins Dachgeschoss verläuft. Im I. Obergeschoss ist eine große Wohnung angeordnet, die rechts vom Hausflur aus begangen werden kann. Sie hate eine Wohnfläche von ca. 76 m² und verfügt über einen Flur, zwei große Wohn- oder Schlafräume, einen Abstellraum, ein Wannenbad mit Dusche WC und Waschtisch und eine große Küche. Die Raumhöhe beträgt in dieser Etage 2,80 m. Die Böden sind mit Dielen ausgestattet das Bad ist gefliest. Es stehen neben der Zentralheizung zwei Kachelöfen zur Verfügung.
Im II. Obergeschoss ist die Fläche in eine links und eine rechts liegende Zweiraumwohnung aufgeteilt. Die linke Zweiraumwohnung hat eine Wohnfläche von ca. 40 m² mit einer Küche, mit einem Duschbad, sowie einem Wohn- und einem Schlafraum. Die rechte Zweiraumwohnung mit Ihren ebenfalls ca. 40 m² Wohnfläche besitzt ein großes Wohnzimmer, ein kleines Schlafzimmer und eine kleine Küche. Weiterhin besitzt sie einen kleinen Flur und ein Wannenbad mit WC und Waschbecken. Die Raumhöhe dieser Etage liegt ebenfalls bei 2,80 m. Auch hier stehen in den Wohnungen Kaminöfen zur Verfügung. Die Fußböden haben Dielen bzw. die Bäder sind gefliest.
Das III. Obergeschoss verfügt über eine Wohnung, die über die ganze Etage verläuft. Gleichzeitig verfügt sie über einen direkten Zugang zu dem 2017 ausgebautem Dachgeschoss. Die Wohnfläche beider Etagen beträgt zusammen ca. 157 m, davon ca. 80 m² im III. Obergeschoss und ca. 78 m² im Dachgeschoss. Beide Wohnebenen sind durch eine in der Wohnung liegende Holztreppe verbunden, können aber auch separat über die Treppe im Hausflur erreicht werden. Im III. Obergeschoss liegen ein Großes Wannenbad, ein Wohnzimmer mit Kaminofen, eine große Küche und ein Speisezimmer. Auch hier beträgt die Raumhöhe ca. 2,80 m. Über die Holztreppe im Wohnzimmer ist das Dachgeschoss erreichbar. Hier stehen 3 Zimmer, ein Flur, eine Diele, ein WC mit Waschbecken und eine sehr schöne Dachterrasse zur Verfügung. Von der in Südostrichtung liegenden Dachterrasse hat man einen sehr schönen Blick auf die Havel, die Brandenburg, neben mehreren Havelkanälen, durchfliest. Zur Straßenseite ist eine Gaube eingebaut, ansonsten verfügen die Räume über Dachfenster. Die Raumhöhe liegt hier bei 2,50 m. In beiden Etagen sind Dielen verbaut und die Bäder sind gefliest.
Ein kleines Mehrfamilienhaus mit Havelblick in Brandenburg a. d. Havel
Neuendorfer Straße 59,
14770 Brandenburg an der Havel
Auf Karte anzeigen
Finanzierungszertifikat
In nur zwei Minuten zu Ihrem persönlichen Finanzierungszertifkat.
Infos
| Haustyp | Mehrfamilienhaus |
|---|---|
| Etagenzahl | 4 |
| Wohnfläche ca. | 380 m2 |
| Nutzfläche | 98 m2 |
| Grundstücksfläche | 252 m2 |
| Bezugsfrei ab | vermietet |
| Zimmer | 15 |
| Schlafzimmer | 7 |
| Badezimmer | 7 |
Kosten
| Kaufpreis |
699.000 € |
|---|---|
| Provision |
5,95% vom Kaufpreis inkl. 19% MwSt. Die Nachweis- bzw. Vermittlungsprovision für den Käufer beträgt 5,95 % inkl. 19% MwSt. Sie ist verdient und fällig mit Beurkundung des notariellen Kaufvertrages. |
| Mieteinnahmen | 2.840 € |
Finanzierungsrechner:
Kaufpreis:
600.000 €
Eigenkapital:
600.000 €
Monatliche Rate
0 €
Effektiver Jahreszins
0 %
Sollzinsbindung
10 Jahre
Bausubstanz & Energieausweis
| Baujahr | 1902 |
|---|---|
| Letzte Sanierung | 2021 |
| Objektzustand | Saniert |
| Qualität der Austattung | Normal |
| Heizungsart | Zentralheizung |
| Wesentliche Energieträger | Gas |
| Energieausweis | liegt vor |
| Energieausweistyp | Verbrauchsausweis |
| Energieverbrauchskennwert | 142,2 kWh/(m²*a) |
| Energieeffizienzklasse | E |
142,2
kWh/(m²*a)
Energieeffizienzklasse E
- A+
- A
- B
- C
- D
- E
- F
- G
- H
- 0
- 25
- 50
- 75
- 100
- 125
- 150
- 175
- 200
- 225
- >250
Beschreibung des Objekts
Ausstattung
Am hinteren Ende des Hausflurs im Erdgeschoss führt eine Holztreppe in den Kellerbereich. Der Keller mit seiner ca. 79 m² großen Nettogrundfläche besteht aus 8 Räumen, dem Zugang zum Hausflur und dem Kellergang. Von den 8 Kellerräumen dienen 5 als Abstellflächen für die Mieter, einer als Heizungsraum in der die Therme installiert ist und einer ist der Hausanschlussraum, der alle Zuleitungen der Medien von der Straße aufnimmt. Im hinteren Bereich liegt noch ein offener Raum zum Abstellen von Fahrrädern. Die Fußböden sind mit Ziegelsteinen ausgelegt bzw. mit Betonsteinen belegt.
Größe: Die Größe des Grundstücks beträgt ca. 252 m². Es hat eine Straßenfront von ca. 11 m. Am hinteren Ende sind es ca. 9 m. Es hat eine Tiefe von ca. 25 m. Auf dem kleinen Innenhof ca. 140 m² groß, steht noch ein kleiner ehemaliger Stall mit einem Vordach, der als Abstell- und Sitzfläche genutzt wird. Ebenso gibt es zwei weitere Sitzbereiche, einer im hinteren Bereich des Grundstücks auf einem Holzpodest, überschattet mit einem sehr schönen großen Ahornbaum und einen weiterer Sitzplatz mit direktem Zugang von der Erdgeschosswohnung aus. Der Hof ist im vorderen Bereich teilweise mit typischen märkischen Klinkern belegt. Der hintere Teil ist begrünt. Der Zugang zum Hof erfolgt über das Treppenhaus im EG. Das Hofgelände ist eingezäunt bzw. mit Mauern zu den Nachbargrundstücken abgeschirmt.
Erschließung: Das Grundstück ist mit Strom, Erdgas, Trinkwasser, Abwasser und Telefon, Internet, Kabel RFT erschlossen. Die Beheizung der Wohnungen wie auch die Warmwasserversorgung erfolgt über eine moderne 2016 eingebaute Erdgastherme mit einem Warmwasserbereiter. Die Heizung steht in einem Kellerraum. Die Anlage ist für die Installation von Solarmodulen vorinstalliert. Vor dem Haus auf der Neuendorfer Straße stehen öffentliche Parkplätze zur Verfügung.
Der Kaufpreis für das Objekt beträgt 699.000, €. Die derzeitige Nettokaltmiete für die fünf Wohnungen beläuft sich ab 01.12.2025 monatlich auf 2.840,- €. Das entspricht einer Miete/m² von ca. 7,47 €. Die jährliche Grundsteuer beträgt z. Zt. 694,25 €.
Lage
Standort: Brandenburg ist die Wiege der Mark Brandenburg und gleichzeitig der Namenspatron für eine ganze Region. Im Brandenburger Dom befinden sich die Gründungsurkunden des Bischofssitzes, auf die die Entstehung des Landes Brandenburg zurückzuführen ist. In Brandenburg wohnen und arbeiten ca. 73.000 Menschen. Brandenburg ist seit jeher ein industrieller Standort, der durch seine verkehrsgünstige Lage und gute Infrastruktur viele Unternehmen angezogen hat. Auf Grund der wunderschönen Lage der Stadt an der Havel und den sich angrenzenden Seen gibt es unzählige Möglichkeiten für Entspannung und Erholung. Brandenburg ist eine der Städte, die im Rahmen der Innenstadtsanierung mit erheblichen Fördermitteln der EU, des Bundes und des Landes Brandenburg ausgestattet wurde und das sieht man auf jeden Schritt und Tritt. Mittlerweile ist die Altstadt in neuem Glanz erwacht und überall wird weiter saniert, restauriert und neu gebaut. Die Stadt hat eine sehr gute Verkehrsanbindung. Sie ist sowohl über die Anschlussstelle Brandenburg der Autobahn A 2, halbstündlich per Bahn mit dem RE 1 nach Potsdam und Berlin gut zu erreichen. Gute Anbindungen gibt es weiterhin über die Bundesstraße B1 und per Schiff über die Havel.
Sonstige Angaben
Lage: Das Mehrfamilienhaus steht ca. 150 m nördlich der Havel und ca. 700 m von der Altstadt entfernt. Im Umkreis von ca. 600 m befinden sich mehrere Landesbehörden, die Brandenburger Fachhochschule und Einrichtungen der städtischen Verwaltung. In der unmittelbaren Nachbarschaft des Hauses stehen weitere alte und zu großen Teilen bereits sanierte Mehrfamilienhäuser, aber auch eine große Anzahl neu gebauter Objekte. Das Haus liegt sehr verkehrsgünstig. Bus- und Straßenbahnhaltestellen liegen ca. 5 Min. entfernt. Mit 7 Min. Fußweg ist das Stadtzentrum erreicht. Der Bahnhof von Brandenburg ist in ca. 5 Min. Fahrzeit erreichbar. In der direkten Umgebung wie auch im nahen Stadtzentrum befinden sich wichtige, Einkaufsmärkte, Schulen, Ärzte, Apotheken Banken und weitere Dienstleistungseinrichtungen. Von der Dachterrasse aus hat man einen herrlichen Blick auf die Havel. Ganz in der Nähe beginnt eine der schönsten Uferpromenaden rechts und links vom Fluss.
Dieses Exposé gilt als Objektnachweis und ist nur für den Empfänger bestimmt. Die Nachweis- bzw. Vermittlungsprovision für den Verkauf des Hofes inkl. der Gebäude inkl. Grundstück beträgt 5,95% inkl. der geltenden 19% MwSt. und ist verdient und fällig bei Unterzeichnung des Kaufvertrages und wird vom Käufer getragen.
Die vorstehenden Angaben beruhen auf Aussagen und Unterlagen des Eigentümers, für deren Richtigkeit wir, trotz sorgfältiger Bearbeitung keine Gewähr übernehmen können.
Grundriss
GR EG (1)
>
>
GR I. OG (1)
>
>
GR II. OG (1)
>
>
GR III. OG (1)
>
>
GR IV. OG (1)
>
>
GR KG (1)
>
>
GR Schnitt A-A
>
>
GR Schnitt B-B
>
>
Lagepläne Neuendorfer Straße (
>
>
Adresse
Neuendorfer Straße 59, 14770 Brandenburg an der Havel
Interessante Orte
Preis- und Lageinformationen
Preistrend für Bestandsimmobilien in Altstadt