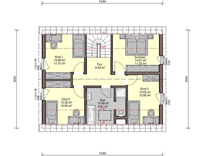
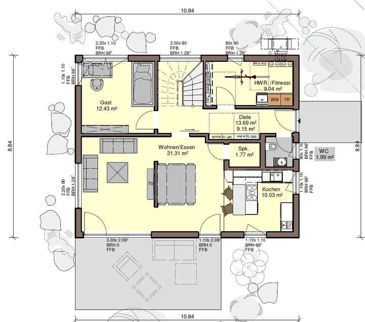
Neubau mit großem Grundstück und unendlichen Möglichkeiten. Das Haus hatim Erdgeschoss einen großen offenen Wohn-Ess-Kochbereich. Neben einer kleinen Speisekammer und einem Gäste-WC finden Sie ebenfalls noch ein Büro / oder Gästezimmer. Im Dachgeschoss finden 3 Kinderzimmer, ein Elternschlafzimmer sowie ein großes Familienbad Platz. Das Haus ist beispielhaft und kann gerne nach ihren individuellen Wünschen umgeplant werden. Schließlich möchten wir ihren Wohntraum verwirklichen.
Messerich - attraktives Wohnhaus, ökologisch gebaut - Neubau
54636 Messerich
Die vollständige Adresse der Immobilie erhalten Sie vom Anbieter.
Auf Karte anzeigen
Die vollständige Adresse der Immobilie erhalten Sie vom Anbieter.
Finanzierungszertifikat
In nur zwei Minuten zu Ihrem persönlichen Finanzierungszertifkat.
Infos
| Haustyp | Einfamilienhaus |
|---|---|
| Etagenzahl | 2 |
| Wohnfläche ca. | 138 m2 |
| Grundstücksfläche | 1.417 m2 |
| Bezugsfrei ab | 2023 |
| Zimmer | 6 |
| Schlafzimmer | 4 |
| Badezimmer | 1 |
| Garage/Stellplatz | Außenstellplatz |
Kosten
| Kaufpreis |
634.898 € |
|---|---|
| Provision | Nein |
Finanzierungsrechner:
Kaufpreis:
600.000 €
Eigenkapital:
600.000 €
Monatliche Rate
0 €
Effektiver Jahreszins
0 %
Sollzinsbindung
10 Jahre
Bausubstanz & Energieausweis
| Baujahr | 2023 |
|---|---|
| Bauphase | Haus in Planung (projektiert) |
| Objektzustand | Erstbezug |
| Qualität der Austattung | Gehoben |
| Heizungsart | Wärmepumpe |
| Wesentliche Energieträger | Strom |
| Energieausweis | liegt zur Besichtigung vor |
Beschreibung des Objekts
Ausstattung
Sie erhalten eine durchdachte und gehobene Ausstattung. Bei unserer Ausstattungslinie "die Cleveren" haben Sie eine große Auswahl an Fliesen, Sanitärobjekten, Innentüren, Haustüren, Dachpfannen etc. ohne Aufpreis.
Die Bodenbeläge (außer Fliesen) und die Malerarbeiten sind aktuell noch nicht eingerechnet, dies kann durch Eigenleistung erbacht werden.
Alle anderen Gewerke werden schon durch uns ausgeführt.
Wenn Sie lieber komplett schlüsselfertig bauen möchten geht dies natürlich auch, sprechen Sie uns einfach an.
Das Highlight im Haus ist die Weltneuheit Viessmann-Invisible-Heizungsanlage. Durch diese innovative Heizungsbauweise bekommen Sie einen kompletten Raum zusätzlich. Denn ihre Heizungsanlage nimmt kaum noch Platz in Anspruch und bietet Ihnen so ungeahnte Möglichkeiten z.B. durch einen Fitnessraum, Saunaraum oder einfach ein zusätzlicher Hauswirtschftsraum mit viel Lagermöglichkeit. Heizungstechnik von Morgen!
Preis ist inklusive Grundstück und Bodenplatte in fast-fertiger Ausführung gemäß unserer Bau-und Leistung
Lage
Das Grundstück liegt in Messerich nähe Kokelberg/Lindenweg.
Sonstige Angaben
Büdenbender Hausbau ist ein Familienbetrieb aus dem Siegerland mit über 75 Jahren Erfahrung im Fertighausbau. Wir fertigen für Sie individuelle Wohnträume so wie Sie es wünschen.
Sprechen Sie uns an.
Grundriss
MesserichEG
>
>
MesserichDG
>
>
Adresse
54636 Messerich
Interessante Orte
Preis- und Lageinformationen
Preistrend für Bestandsimmobilien in Messerich