Ziehen Sie ein und genießen Sie Ihr neues Zuhause mit zwei Etagen, einem Dachstudio und einem praktischen Keller.
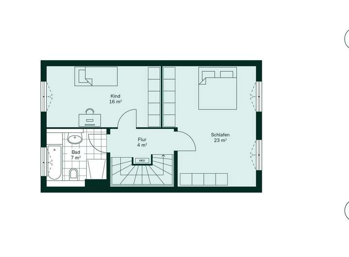
Massiv gebaut für ein gutes Wohngefühl, diese moderne Doppelhaushälfte bietet Ihnen mit vier Zimmern maximalen Wohnkomfort. Im Erdgeschoss erwartet Sie ein großzügiger Wohnbereich mit offener Küche. Die angrenzende Terrasse eignet sich ideal für Grillabende mit Freunden und Verwandten. Das praktische Gäste-WC und eine Nische für Ihre Garderobe runden das Erdgeschoss elegant ab. Im Obergeschoss stehen Ihnen zwei helle und freundliche Zimmer zur Verfügung. Das moderne Tageslichtbad mit Badewanne und bodengleicher Dusche sorgt für eine komfortable Morgenroutine. Home Office, ein weiteres Kinderzimmer oder Ihr neuer Hobbyraum, im ausgebauten Dachgeschoss können Sie sich nach Belieben entfalten. Für weiteren Stauraum nutzen Sie den großzügigen Keller.
Ihre Vorteile im Neubauprojekt
Das familienfreundliche Wohnquartier Heidegärten bietet Ihnen viel Komfort und eine grüne Umgebung. Genießen Sie die großzügigen Gärten und die verkehrsberuhigten Straßen. Spielplätze und Parkmöglichkeiten sorgen für eine hohe Lebensqualität. Nachhaltigkeit und Gemeinschaft stehen hier im Fokus.
Geräumiges Familienzuhause inklusive zwei Außenstellplätze
Magdeburger Straße 15,
59192 Bergkamen
Auf Karte anzeigen
Finanzierungszertifikat
In nur zwei Minuten zu Ihrem persönlichen Finanzierungszertifkat.
Infos
| Haustyp | Doppelhaushaelfte |
|---|---|
| Wohnfläche ca. | 136 m2 |
| Nutzfläche | 49,36 m2 |
| Grundstücksfläche | 302 m2 |
| Bezugsfrei ab | Mai 2026 |
| Zimmer | 4 |
| Schlafzimmer | 2 |
| Badezimmer | 1 |
| Garage/Stellplatz | Außenstellplatz |
| Anzahl Garage/Stellplatz | 2 |
Kosten
| Kaufpreis |
419.900 € |
|---|---|
| Provision | Nein |
Finanzierungsrechner:
Kaufpreis:
600.000 €
Eigenkapital:
600.000 €
Monatliche Rate
0 €
Effektiver Jahreszins
0 %
Sollzinsbindung
10 Jahre
Bausubstanz & Energieausweis
| Baujahr | 2025 |
|---|---|
| Bauphase | Haus in Planung (projektiert) |
| Objektzustand | Erstbezug |
| Qualität der Austattung | Gehoben |
| Heizungsart | Fußbodenheizung |
| Wesentliche Energieträger | Fernwärme |
Beschreibung des Objekts
Ausstattung
- inklusive erschlossenem Grundstück
- Terrasse
- bodentiefe Fenster mit Rollläden
- Garage
- Gäste-WC
- Offene Küche
- Tageslichtbad mit Badewanne
- großer Keller
- ausgebautes Dachstudio
- Effizienzhaus 55-Standard
- Kinderspielbereich im Quartier
- zwei Außenstellplätze inklusive
Lage
In den Heidegärten finden Familien einen naturnahen Rückzugsort. Dank der großen Gärten, der beiden Spielplätze und der verkehrsberuhigten Wohnstraßen wachsen Ihre Kinder hier in sicherer Umgebung auf. Und Sie selbst freuen sich über die kurzen Wege im Alltag und ein modernes Haus in toller Lage, das zudem auch noch energieeffizient erbaut ist.
Sonstige Angaben
*Aktion bis zum 31.12.2025
Wo Wohnglück beginnt, mit dem Kinderbonus im Gepäck
Familien willkommen: Bei Reservierung eines Hauses in den Heidegärten erhalten Sie einen attraktiven Kinderbonus mit 10.000 € je Kind, ein zusätzlicher finanzieller Freiraum für das, was Familien wirklich wichtig ist. Gilt bei Reservierung im Zeitraum vom 22.08.2025 bis zum 31.12.2025.
*maximal 30.000 €
Adresse
Magdeburger Straße 15, 59192 Bergkamen
Interessante Orte
Preis- und Lageinformationen
Preistrend für Bestandsimmobilien in Bergkamen