Dieses moderne Traumhaus bietet mit knapp 159m² und fünf Zimmern genug Platz für die ganze Familie.
Im Eingangsbereich überkommt euch schon ein warmes Gefühl des nach Hause Kommens. Die wunderschöne Treppe ist gleich ein Blickfang und bringt durch große Fenster im Treppenraum eine ideale Helligkeit in den Eingangsbereich. Die Diele bietet genug Platz zum Verstauen, sowie auch der vom Flur aus zu erreichende Hauswirtschaftsraum, ein wahres Platzwunder. Ebenfalls im Erdgeschoss liegend, ist das Eltern-Schlafzimmer, sowie ein Badezimmer mit einer ebenerdigen Dusche und einer Toilette, sowie einem Handwaschbecken. Durch zwei Terrassentüren und mehreren Fenstern wird der geräumige Wohn- und Essbereich verbunden mit der Küche, ein heller und entspannter Ort der Geselligkeit.
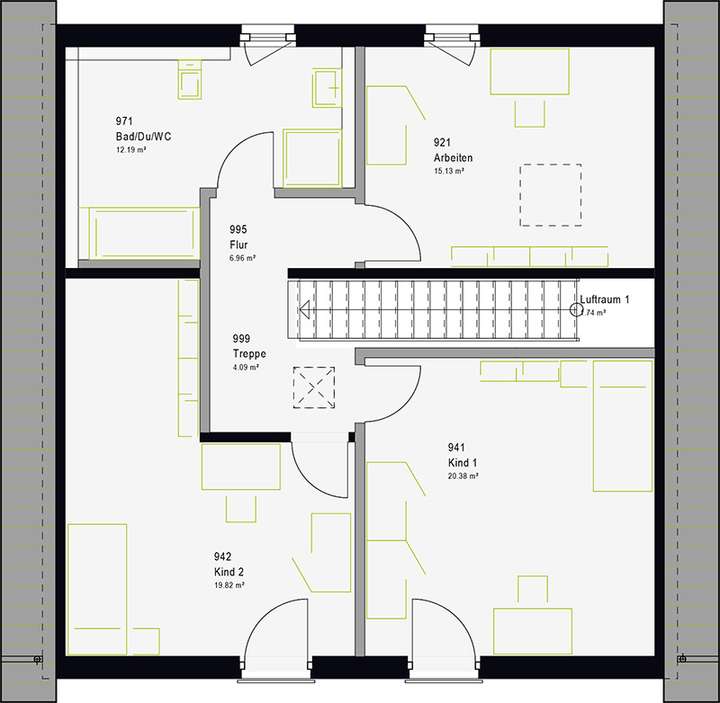
Die Treppe hoch, kommt ihr in einen offenen Flurbereich, der zu eurer Linken die beiden Kinderzimmer verbindet und zu eurer Rechten das Badezimmer. Ihr arbeitet von zu Hause aus oder braucht noch ein Zimmer, um euren Hobbys nachzugehen? Im Obergeschoss befindet sich ein weiteres Zimmer, welches sich gut als Büro oder auch als Gäste-Zimmer nutzen lässt. Dazu finden ihr oben noch das gemeinschaftliche Badezimmer mit einer Ausstattung eurer Wahl. Stellt euch einmal vor, ihr wollt den Abend gemütlich in eurer Badewanne ausklingen lassen. Ein heißes Schaumbad in eurer neuen Wellnessoase, wäre das nicht ein Traum?
Selbstverständlich könnt ihr als massa – Baufamilie, euer Traumhaus eine ganz individuelle Note verpassen. Dieser Grundrissvorschlag wird genau auf euren Geschmack, eure Wünsche und eure Anforderungen angepasst.
Genießen Sie den Tag im eigenen Garten inkl. Traumhaus
26721 Emden
Die vollständige Adresse der Immobilie erhalten Sie vom Anbieter.
Auf Karte anzeigen
Die vollständige Adresse der Immobilie erhalten Sie vom Anbieter.
Finanzierungszertifikat
In nur zwei Minuten zu Ihrem persönlichen Finanzierungszertifkat.
Infos
| Haustyp | Einfamilienhaus |
|---|---|
| Etagenzahl | 2 |
| Wohnfläche ca. | 159 m2 |
| Grundstücksfläche | 500 m2 |
| Zimmer | 5 |
| Schlafzimmer | 4 |
| Badezimmer | 1 |
Kosten
| Kaufpreis |
294.659 € |
|---|---|
| Provision | Nein |
Finanzierungsrechner:
Kaufpreis:
600.000 €
Eigenkapital:
600.000 €
Monatliche Rate
0 €
Effektiver Jahreszins
0 %
Sollzinsbindung
10 Jahre
Bausubstanz & Energieausweis
| Baujahr | 2025 |
|---|---|
| Bauphase | Haus in Planung (projektiert) |
| Objektzustand | Erstbezug |
| Qualität der Austattung | Gehoben |
Beschreibung des Objekts
Ausstattung
Dieses moderne, förderfähige Ausbauhaus ist bereits für Euch technisch Fertig ausgestattet. Enthalten sind bereits u.a. folgende Leistungen:
* modernes Heizsystem inkl. PV-Anlage für sparsames heizen
* inkl. Fußbodenheizung für eine perfekte Wärmeverteilung
* Lüftungsanlage mit Wärmerückgewinnung
* Solaranlage zur Warmwasserbereitung
* 3- Fach verglaste Kunststofffenster
* das Planungsgespräch mit unseren Architekten
* das Erstellen eines fachgerechten Bauantrags
* Bodenplatte inkl. Bodengutachten
* eine auswählbare Geschosstreppe
* Lieferung der Dämmung und Beplankung für den Trockenausbau
* Installation der gesamten Elektrotechnik
* Rohbauinstallation der Sanitäranlagen
* Fensterbänke außen montiert
* individuelle Eingangstür
Ob Technik-Paket oder Fast-Fertig-Option = Sie sind Bauherr, Sie entscheiden!
Informationen zu weiteren Ausbaupaketen erhalten Sie von mir...!
🏡
Yvonne Schwitters #massa haus
0176 666 97 817 (gern auch via WhatsApp) 🏡
Lage
Emden: ist eine Stadt im Nordwesten von Niedersachsen und die größte Stadt Ostfrieslands. Sie liegt an der Emsmündung am Nordufer des Dollarts. Mit 49.523 Einwohnern ist Emden die kleinste der kreisfreien Städte des Bundeslandes, steht auf Platz 21 der Städte in Niedersachsen und ist damit nach Wilhelmshaven die zweitgrößte Stadt an der niedersächsischen Küste.
Gerne besuchen wir Sie vor Ort auf ihrem Grundstück zur Expertise.
Noch kein passendes Grundstück? Nutzen Sie unseren kostenlosen Grundstückservice!
Kontaktaufnahme gerne unter:
Yvonne Schwitters
017666697817 &/ WhatsApp
Sonstige Angaben
Ihr seid gespannt, wie euer Eigenheim aussehen kann?🏡
Sichert euch einen individuellen Termin, um sich das Musterhaus in Delmenhorst genauer anzuschauen.
In dem Zuge berate ich euch natürlich kostenlos gerne, und gehe auf eure Wünsche und Fragen ein.
Ihr könnt mich unter der folgender Telefonnummer erreichen: 0176 666 97 817.
Musterhaus Delmenhorst
Annenheider Allee 116, 27751 Delmenhorst
Ich freu mich auf Euch!
Yvonne Schwitters
Grundriss
Dachgeschoss
>
>
Erdgeschoss
>
>
Adresse
26721 Emden
Interessante Orte
Preis- und Lageinformationen
Preistrend für Bestandsimmobilien in Stadtzentrum